For sale new construction apartment, P4626-1-0A-06-001
Budapest IX. kerület, Rehabilitációs terület

133,410,900 Ft

348,000 €

  • 68m²
  • 3 Rooms
  • 6th floor

Energiatakarékos, új építésű otthonok!

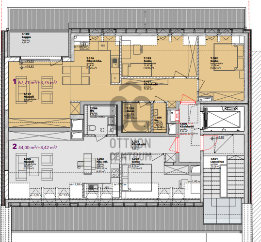
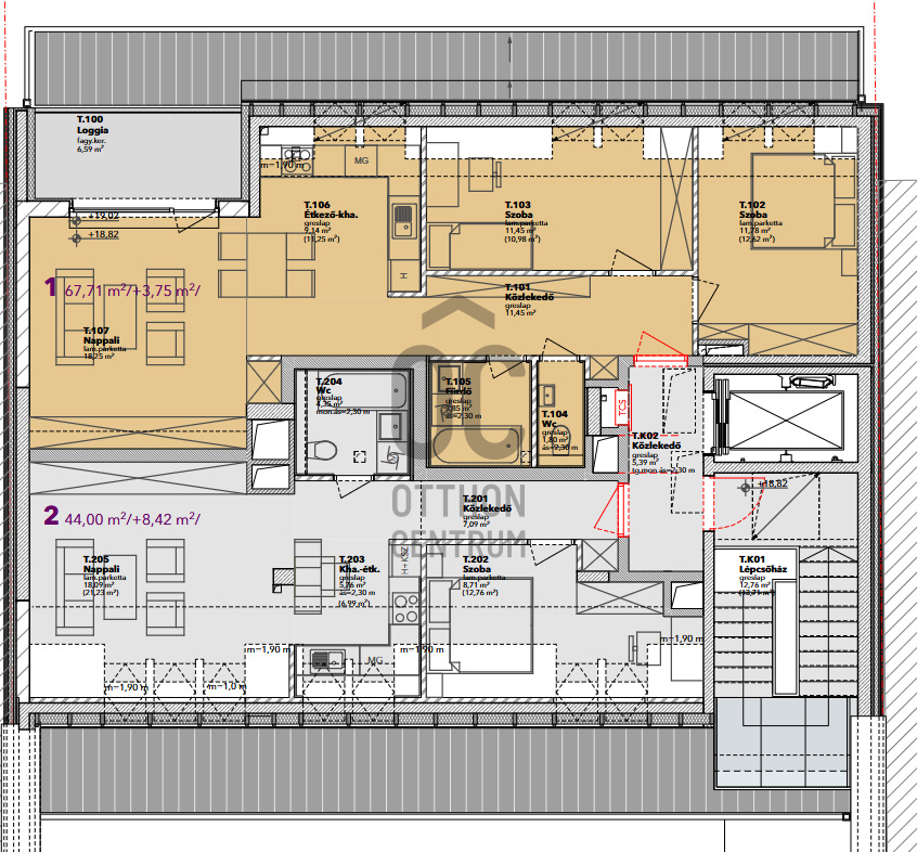
Az ingatlan a hatodik emeleten található. Tetőtéri lakás, de minimális ferde fallal és normál belmagassággal. Az összes terület a nettó 68 m2 + 3.75 m2 1.90 alatti terület fele + 7 m2 loggia fele.
A teraszról városi panoráma. A szemközti épület távol van, így a terasz komfortos érzetet nyújt.

Registration Number

P4626-1-0A-06-001

Property Details

Sales
for sale
Legal Status
new
Character
apartment
Construction Method
brick
Net Size
68 m²
Gross Size
73.3 m²
Size of Terrace / Balcony
6.5 m²
Heating
heat pump
Ceiling Height
260 cm
Orientation
East
Staircase Type
enclosed staircase
Condition
Excellent
Condition of Facade
Excellent
Condition of Staircase
Excellent
Year of Construction
2025
Number of Bathrooms
1
Position
garden-facing
Water
Available
Electricity
Available
Sewer
Available
Elevator
available

Rooms

living room
18.25 m²
open-plan kitchen and dining room
11.25 m²
corridor
11.45 m²
bathroom-toilet
2.3 m²
toilet-washbasin
1.8 m²
bedroom
12.52 m²
bedroom
11.45 m²
loggia
6.59 m²
Ruczek Krisztina
Ruczek Krisztina

Credit Expert

From Our Office Listings - V. kerület - Hild tér

for sale apartment

Index image
12

for rent apartment

Index image
18

for sale apartment

Index image
37

for sale apartment

Index image
data_sheet.details.realestate.section.main.otthonstart_flag.label
15

for sale apartment

Index image
32

for sale apartment

Index image
22

for sale commercial property

Index image
5