For sale new construction apartment, P4626-1-0A-05-001
Budapest IX. kerület, Rehabilitációs terület

136,616,340 Ft

361,000 €

  • 66.2m²
  • 3 Rooms
  • 5th floor

Energiatakarékos, modern, új építésű otthonok!

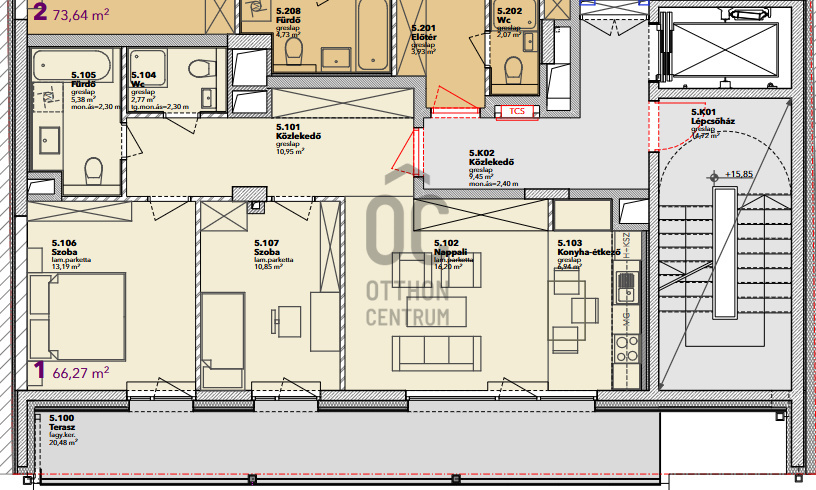
Az ingatlan az ötödik emeleten található. Utcai nézetű. Az összes terület a nettó 66.27 m2-es lakótérből és a 20.48 m2-es terasz felének beszámításából tevődik össze.
Dupla komfortos.

Registration Number

P4626-1-0A-05-001

Property Details

Sales
for sale
Legal Status
new
Character
apartment
Construction Method
brick
Net Size
66.2 m²
Gross Size
76.5 m²
Size of Terrace / Balcony
20.4 m²
Heating
heat pump
Ceiling Height
260 cm
Orientation
West
Staircase Type
enclosed staircase
Condition
Excellent
Condition of Facade
Excellent
Condition of Staircase
Excellent
Year of Construction
2025
Number of Bathrooms
1
Position
street-facing
Water
Available
Electricity
Available
Sewer
Available
Elevator
available

Rooms

living room
16.2 m²
open-plan kitchen and dining room
6.94 m²
corridor
10.95 m²
bathroom-toilet
2.77 m²
bathroom-toilet
5.36 m²
bedroom
13.19 m²
bedroom
10.85 m²
terrace
20.48 m²
Ruczek Krisztina
Ruczek Krisztina

Credit Expert

From Our Office Listings - V. kerület - Hild tér

eladó üzleti célú ingatlan

Index image
10

eladó lakás

Index image
9

eladó üzleti célú ingatlan

Index image
3

eladó lakás

Index image
19

eladó lakás

Index image
15

eladó lakás

Index image
18

eladó lakás

Index image
19

kiadó lakás

Index image
11

eladó üzleti célú ingatlan

Index image
23

eladó lakás

Index image
36

eladó lakás

Index image
24