data_sheet.details.realestate.section.main.otthonstart_flag.label
For sale family house, OHH179284
Miskolc, Belváros

94,900,000 Ft

242,000 €

  • 333m²
  • 8 Rooms
  • ground floor
Exclusive Contract


Az ELADÓ MISKOLCI CSALÁDI HÁZ jellemzői:
 - Miskolc csendes utcája, "pár lépésre" a városház tértől, az Avasalja utcában található ingatlan
 - 2 emelet + beépített tetőtér
 - a ház egyedi kialakítása akár 3 külön lakás kialakítását teszi lehetővé, külön bejárattal!!!
 - több generáció együttélésére kiválóan alkalmas, de akár társasházzá is alakítható
 - ezt támasztja alá a 3 külön gáz és vízóra is
 - amerikai konyhás, étkezős nappali + 7 szoba, 3 fürdőszobával
 - tégla falazat, részben szigetelve 10 cm vastag szigetelőanyaggal
 - Bramac cserép tető borítás, 5 kW-os napelemmel felszerelve, szigetelt födém és padlásfelület
 - a szobák laminált és hagyományos faparkettásak, minden egyéb helyiség járólapos
 - a falak simára gletteltek, festettek
 - a ház fűtése többszörösen biztosított, szintenként külön gázkazán dolgozik a hatékony fűtésért
 - a megtermelt meleg padlófűtésen és radiátorokon keresztül realizálódik
 - 2006-os felújítás után a villamos vezetékek cseréje is megtörtént, a napelemmel kiegészülve a villanyszámla a nullához  közelít
 - a nyári meleget összesen 5 klíma hivatott enyhíteni
 - a nyílászárók hő és hangszigetelt fa nyílászárók, illetve 2 műanyag ajtó
 - az utcafrontról nyílik a két, akár kifejezetten nagy autó befogadására alkalmas , motorosan nyitható garázs
 - a szobákon kívül belső udvari fedett terasz, utcafronti erkély, mosókonyha, pince, több tároló és kazánház is rendelkezésre áll
 - a családot kényezteti a tetőtérben kialakított finn és infraszauna
 - az udvar lépéstakarékos, könnyen rendben tartható
 - az utca ezen része már ingyenes parkolást biztosít, ha vendégeink érkeznének
 - az ingatlan tehermentes, rengeteg lehetőséget rejt magában akár magánszemélyek, akár befektetők szemével nézve
Jöjjön, nézze meg mihamarabb!

Registration Number

OHH179284

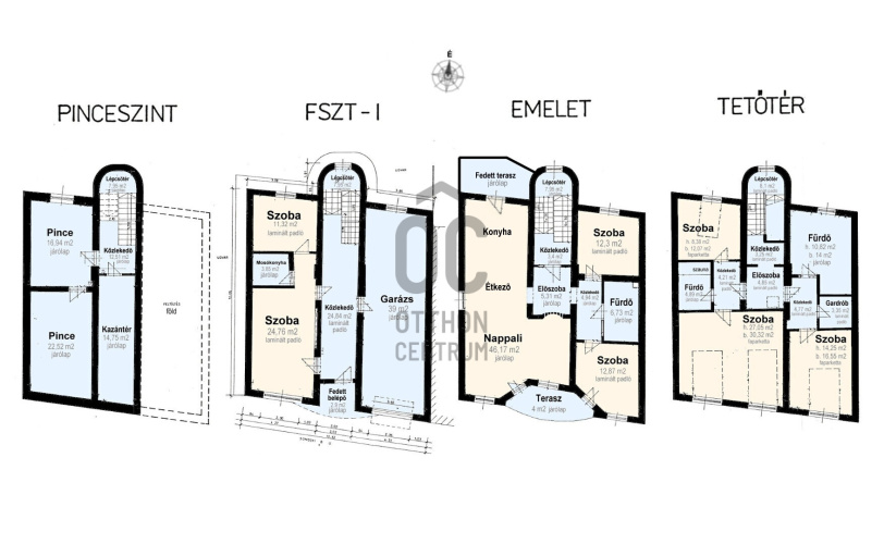
Property Details

Sales
for sale
Legal Status
used
Character
house
Construction Method
brick
Net Size
333 m²
Plot Size
324 m²
Size of Terrace / Balcony
13.9 m²
Heating
Gas circulator
Condition
Good

Rooms

living room
46.17 m²
room
12.3 m²
room
12.87 m²
room
24.76 m²
room
11.32 m²
room
27 m²
room
14.25 m²
room
8.38 m²
bathroom
6.73 m²
bathroom
10.82 m²
other
4.89 m²
utility room
3.85 m²
wardrobe
3.35 m²
entryway
5.31 m²
entryway
4.85 m²
corridor
3.4 m²
corridor
4.97 m²
corridor
24.84 m²
corridor
4.77 m²
corridor
4.21 m²
corridor
3.25 m²
corridor
12.51 m²
terrace
4 m²
terrace
2.9 m²
balcony
7 m²
garage
39 m²
staircase
7.95 m²
staircase
7.95 m²
staircase
7.95 m²
staircase
8.1 m²
utility room
14.75 m²
cellar
16.94 m²
cellar
22.52 m²
Varkolyné Viktória
Varkolyné Viktória

Credit Expert

From Our Office Listings - Miskolc - Szemere utca

for sale panel apartment

Index image
data_sheet.details.realestate.section.main.otthonstart_flag.label
18

for sale family house

Index image
data_sheet.details.realestate.section.main.otthonstart_flag.label
42

for sale family house

Index image
data_sheet.details.realestate.section.main.otthonstart_flag.label
21

for sale family house

Index image
data_sheet.details.realestate.section.main.otthonstart_flag.label
20

for sale family house

Index image
data_sheet.details.realestate.section.main.otthonstart_flag.label
23

for sale panel apartment

Index image
data_sheet.details.realestate.section.main.otthonstart_flag.label
18

for rent apartment

Index image
22

for sale apartment

Index image
data_sheet.details.realestate.section.main.otthonstart_flag.label
18