For sale vacation home, OHH178947
Kaposvár,

45,900,000 Ft

119,000 €

  • 117.8m²
  • 3 Rooms
  • ground floor
Exclusive Contract


Eladó stílusos  otthon

Lenyűgöző zöldövezeti , csendes részen a Deseda tó mellett várja új tulajdonosát egy exkluzívan megújult 120 m2-es otthon.

Csodálatos környezet, jó levegő jellemzi. A tó és az arborétum karnyújtásnyira van, túrázási sportolási lehetőségekkel teli, remek kirándulóhely. A város közel van, mindössze pár perc autóval.

Somogy vármegye egyik legkedveltebb településén, KAPOSVÁRON kínálunk megvételre egy 2024-BEN FELÚJÍTOTT, CSALÁDI HÁZ JELLEGŰ INGATLANT, A ház KETTŐ SZOBÁVAL ÉS IGÉNYES TEREKKEL rendelkezik, ÚJ BELSŐ FELÚJÍTÁSA pedig barátságos, meleg hangulatú, igényes stílusú.

Külső adottságok:

Telek 1285 m2 mely számos lehetőséget kínál: igény szerint kialakítható SAJÁT JÁTSZÓTÉR, GARÁZS vagy akár KELLEMES PIHENŐKERT is.
A ház DÉL–NYUGATI TÁJOLÁSÚ, ezért a belső terek világosak, napfényesek, és minden este GYÖNYÖRKÖDHET A NAPLEMENTÉBEN.

A ház mellett fedett jakuzziban pihenheti ki a nap fáradalmait, igényesen térkövezett udvaron, kellemes elrendezésű, fákkal , gyümölcsfával és dísznövényekkel övezett környezetben, térkövezett teraszon. A ház több bejárattal rendelkezik, ami a kényelmet szolgálja. Itt új életstílus várja!

A ház Ytong téglából épült, szigetelt, felújítás utáni megjelenése rendkívül stílusos.

2024- es teljes felújítása során tetőszerkezet új lett, Bramac cseréppel van fedve.

A ház energetikai tanúsítvánnyal rendelkezik. Nyílászárók redőnnyel és szúnyoghálóval vannak felszerelve. 

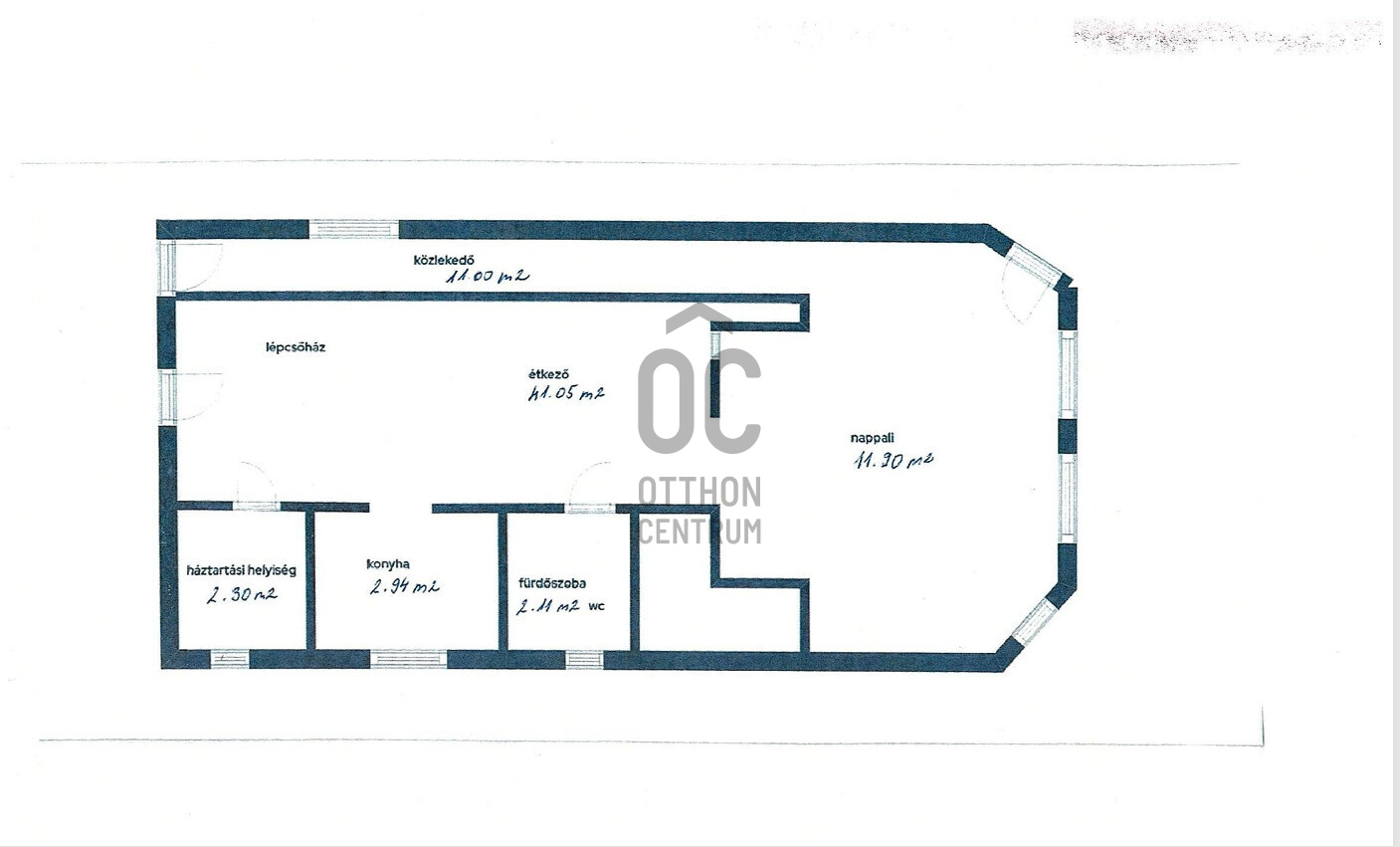
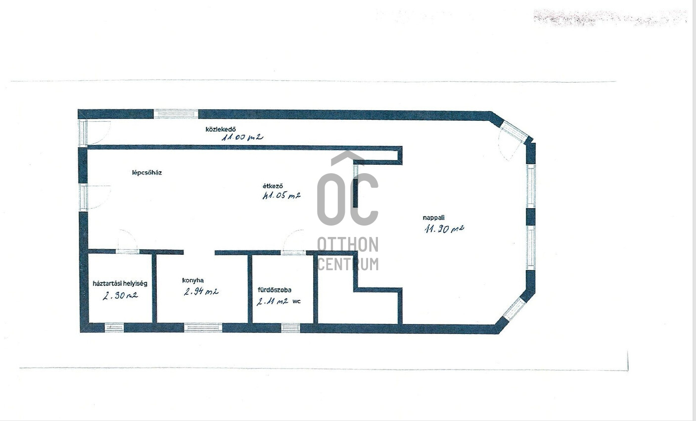
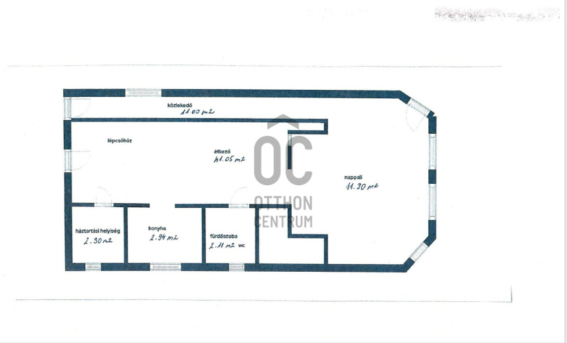
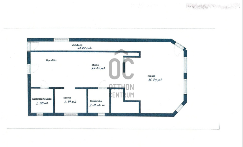
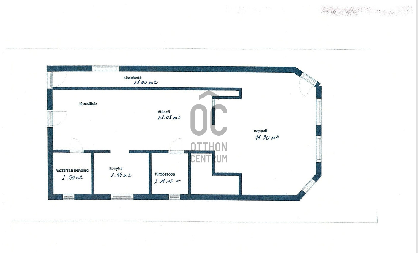
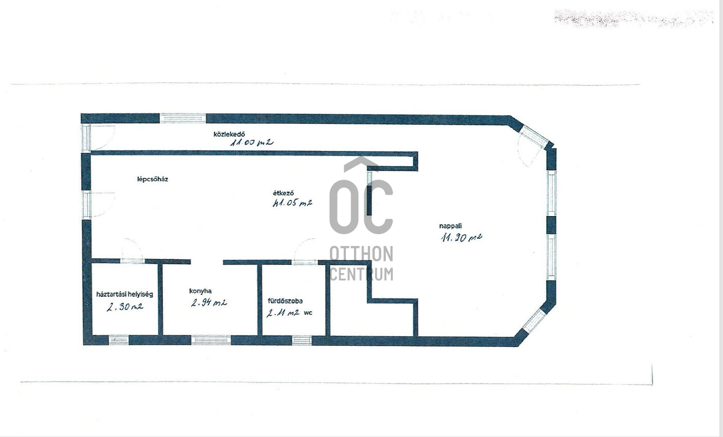
BELSŐ ELRENDEZÉS:

A ház elosztása PRAKTIKUS ÉS JÓL ÁTGONDOLT, felújítása igényes.

* 2 hálószoba
* tágas nappali
* fürdőszoba káddal , WC-vel
* konyha
* külön mosókonyha
* házból nyíló igényesen kialakított tágas pince

További főbb paraméterek:

Fűtése elektromos, de a házban kémény található, így igény esetén cserépkályha, kandalló is beépíthető, helye rendelkezésre áll

A helyiségek hűtése korszerű klímákkal megoldott.

Vízellátás saját fúrt kútból történik, meleg vizet bojler szolgáltatja.

Villanyhálózat teljesen felújított, hangulatos led világítás is beépítésre került.

Registration Number

OHH178947

Property Details

Sales
for sale
Legal Status
used
Character
vacation home
Type of Vacation Home
apartment
Construction Method
brick
Net Size
117.8 m²
Plot Size
1,285 m²
Size of Terrace / Balcony
4.3 m²
Condition
Excellent
Year of Construction
1995

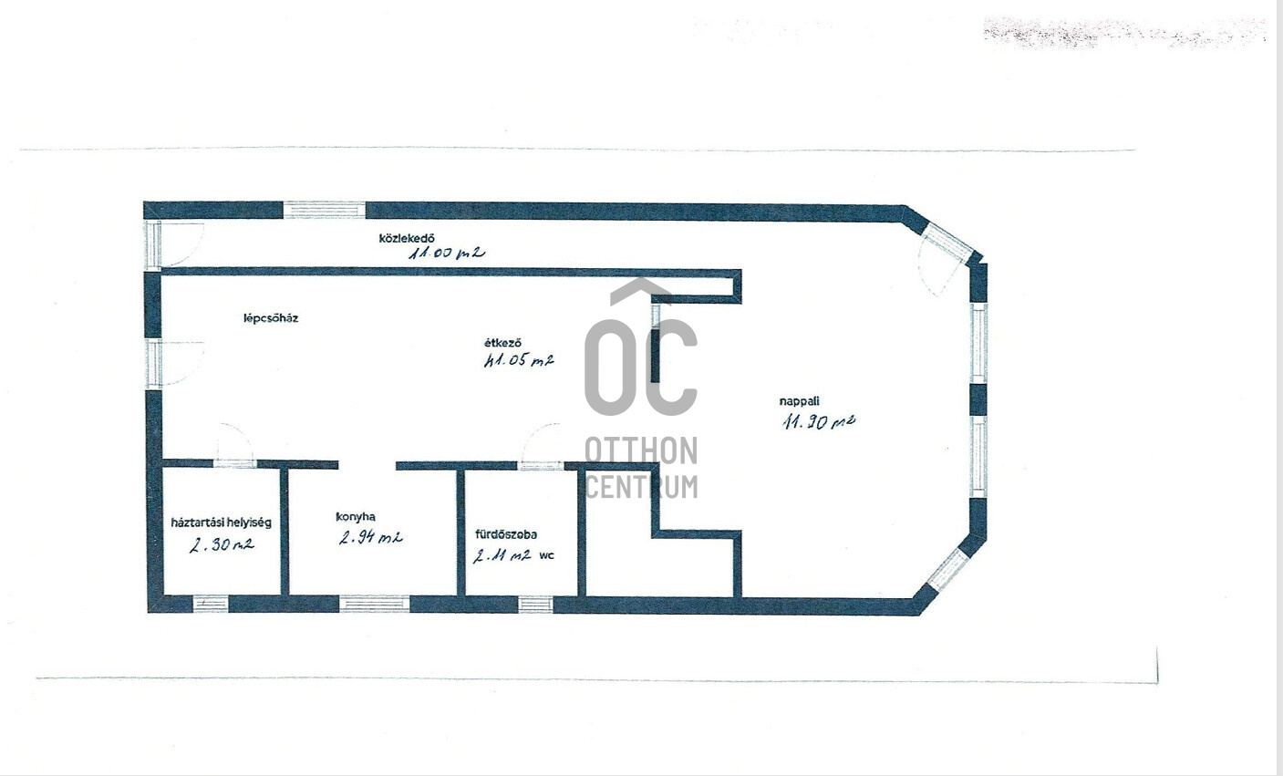
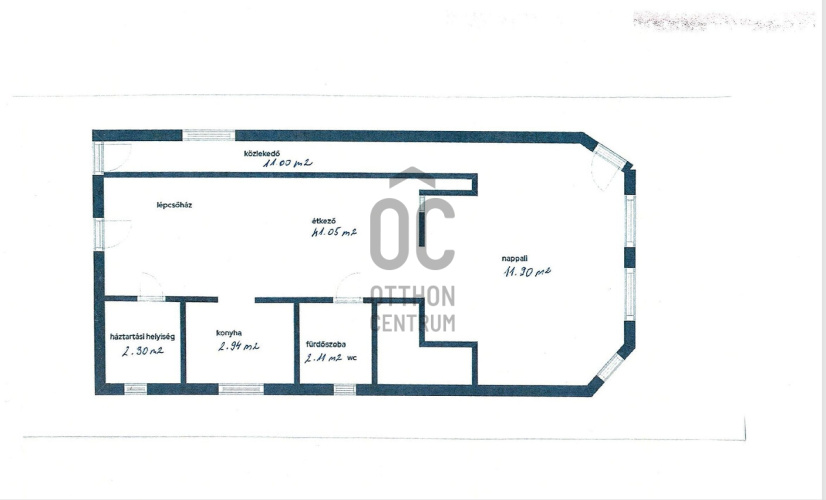
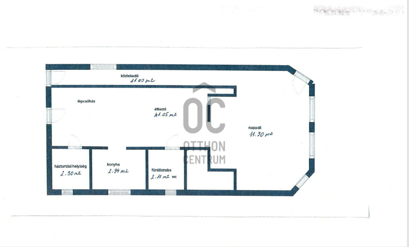
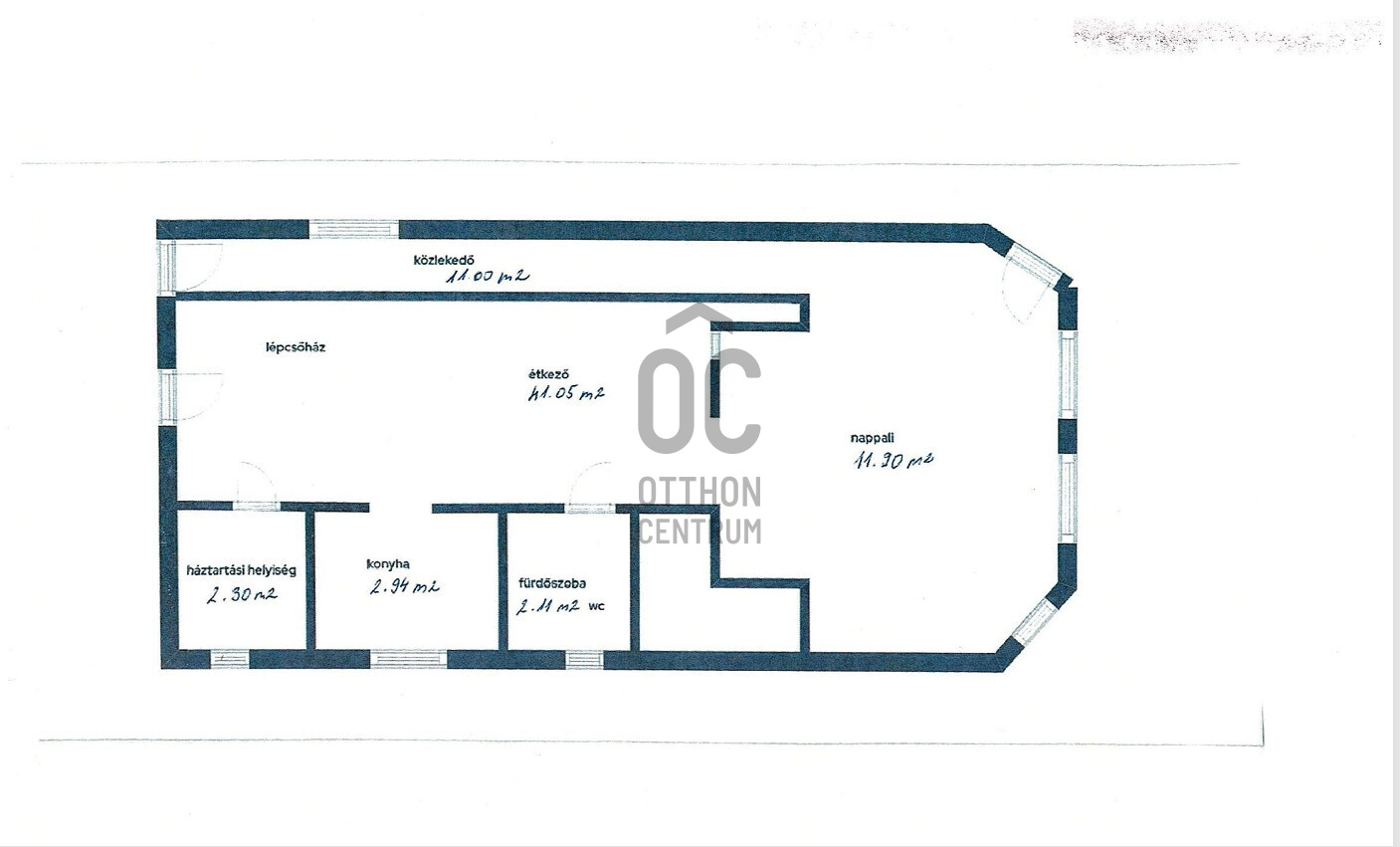
Rooms

room
23.5 m²
room
9.3 m²
living room
11.9 m²
corridor
11 m²
dining room
41.05 m²
kitchen
2.94 m²
utility room
2.3 m²
bathroom
2.11 m²
cellar
16.5 m²
terrace
4.38 m²
Horváth Szabina
Horváth Szabina

Credit Expert

From Our Office Listings - Nagykanizsa - Fő út

for sale family house

Index image
data_sheet.details.realestate.section.main.otthonstart_flag.label
19

for sale family house

Index image
data_sheet.details.realestate.section.main.otthonstart_flag.label
18

for sale family house

Index image
data_sheet.details.realestate.section.main.otthonstart_flag.label
20

for sale family house

Index image
data_sheet.details.realestate.section.main.otthonstart_flag.label
45

for sale family house

Index image
data_sheet.details.realestate.section.main.otthonstart_flag.label
33

for sale apartment

Index image
data_sheet.details.realestate.section.main.otthonstart_flag.label
19

for sale family house

Index image
data_sheet.details.realestate.section.main.otthonstart_flag.label
49

for sale family house

Index image
data_sheet.details.realestate.section.main.otthonstart_flag.label
24

for sale family house

Index image
data_sheet.details.realestate.section.main.otthonstart_flag.label
20

for sale family house

Index image
data_sheet.details.realestate.section.main.otthonstart_flag.label
12

for sale family house

Index image
data_sheet.details.realestate.section.main.otthonstart_flag.label
32