data_sheet.details.realestate.section.main.otthonstart_flag.label
For sale family house,
OHH176551
Somogysárd
7,900,000 Ft
21,000 €
- 77m²
- 3 Rooms
- ground floor



























ÁLMODD MEG ÚJ OTTHONOD SOMOGYSÁRDON
FELÚJÍTÁSRA VÁRÓ CSALÁDI HÁZ ELADÓ SOMOGYSÁRDON
Ha csendes, nyugodt környezetre vágysz, akkor megtaláltad álmaid otthonát! Somogysárd csendes utcájában, eladó ez a felújításra váró CSALÁDI HÁZ, GAZDÁLKODÁSRA IS ALKALMAS nagy telekkel. Az ingatlan vegyes falazatú, tetejét cserép fedi. 2025-ös évben megkezdődött a felújítása, melynek keretében nyílászáróit hőszigetelt műanyagra cserélték. A ház további renoválása az új tulajdonosára vár, melynek csak a képzelet szabhat határt. Az ingatlan sok lehetőséget tartogat. 77 m2-es hasznos alapterületen, kialakítható akár 3 szoba. Nagycsaládosok számára remek befektetés.
ELHELYEZKEDÉS ÉS TÁVOLSÁGOK:
Kaposvártól 20 kilométerre nyugat-északnyugati irányban, a vármegye középső részén található. A szomszédos települések közül Kiskorpádtól 6 kilométerre északra, Mezőcsokonyától 4 kilométerre nyugatra fekszik; harmadik szomszédjától, a tőle nyugatra fekvő Újvárfalvától ugyancsak mintegy 4 kilométer választja el. A megyeszékhely közelsége munkalehetőséget biztosít. A településen van óvoda, iskola, boltok, posta, orvosi rendelő és gyógyszertár is.
AZ INGATLAN FŐBB JELLEMZŐI:
*
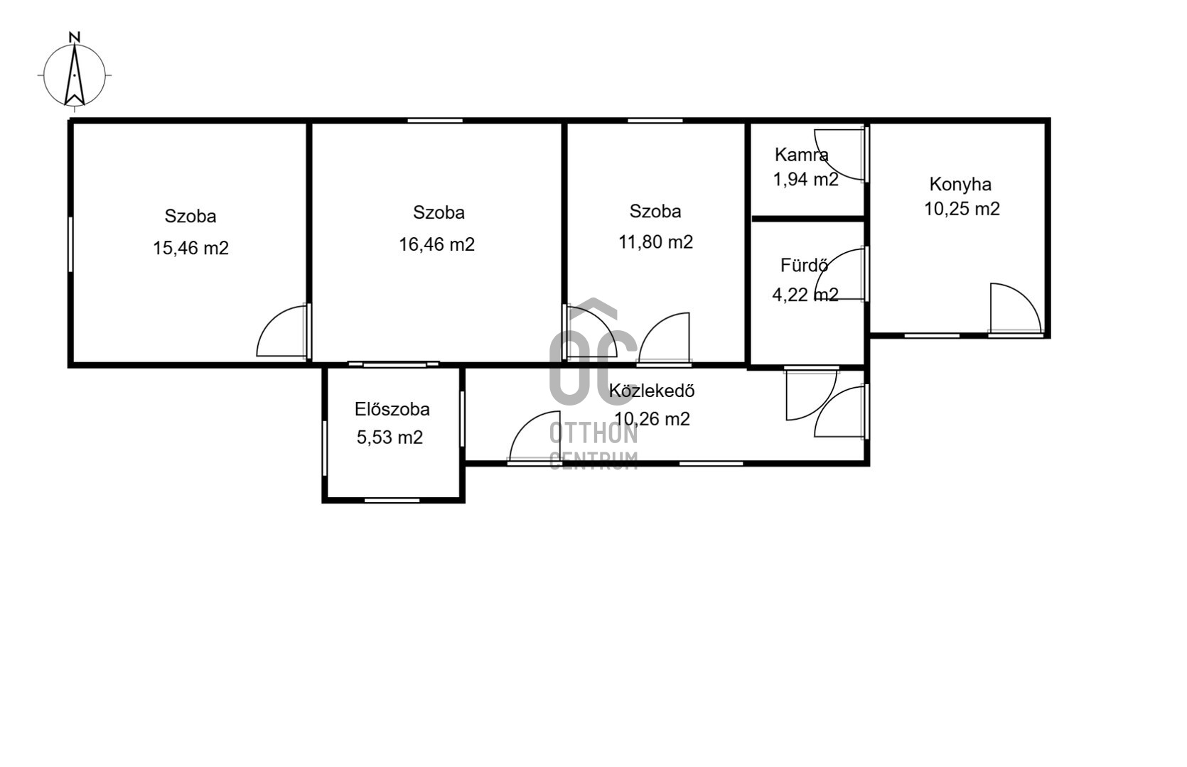
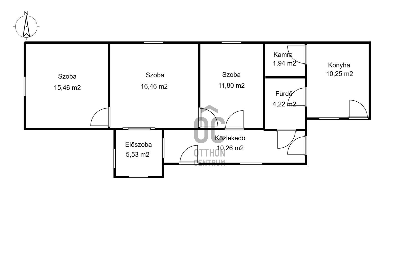
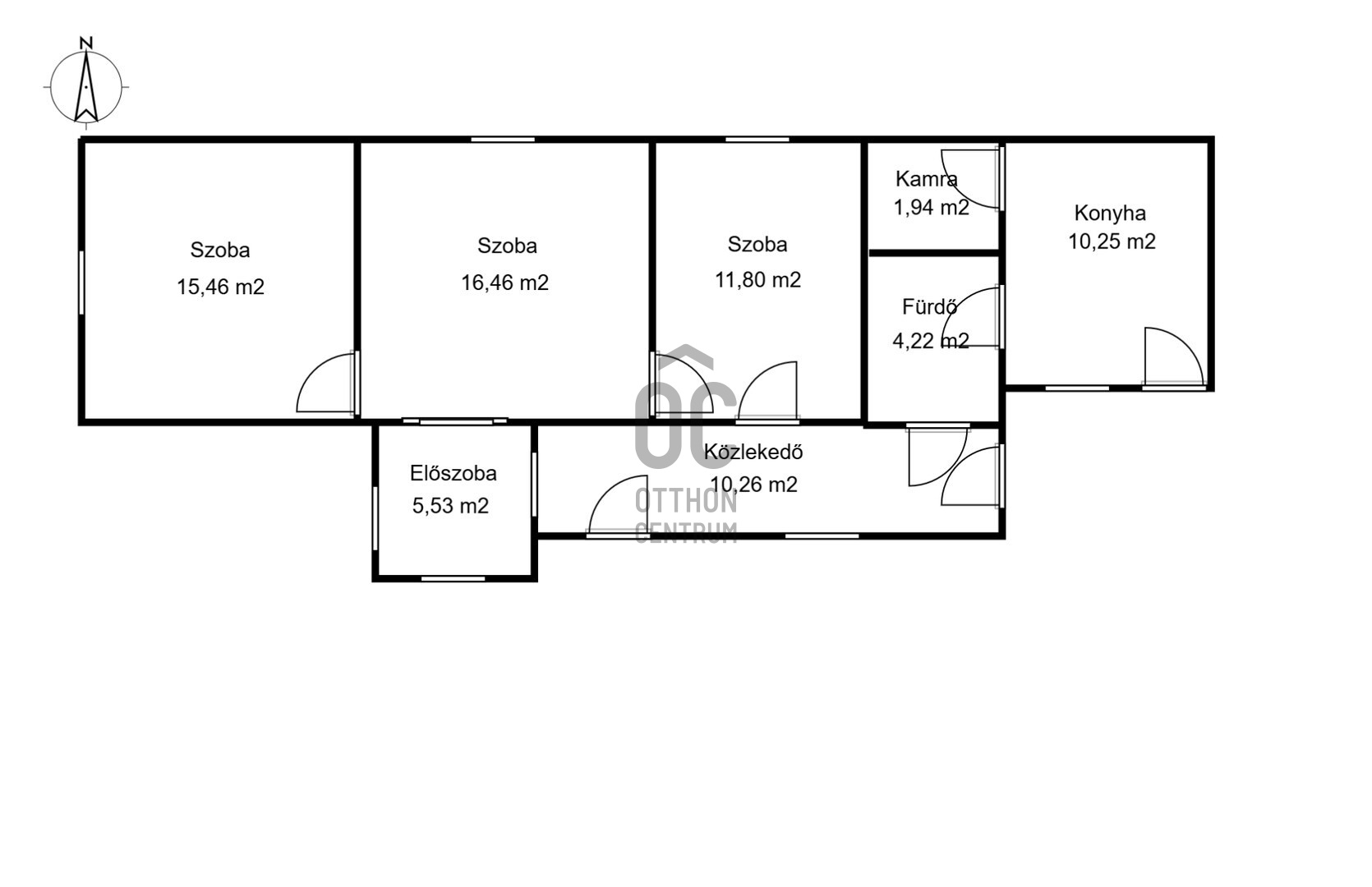
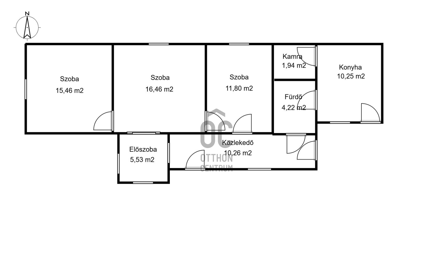
77 M²-ES LAKÓTERÜLET:
* 3 szoba
* Előtér
* Konyha
* Folyosó
* Fürdőszoba és wc
*
2198 M²-ES TELEKEN HELYEZKEDIK EL, AZ INGATLAN FOLYTATÁSAKÉNT VAN NYÁRIKONYHA, GARÁZS IS.
KÖZMŰVEK:
* Víz és villany az épületben, gázcsonk a telken.
TEDD MAGADÉVÁ EZT A CSODÁS LEHETŐSÉGET! Teremtsd meg a tökéletes otthont egy olyan helyen, ahol a béke és a nyugalom az igazi luxus.
Registration Number
OHH176551
Property Details
Sales
for sale
Legal Status
used
Character
house
Construction Method
other
Net Size
77 m²
Plot Size
2,198 m²
Heating
other
Condition
To be renovated
Rooms
room
15.46 m²
living room
16.46 m²
room
11.8 m²
bathroom
4.22 m²
pantry
3.2 m²
kitchen
10.25 m²
corridor
5.53 m²
corridor
10.27 m²

Horváth Szabina
Credit Expert