data_sheet.details.realestate.section.main.otthonstart_flag.label
For sale family house,
OHH175796
Potony
5,500,000 Ft
15,000 €
- 63m²
- 2 Rooms
- ground floor























FELÚJÍTANDÓ CSALÁDI HÁZ ELADÓ POTONYBAN, 5,5 MILLIÓ FORINTÉRT – AKÁR AZONNALI KÖLTÖZÉSSEL, BABAVÁRÓ HITEL IS IGÉNYBE VEHETŐ.
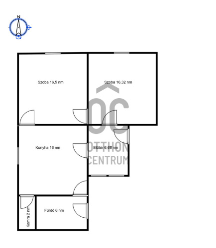
Az ingatlan Somogy megye keleti szélén, Baranya határán, a Dráva közeli, csendes Potony községben található. A tégla falazatú ház stabil szerkezetű, jelenlegi hasznos alapterülete 62,5 m², de könnyedén bővíthető akár harmadik szobával is. A lakótér két tágas szobát, konyhát, kamrát, előszobát és fürdőszobát (WC-vel) foglal magában. A kamra igény szerint külön mosdóvá vagy második mellékhelyiséggé is átalakítható.
Az ingatlan összközműves: víz és villany az épületben megtalálható. Az ingatlan per- és tehermentes, 1/1-es tulajdonú, a szülői haszonélvezeti jog kizárólag formális, melyet az adásvétel során az első lépésként töröltet a tulajdonos.
A hozzá tartozó, 6495 M²-ES TELEK az átlagosnál jóval nagyobb, gazdálkodásra, építkezésre vagy vállalkozási célokra is alkalmas (30%-os beépíthetőség). A 16 MÉTER SZÉLES UTCAFRONT keleti tájolású, így a szobákba reggeltől besüt a nap. A telken egy 93 M²-ES MELLÉKÉPÜLET is található, két részre osztva: az egyik fele egykor 12 állásos lóistállóként működött, a másik oldalon egy autószerelő aknával ellátott, nagy belmagasságú helyiség kapott helyet. Ezek a terek akár műhelynek, tárolónak, nyári konyhának vagy szabadidős célokra is átalakíthatók.
A TETŐ TÁJOLÁSA NAPELEMES RENDSZER KIÉPÍTÉSÉRE IS ALKALMAS.
A falu elhelyezkedése kedvező: autóval vagy tömegközlekedéssel egyaránt jól megközelíthető, a legközelebbi város, Barcs mindössze 20 kilométerre fekszik, míg Szigetvár 25, Pécs és Kaposvár pedig 60–66 kilométeres távolságban találhatók. A horvát határ sincs messze – a közeli Verőce mindössze 34 kilométer –, így akár külföldi munkavállalás vagy kirándulás is könnyen elérhető innen.
Potony nyugodt, természeti környezete ideális lehet akár állandó lakhatásra, akár hétvégi háznak, vagy vadászházként, falusi szállásként is. A falu határában erdő található, mely kiváló kirándulási, túrázási lehetőségeket kínál.
A település az elmúlt években jelentős fejlődésen ment keresztül: kiépült a nagy sebességű optikai internethálózat, megújult az elektromos infrastruktúra, felújították az önkormányzati épületet és a falu közterei is rendezettebbé váltak. Az új fix kültéri színpad a helyi rendezvények központi helyszínévé vált, a korszerű vízelvezető rendszer pedig tovább növeli az itt élők komfortérzetét.
Registration Number
OHH175796
Property Details
Sales
for sale
Legal Status
used
Character
house
Construction Method
brick
Net Size
63 m²
Plot Size
6,495 m²
Heating
other
Condition
To be renovated
Year of Construction
1940
Rooms
room
16 m²
room
16 m²
kitchen
16 m²
corridor
6 m²
bathroom
6 m²
pantry
2 m²

Horváth Szabina
Credit Expert