data_sheet.details.realestate.section.main.otthonstart_flag.label
For sale apartment, OHH171510
Miskolc, Belváros

39,900,000 Ft

105,000 €

  • 150m²
  • 6 Rooms
  • ground floor
Exclusive Contract


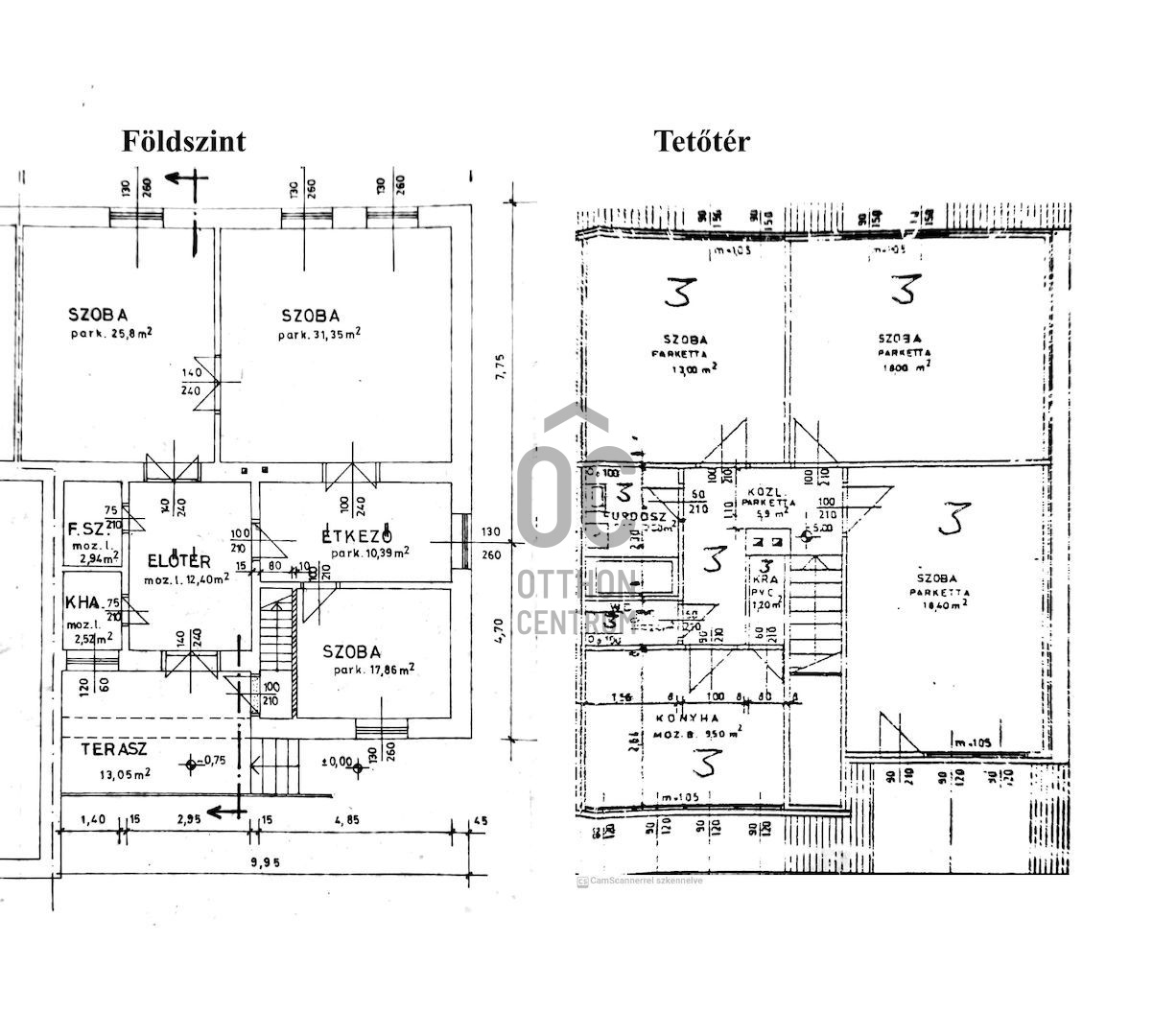
A belvárosi épület az 1940-es években épült téglából, majd 1987-ben utólagos energiahatékonysági fejlesztést kapott. A külső határoló falaknál nikecell, valamint PVC homlokzatburkolati rendszerrel. A födém szigetelését 10 cm vastag ISOLYTH hőszigeteléssel látták el.

A földszinti lakótér 101 m2, melyben helyet kapott egy konyha, tágas előszoba/hal, étkező, fürdőszoba és 3 szoba. A tetőtérben 71m2-en kialakításra került 3 szoba, konyha, fürdőszoba és wc helyiségek.

A földszinten a fűtésről gázkonvektorok gondoskodnak, a tetőtérben a meleget gázkazán biztosítja lapradiátoros hőleadással. A villamoshálózat mindkét szinten rézhuzallal került kiépítésre. A két lakóegység (földszint és tetőtér) önálló albetétként szerepel az ingatlan-nyilvántartásban és saját mérőórákkal rendelkezik.
 

A nyílászárók fa szerkezetűek, a tetőtérben SOFA típusúak, azonban egyaránt felújítást igényelnek. A szobák és a közlekedők burkolatai jó állapotban lévő faparketták, a többi helyiség műpadlóval, illetve járólappal burkolt.

Jelenleg a tetőtér külön bejárattal közelíthető meg, igény esetén statikailag a földszinti közlekedőből kialakítható az összenyitás.

A lakáshoz 19m2-es garázs tartozik. 

A környék infrastruktúrája kiváló, piac, bevásárló központ, pláza, tömegközlekedés alig pár perces sétával elérhető!

 

Registration Number

OHH171510

Property Details

Sales
for sale
Legal Status
used
Character
apartment
Construction Method
brick
Net Size
150 m²
Plot Size
546 m²
Heating
Gas circulator
Condition
To be renovated
Year of Construction
1940

Rooms

living room
30 m²
room
27 m²
room
18 m²
bathroom
4 m²
kitchen
9 m²
dining room
9 m²
corridor
4 m²
kitchen
9 m²
bathroom
4 m²
toilet
2 m²
room
18 m²
room
18 m²
room
13 m²
corridor
6 m²
Varkolyné Viktória
Varkolyné Viktória

Credit Expert

From Our Office Listings - Miskolc - Szemere utca

for sale apartment

Index image
data_sheet.details.realestate.section.main.otthonstart_flag.label
28

for sale apartment

Index image
24

for sale plot

Index image
17

for sale apartment

Index image
data_sheet.details.realestate.section.main.otthonstart_flag.label
13

for sale plot

Index image
14

for sale apartment

Index image
data_sheet.details.realestate.section.main.otthonstart_flag.label
19

for sale plot

Index image
15

for sale semi-detached house

Index image
data_sheet.details.realestate.section.main.otthonstart_flag.label
10