228,000,000 Ft
587,000 €
- 156m²
- 5 Rooms
Egyedi hangulat, modern tartalom – otthon Zugló kertvárosában
Budapest XIV. kerületének egyik legkedveltebb, kertvárosi részén, a Zugló szívében, a Rákospatak vonzáskörzetében, egy forgalomtól mentes kis utcában kínálunk megvételre ezt a különleges ingatlant.
A fiatal építész-tervező csapat egy igazán egyedi koncepciót álmodott meg: a klasszikus, eredeti homlokzati karakter harmonikusan ötvöződik a modern, letisztult és funkcionális formavilággal. A belsőépítész a családias, bensőséges hangulat megteremtésére helyezte a hangsúlyt, így az otthonok egyszerre sugároznak eleganciát és melegséget.
A kialakítás
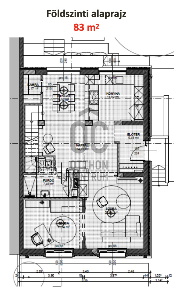
Földszint:
- 83 m² alapterület
- 33 m² teljes értékű szuterén, ahol fürdőszoba kialakítható
- Akár külön lakrészként, dolgozószobaként vagy vendégapartmanként is használható
- kert
- 2 db autóbeálló
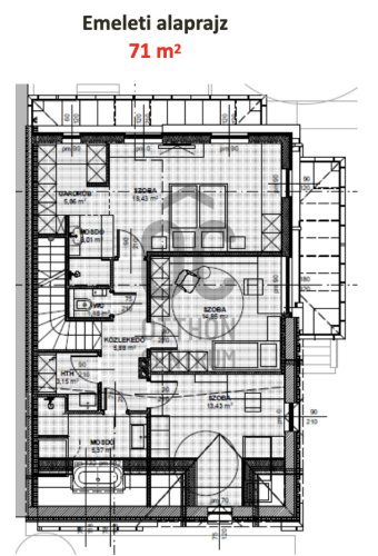
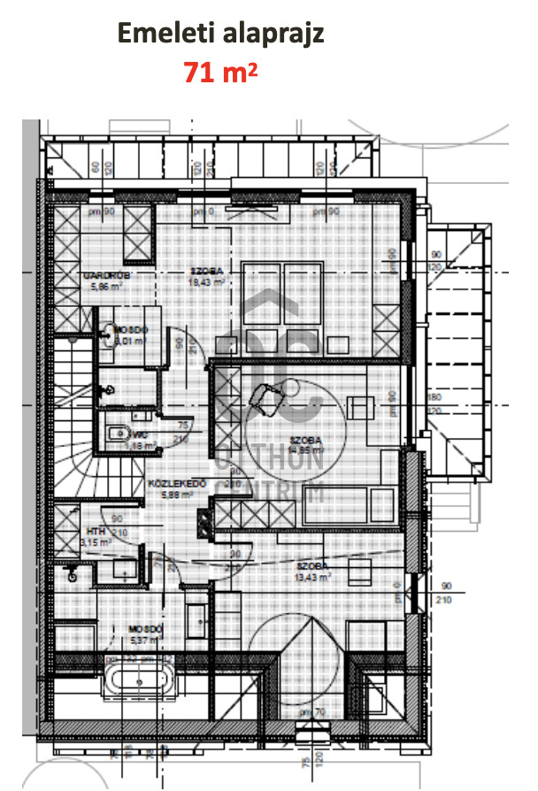
Emelet:
- 73 m² alapterület
- Világos, jól variálható belső terek
- a szobaméretek jelen készültségi fokban még alakíthatóak
Műszaki tartalom:
- Korszerű, energiatakarékos hőszivattyús hűtés–fűtés rendszer
- Igényes, modern műszaki megoldások
- Átgondolt térszervezés
Az ingatlan jelenlegi készültségi szintjén még lehetőség van:
- Burkolatok kiválasztására
- Belső elrendezés igény szerinti alakítására
Így az új tulajdonos valóban saját igényeire szabhatja leendő otthonát.
Rendelkezésre álló dokumentáció:
Az építkezés teljes körű, rendezett műszaki háttérrel rendelkezik:
- Egyszerű bejelentési dokumentáció lakóépület bővítésére (Zuglói főépítész által elfogadva, 2022. február)
- Méretezett alaprajzok (pince, földszint, emelet)
- Metszetrajzok, rétegrendek, anyaghasználati tervek
- Épületgépészeti és épületvillamossági rendszerleírások
- Teljes műszaki tervdokumentáció
- Tartószerkezeti és tetőszerkezeti tervek
- Vasalási tervek (alapozás, pincefödém, földszint feletti födém, tetőszerkezet)
- Vasmennyiségi kimutatások
- Anyagok
- A pince- és földszinti födémhez a teljes betonvas mennyiség rendelkezésre áll
Tervezett átadás 4-6 hónapon belül.
A kivitelező számos referenciával rendelkezik.
Ez az ingatlan ideális választás lehet:
- többgenerációs családoknak,
- befektetőknek (külön hasznosítható lakrészek),
- vagy azoknak, akik modern, mégis otthonos környezetben szeretnének élni Zugló egyik legnyugodtabb utcájában.
Ha egy különleges karakterű, személyre szabható otthont keres kertvárosi környezetben, ez az ingatlan kivételes lehetőség.
A fiatal építész-tervező csapat egy igazán egyedi koncepciót álmodott meg: a klasszikus, eredeti homlokzati karakter harmonikusan ötvöződik a modern, letisztult és funkcionális formavilággal. A belsőépítész a családias, bensőséges hangulat megteremtésére helyezte a hangsúlyt, így az otthonok egyszerre sugároznak eleganciát és melegséget.
A kialakítás
Földszint:
- 83 m² alapterület
- 33 m² teljes értékű szuterén, ahol fürdőszoba kialakítható
- Akár külön lakrészként, dolgozószobaként vagy vendégapartmanként is használható
- kert
- 2 db autóbeálló
Emelet:
- 73 m² alapterület
- Világos, jól variálható belső terek
- a szobaméretek jelen készültségi fokban még alakíthatóak
Műszaki tartalom:
- Korszerű, energiatakarékos hőszivattyús hűtés–fűtés rendszer
- Igényes, modern műszaki megoldások
- Átgondolt térszervezés
Az ingatlan jelenlegi készültségi szintjén még lehetőség van:
- Burkolatok kiválasztására
- Belső elrendezés igény szerinti alakítására
Így az új tulajdonos valóban saját igényeire szabhatja leendő otthonát.
Rendelkezésre álló dokumentáció:
Az építkezés teljes körű, rendezett műszaki háttérrel rendelkezik:
- Egyszerű bejelentési dokumentáció lakóépület bővítésére (Zuglói főépítész által elfogadva, 2022. február)
- Méretezett alaprajzok (pince, földszint, emelet)
- Metszetrajzok, rétegrendek, anyaghasználati tervek
- Épületgépészeti és épületvillamossági rendszerleírások
- Teljes műszaki tervdokumentáció
- Tartószerkezeti és tetőszerkezeti tervek
- Vasalási tervek (alapozás, pincefödém, földszint feletti födém, tetőszerkezet)
- Vasmennyiségi kimutatások
- Anyagok
- A pince- és földszinti födémhez a teljes betonvas mennyiség rendelkezésre áll
Tervezett átadás 4-6 hónapon belül.
A kivitelező számos referenciával rendelkezik.
Ez az ingatlan ideális választás lehet:
- többgenerációs családoknak,
- befektetőknek (külön hasznosítható lakrészek),
- vagy azoknak, akik modern, mégis otthonos környezetben szeretnének élni Zugló egyik legnyugodtabb utcájában.
Ha egy különleges karakterű, személyre szabható otthont keres kertvárosi környezetben, ez az ingatlan kivételes lehetőség.
Registration Number
H515427
Property Details
Sales
for sale
Legal Status
used
Character
house
Construction Method
brick
Net Size
156 m²
Gross Size
189 m²
Plot Size
278 m²
Heating
heat pump
Ceiling Height
275 cm
Number of Levels Within the Property
2
Orientation
West
View
Green view
Condition
Excellent
Condition of Facade
Excellent
Basement
Independent
Neighborhood
quiet, green
Year of Construction
2026
Number of Bathrooms
3
Garage
Included in the price
Water
Available
Electricity
Available
Sewer
Available
Rooms
entryway
5.49 m²
kitchen
11.92 m²
dining room
9.12 m²
living room
14.25 m²
room
20.61 m²
room
11.84 m²
bathroom-toilet
7.49 m²
storage
2.17 m²
entryway
5.88 m²
room
18.43 m²
room
14.85 m²
room
13.43 m²
bathroom
5.37 m²
toilet
3.01 m²
utility room
3.15 m²
wardrobe
5.86 m²
toilet
1.18 m²
other room
33.36 m²
Berkes-Jakus Kinga
Credit Expert