162,900,000 Ft
453,000 €
- 128.8m²
- 8 Rooms
Többgenerációs balatoni bázis, tökéletes állapotban!
Többgenerációs balatoni bázist keresel, ahol együtt lehet a család, de mindenkinek megvan a saját tere vagy kiadáson töröd a fejed?
Siófok-Sóstón ez a 8 szobás, két szintes, kiváló állapotú családi ház garázzsal, 6 felszíni beállóval és zöldre néző panorámával vár. Két külön nappali-étkezős szint, hatalmas erkély és terasz, önálló tároló – tökéletes nagycsaládnak, “szülők lent, gyerekek fent” felállásra, vagy akár vendégezésre, vállalkozás mellé.
Csendes utca, sok autóhely - külön beálló rész a két szintnek! - Balaton-közeli életérzés – ha tágas otthont keresel, ez nagyon komoly opció.
Referencia szám: H515232
Besorolás: lakóingatlan, családi ház (emeletes ikerház)
Építés módja: tégla (30 cm)
Telek méret: 681 nm
Nettó méret: 128,8 nm
Bruttó méret: 185.98 nm
Belmagasság: 270 cm
Szobák száma: 8
Fürdőszobák: 2
Külön álló wc-k: 2
Terasz: van
Erkély: van
Szintszám: 2 szint (földszint + 1. emelet - külön megközelíthetőek)
Fűtés/hűtés: hűtő-fűtő klíma (3,5 kW), elektromos fűtőpanel és kandalló
Építés éve: 2024
Tájolás: D
Közút burkolata: aszfaltozott
Utcafronti szélesség: 20 m
Medence, jakuzzi: kertben van rá lehetőség
Szauna: kertben van rá lehetőség
Pince: nincs
Tároló: van
Garázs: van (2 férőhelyes)
Nyitott beálló férőhely: 6
Állapot
- ingatlan: kiváló
- ház/homlokzat állapota: kiváló
- szigetelés: korszerű (15 cm)
- nyílászárók: jó állapotú, modern műanyag, földszinten redőny és szúnyogháló
- tető: jó állapotú, ácsolt szerkezet, betoncserép
- burkolás, festés: igényes, jó állapotú (járólap + laminált)
Közművek
- víz: bekötve (csapadék szabad elvezetéssel), fúrt kút és locsolás mérő nincs
- gáz: nincs
- villany: bekötve (földkábel, 3x25A), érintésvédelem van, H tarifa nincs
- csatorna: bekötve
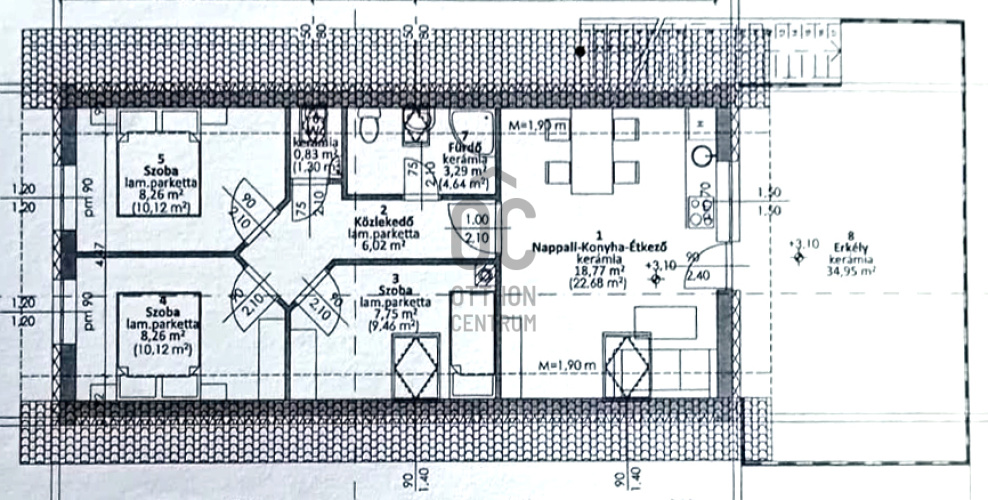
Helyiséglista:
Földszint: 64,5 nm + 22,23 nm terasz
- nappali-étkező: 22.68 m²
- hálószoba: 9.62 m²
- hálószoba: 10.12 m²
- hálószoba: 10.12 m²
- fürdőszoba: 4.64 m²
- wc: 1,3 m²
- közlekedő: 6.02 m²
- terasz: 20.23 m²
- garázs / tároló:
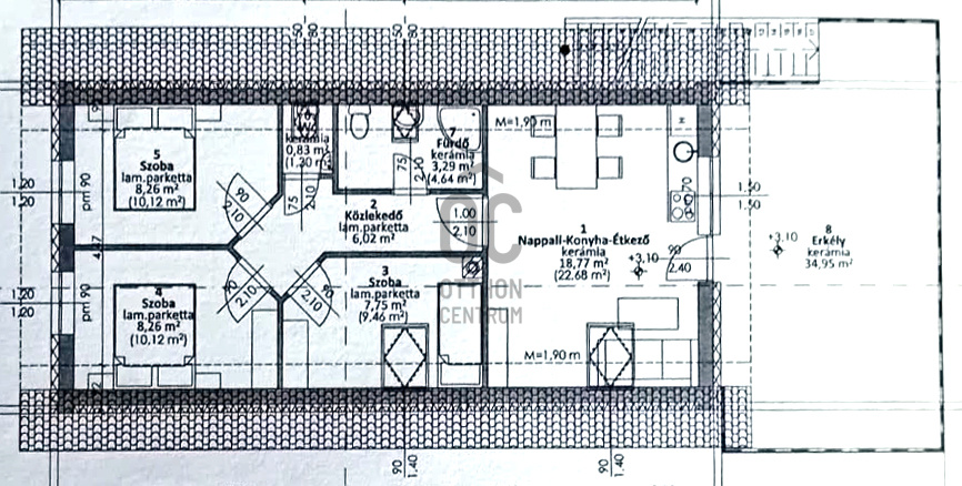
1. emelet: 64,3 nm + 34,95 nm erkély
- nappali-étkező: 22.68 m²
- hálószoba: 9.46 m²
- hálószoba: 10.12 m²
- hálószoba: 10.12 m²
- fürdőszoba: 4.64 m²
- wc: 1.3 m²
- közlekedő: 6.02 m²
- erkély: 34.95 m²
Összesen: 128,8 nm + 57,18 nm terasz/erkély = 185,98 nm
Az energetikai tanúsítvány készítése folyamatban van, amint rendelkezésre áll, úgy azzal a hirdetés frissítésre kerül.
(A képek között mesterséges intelligencia segítségével készített látványtervek, 3D alaprajzok is vannak, amikkel bemutatom az ingatlanban rejlő potenciált. Ezek a képek tájékoztató jellegűek, a jelenlegi helyzettől eltérhetnek.)
Keressen bizalommal!
Siófok-Sóstón ez a 8 szobás, két szintes, kiváló állapotú családi ház garázzsal, 6 felszíni beállóval és zöldre néző panorámával vár. Két külön nappali-étkezős szint, hatalmas erkély és terasz, önálló tároló – tökéletes nagycsaládnak, “szülők lent, gyerekek fent” felállásra, vagy akár vendégezésre, vállalkozás mellé.
Csendes utca, sok autóhely - külön beálló rész a két szintnek! - Balaton-közeli életérzés – ha tágas otthont keresel, ez nagyon komoly opció.
Referencia szám: H515232
Besorolás: lakóingatlan, családi ház (emeletes ikerház)
Építés módja: tégla (30 cm)
Telek méret: 681 nm
Nettó méret: 128,8 nm
Bruttó méret: 185.98 nm
Belmagasság: 270 cm
Szobák száma: 8
Fürdőszobák: 2
Külön álló wc-k: 2
Terasz: van
Erkély: van
Szintszám: 2 szint (földszint + 1. emelet - külön megközelíthetőek)
Fűtés/hűtés: hűtő-fűtő klíma (3,5 kW), elektromos fűtőpanel és kandalló
Építés éve: 2024
Tájolás: D
Közút burkolata: aszfaltozott
Utcafronti szélesség: 20 m
Medence, jakuzzi: kertben van rá lehetőség
Szauna: kertben van rá lehetőség
Pince: nincs
Tároló: van
Garázs: van (2 férőhelyes)
Nyitott beálló férőhely: 6
Állapot
- ingatlan: kiváló
- ház/homlokzat állapota: kiváló
- szigetelés: korszerű (15 cm)
- nyílászárók: jó állapotú, modern műanyag, földszinten redőny és szúnyogháló
- tető: jó állapotú, ácsolt szerkezet, betoncserép
- burkolás, festés: igényes, jó állapotú (járólap + laminált)
Közművek
- víz: bekötve (csapadék szabad elvezetéssel), fúrt kút és locsolás mérő nincs
- gáz: nincs
- villany: bekötve (földkábel, 3x25A), érintésvédelem van, H tarifa nincs
- csatorna: bekötve
Helyiséglista:
Földszint: 64,5 nm + 22,23 nm terasz
- nappali-étkező: 22.68 m²
- hálószoba: 9.62 m²
- hálószoba: 10.12 m²
- hálószoba: 10.12 m²
- fürdőszoba: 4.64 m²
- wc: 1,3 m²
- közlekedő: 6.02 m²
- terasz: 20.23 m²
- garázs / tároló:
1. emelet: 64,3 nm + 34,95 nm erkély
- nappali-étkező: 22.68 m²
- hálószoba: 9.46 m²
- hálószoba: 10.12 m²
- hálószoba: 10.12 m²
- fürdőszoba: 4.64 m²
- wc: 1.3 m²
- közlekedő: 6.02 m²
- erkély: 34.95 m²
Összesen: 128,8 nm + 57,18 nm terasz/erkély = 185,98 nm
Az energetikai tanúsítvány készítése folyamatban van, amint rendelkezésre áll, úgy azzal a hirdetés frissítésre kerül.
(A képek között mesterséges intelligencia segítségével készített látványtervek, 3D alaprajzok is vannak, amikkel bemutatom az ingatlanban rejlő potenciált. Ezek a képek tájékoztató jellegűek, a jelenlegi helyzettől eltérhetnek.)
Keressen bizalommal!
Registration Number
H515232
Property Details
Sales
for sale
Legal Status
used
Character
house
Construction Method
brick
Net Size
128.8 m²
Gross Size
185.9 m²
Plot Size
681 m²
Size of Terrace / Balcony
57.1 m²
Ceiling Height
270 cm
Number of Levels Within the Property
1
Orientation
South
View
Green view
Condition
Excellent
Condition of Facade
Excellent
Neighborhood
quiet, green
Year of Construction
2024
Number of Bathrooms
2
Garage
Included in the price
Garage Spaces
2
Water
Available
Electricity
Available
Sewer
Available
Multi-Generational
yes
Energy Certificate
A+
Storage
Independent
Rooms
open-plan living and dining room
22.68 m²
bedroom
9.62 m²
bedroom
10.12 m²
bedroom
10.12 m²
bathroom
4.64 m²
toilet
1.3 m²
terrace
20.23 m²
open-plan living and dining room
22.68 m²
bedroom
9.46 m²
bedroom
10.12 m²
bedroom
10.12 m²
bathroom
4.64 m²
toilet
1.3 m²
balcony
34.95 m²
corridor
6.02 m²
corridor
6.02 m²
Dienes László
Credit Expert