129,000,000 Ft
361,000 €
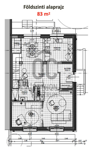
- 83m²
- 4 Rooms
- ground floor
Egyedi hangulat, modern tartalom – otthon Zugló kertvárosában
We offer this special property for sale in one of the most popular, suburban areas of Budapest's 14th district, in the heart of Zugló, in the Rákospatak catchment area, on a small street free of traffic.
The young architectural and design team dreamed up a truly unique concept: the classic, original facade character harmoniously combines with the modern, clean and functional design. The interior designer focused on creating a family-friendly, intimate atmosphere, so the homes radiate elegance and warmth at the same time.
The design
The property will consist of two separate apartments:
Ground floor apartment:
- 83 m² floor area
- 33 m² full basement
- Bathroom can be created
- Can be used as a separate living area, study or guest apartment
- 40 sqm private garden
- carport
Upper floor apartment:
- 73 m² floor area
- Bright, highly variable interior spaces
- 70 sqm private garden
- carport
Technical content:
- Modern, energy-saving heat pump cooling-heating system
- Sophisticated, modern technical solutions
- Thoughtful space organization
At the current level of completion of the property, it is still possible to:
- Select coverings
- Customize the interior layout as needed
This way, the new owner can truly tailor their future home to their own needs.
Available documentation:
The construction has a complete, organized technical background:
- Simple notification documentation for the extension of a residential building (accepted by the chief architect of Zugló, February 2022)
- Scaled floor plans (basement, ground floor, first floor)
- Sectional drawings, layer orders, material usage plans
- Building mechanical and electrical system descriptions
- Complete technical design documentation
- Support structure and roof structure plans
- Reinforcement plans (foundation, basement floor, floor above ground floor, roof structure)
- Iron quantity statements
- Materials
- The full amount of concrete iron is available for the basement and ground floor floor
Planned handover within 4-6 months.
This property could be an ideal choice for:
- multi-generational families,
- investors (separately usable living areas),
- or those who want to live in a modern, yet homely environment in one of the quietest streets in Zugló.
If you are looking for a unique, customizable home in a suburban environment, this property is an exceptional opportunity.
The young architectural and design team dreamed up a truly unique concept: the classic, original facade character harmoniously combines with the modern, clean and functional design. The interior designer focused on creating a family-friendly, intimate atmosphere, so the homes radiate elegance and warmth at the same time.
The design
The property will consist of two separate apartments:
Ground floor apartment:
- 83 m² floor area
- 33 m² full basement
- Bathroom can be created
- Can be used as a separate living area, study or guest apartment
- 40 sqm private garden
- carport
Upper floor apartment:
- 73 m² floor area
- Bright, highly variable interior spaces
- 70 sqm private garden
- carport
Technical content:
- Modern, energy-saving heat pump cooling-heating system
- Sophisticated, modern technical solutions
- Thoughtful space organization
At the current level of completion of the property, it is still possible to:
- Select coverings
- Customize the interior layout as needed
This way, the new owner can truly tailor their future home to their own needs.
Available documentation:
The construction has a complete, organized technical background:
- Simple notification documentation for the extension of a residential building (accepted by the chief architect of Zugló, February 2022)
- Scaled floor plans (basement, ground floor, first floor)
- Sectional drawings, layer orders, material usage plans
- Building mechanical and electrical system descriptions
- Complete technical design documentation
- Support structure and roof structure plans
- Reinforcement plans (foundation, basement floor, floor above ground floor, roof structure)
- Iron quantity statements
- Materials
- The full amount of concrete iron is available for the basement and ground floor floor
Planned handover within 4-6 months.
This property could be an ideal choice for:
- multi-generational families,
- investors (separately usable living areas),
- or those who want to live in a modern, yet homely environment in one of the quietest streets in Zugló.
If you are looking for a unique, customizable home in a suburban environment, this property is an exceptional opportunity.
Registration Number
H514577
Property Details
Sales
for sale
Legal Status
used
Character
apartment
Construction Method
brick
Net Size
83 m²
Gross Size
116 m²
Heating
heat pump
Ceiling Height
275 cm
Number of Levels Within the Property
2
Orientation
West
View
Green view
Staircase Type
none
Condition
Excellent
Condition of Facade
Excellent
Condition of Staircase
Excellent
Basement
Independent
Neighborhood
quiet, green
Year of Construction
2025
Number of Bathrooms
2
Position
garden-facing
Garage
Included in the price
Water
Available
Electricity
Available
Sewer
Available
Connected to Garden
yes
Rooms
entryway
5.49 m²
kitchen
11.92 m²
dining room
9.12 m²
living room
14.25 m²
room
20.61 m²
room
11.84 m²
bathroom-toilet
7.49 m²
storage
2.17 m²
room
33.36 m²
Berkes-Jakus Kinga
Credit Expert