data_sheet.details.realestate.section.main.otthonstart_flag.label
For sale apartment,
H514385
Budapest XIV. kerület, Alsórákos
99,000,000 Ft
277,000 €
- 73m²
- 3 Rooms
- 1st floor
Egyedi hangulat, modern tartalom – otthon Zugló kertvárosában
We offer this special property for sale in one of the most popular, garden-suburban parts of Budapest's 14th district, in the heart of Zugló, in the Rákospatak catchment area, on a small street free of traffic.
The young architectural and design team dreamed up a truly unique concept: the classic, original facade character harmoniously combines with modern, clean and functional design. The interior designer focused on creating a family-friendly, intimate atmosphere, so the homes radiate elegance and warmth at the same time.
The design
The property will consist of two separate apartments.
First floor apartment:
- 73 m² floor area
- Bright, highly variable interior spaces
- 70 sqm private garden
- room sizes can still be adjusted at this stage of completion
- carport
Technical content:
- Modern, energy-saving heat pump cooling-heating system
- Sophisticated, modern technical solutions
- Thoughtful space organization
At the current stage of completion of the property, it is still possible to:
- Select coverings
- Customize the interior layout
This way, the new owner can truly tailor their future home to their own needs.
Available documentation:
The construction has a complete, organized technical background:
- Simple notification documentation for the extension of a residential building (accepted by the chief architect of Zugló, February 2022)
- Scaled floor plans (basement, ground floor, first floor)
- Sectional drawings, layer orders, material usage plans
- Building mechanical and electrical system descriptions
- Complete technical design documentation
- Support structure and roof structure plans
- Reinforcement plans (foundation, basement floor, floor above ground floor, roof structure)
- Iron quantity statements
- Materials
- The full amount of concrete iron is available for the basement and ground floor floor
Planned handover within 4-6 months.
The contractor has numerous references.
This property could be an ideal choice for:
- multi-generational families,
- investors (separately usable living areas),
- or those who want to live in a modern, yet homely environment in one of the quietest streets in Zugló.
If you are looking for a unique, customizable home in a suburban environment, this property is an exceptional opportunity.
The young architectural and design team dreamed up a truly unique concept: the classic, original facade character harmoniously combines with modern, clean and functional design. The interior designer focused on creating a family-friendly, intimate atmosphere, so the homes radiate elegance and warmth at the same time.
The design
The property will consist of two separate apartments.
First floor apartment:
- 73 m² floor area
- Bright, highly variable interior spaces
- 70 sqm private garden
- room sizes can still be adjusted at this stage of completion
- carport
Technical content:
- Modern, energy-saving heat pump cooling-heating system
- Sophisticated, modern technical solutions
- Thoughtful space organization
At the current stage of completion of the property, it is still possible to:
- Select coverings
- Customize the interior layout
This way, the new owner can truly tailor their future home to their own needs.
Available documentation:
The construction has a complete, organized technical background:
- Simple notification documentation for the extension of a residential building (accepted by the chief architect of Zugló, February 2022)
- Scaled floor plans (basement, ground floor, first floor)
- Sectional drawings, layer orders, material usage plans
- Building mechanical and electrical system descriptions
- Complete technical design documentation
- Support structure and roof structure plans
- Reinforcement plans (foundation, basement floor, floor above ground floor, roof structure)
- Iron quantity statements
- Materials
- The full amount of concrete iron is available for the basement and ground floor floor
Planned handover within 4-6 months.
The contractor has numerous references.
This property could be an ideal choice for:
- multi-generational families,
- investors (separately usable living areas),
- or those who want to live in a modern, yet homely environment in one of the quietest streets in Zugló.
If you are looking for a unique, customizable home in a suburban environment, this property is an exceptional opportunity.
Registration Number
H514385
Property Details
Sales
for sale
Legal Status
used
Character
apartment
Construction Method
brick
Net Size
73 m²
Gross Size
73 m²
Garden Size
70 m²
Heating
heat pump
Ceiling Height
275 cm
Number of Levels Within the Property
1
Orientation
West
View
Green view
Staircase Type
enclosed staircase
Condition
Excellent
Condition of Facade
Excellent
Condition of Staircase
Excellent
Neighborhood
quiet, green
Year of Construction
2025
Number of Bathrooms
1
Position
garden-facing
Condominium Garden
yes
Water
Available
Electricity
Available
Sewer
Available
Connected to Garden
yes
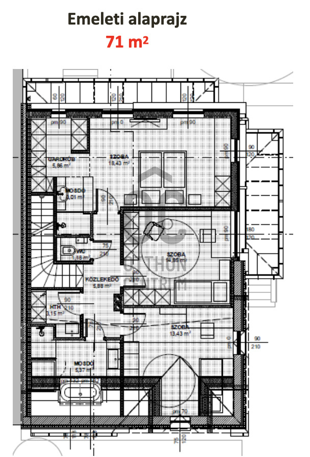
Rooms
entryway
5.88 m²
living room
18.43 m²
room
14.85 m²
room
13.43 m²
bathroom-toilet
5.37 m²
bathroom
3.01 m²
utility room
3.15 m²
wardrobe
5.86 m²
toilet-washbasin
1.18 m²
Berkes-Jakus Kinga
Credit Expert