309,000,000 Ft
818,000 €
- 210m²
- 5 Rooms
Minimalista stílusban, maximális minőségben idén elkészült, 5 szobás családi ház
Fedezze fel ezt a kivételes lehetőséget Szentendre, Pismány városrészében, ahol egy új építésű, idén elkészült, modern ház várja Önt és családját.
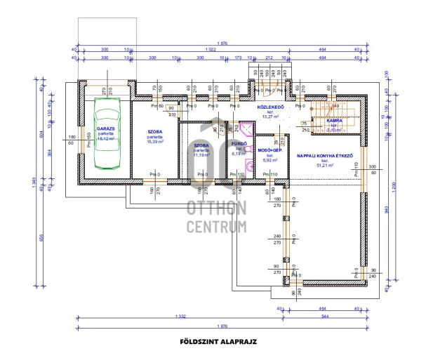
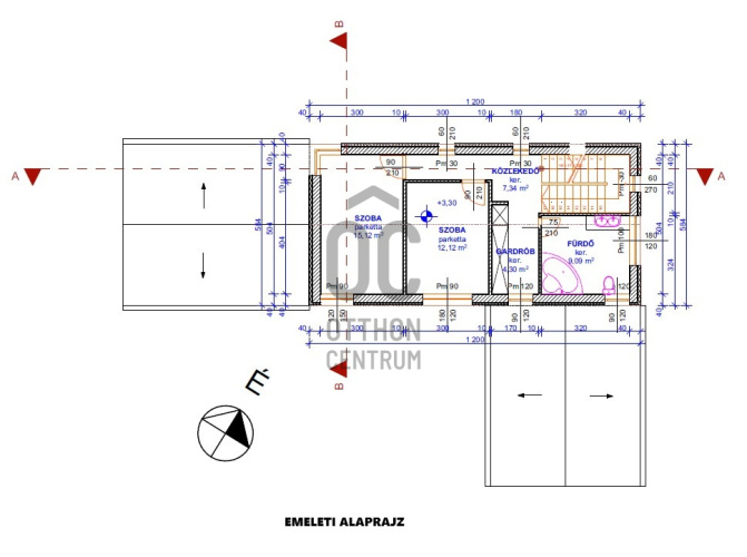
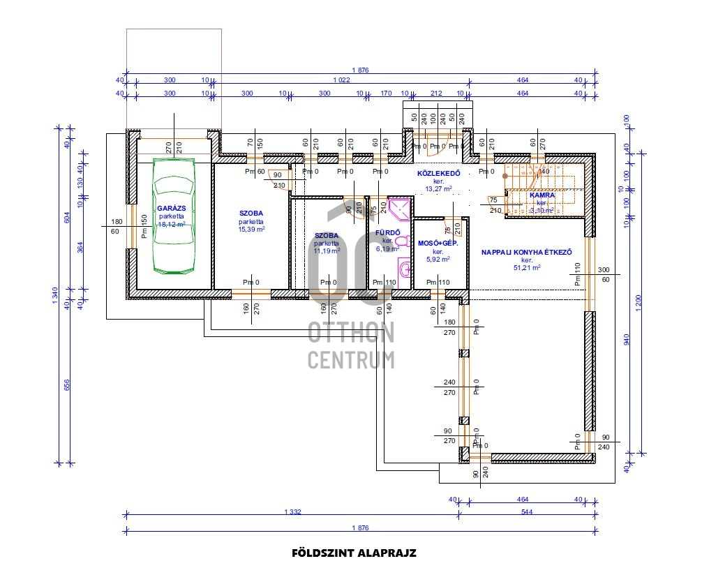
Az ingatlan a legmagasabb minőségi elvárásoknak megfelelően készült, közel 240 négyzetméteres alapterületén a nagyméretű világos nappalin, konyha-étkezőn, két fürdőszobán, mosókonyhán felül, 4 szoba és gardrób, plusz egy dolgozó sarok várja családjával.
A nagyméretű, majdnem teljesen sík telken, ősfák és tudatosan telepített, gondozott örökzöldek, valamint a telek végében csordogáló patak adják a telek hangulatát. A békés, patakparti környezet, a madárcsicsergés, a friss levegő és a zöld panoráma, minden nap feltölti energiával, a tiszta, friss levegő sétára, futásra, túrázásra kerékpározásra csábítja.
A ház tervezésekor, majd kivitelezése során a telek egyedi alaprajzának adottságait és meglévő növényzetének megóvása mellett az új növényzet telepítése is kiemelt szerepet kapott. Az újépítésű, Ytong falazatú, hőszivattyús fűtésrendszerrel ellátott épület, korszerű hőszigeteléssel, nyílászárókkal és energiatakarékos megoldásokkal biztosítja a kellemes klímát és az alacsony fenntartási költségeket egész évben. A zöldre néző nagy üvegfelületek beengedik a fényt, miközben a tágas, kertkapcsolatos nappali, a stílusos étkezővel és a nagyméretű terasszal a kényelmet és az eleganciát ötvözik.
Több, mint 1000 négyzetméteres telkével ideális választás mindazok számára, akik a városi élet nyüzsgésétől távol, mégis könnyen megközelíthető helyen szeretnének élni. Az ingatlanban öt tágas szoba található, amelyek lehetőséget adnak a családi életre, valamint vendégek fogadására. A két fürdőszoba kényelmet biztosít a mindennapok során, így a reggeli rohanásban sem kell kompromisszumot kötnie. A közel 50 négyzetméteres terasz tökéletes helyszín a pihenésre, ahol élvezheti a gyönyörű panorámát, amely a környék varázsát tükrözi. Az újépítésű ingatlan a hőszivattyús fűtés és a klímaberendezés pedig garantálja a kellemes hőmérsékletet télen és nyáron egyaránt. A garázsban egy autó kényelmesen parkolhat, ezen felül a telken további két autó is elfér, így nem kell aggódnia a parkolási lehetőségek miatt.
A környék csendes és biztonságos, ideális választás családok számára. Szentendre számos lehetőséget kínál a szabadidős tevékenységekre, legyen szó kirándulásokról, kerékpározásról vagy a helyi éttermek és kávézók felfedezéséről vagy kulturális élményekről, eseményekről. A közlekedési lehetőségek is kiválóak, hiszen a város könnyen megközelíthető autóval, de a tömegközlekedés is jól kiépített, így Szentendre és Budapest között gyorsan és kényelmesen közlekedhet. A családbarát ingatlan a természet nyugalmát és a városi kényelem közelségét kínálja, egyszerűen megközelíthető, csendes utcában, mégis percekre a városközponttól, óvodától, iskoláktól, üzletektől és tömegközlekedéstől.
Ez az ingatlan nemcsak egy otthon, hanem egy életstílus megtestesítője, amely lehetőséget kínál az aktív, de mégis nyugodt életvitelre.
Az ingatlan a legmagasabb minőségi elvárásoknak megfelelően készült, közel 240 négyzetméteres alapterületén a nagyméretű világos nappalin, konyha-étkezőn, két fürdőszobán, mosókonyhán felül, 4 szoba és gardrób, plusz egy dolgozó sarok várja családjával.
A nagyméretű, majdnem teljesen sík telken, ősfák és tudatosan telepített, gondozott örökzöldek, valamint a telek végében csordogáló patak adják a telek hangulatát. A békés, patakparti környezet, a madárcsicsergés, a friss levegő és a zöld panoráma, minden nap feltölti energiával, a tiszta, friss levegő sétára, futásra, túrázásra kerékpározásra csábítja.
A ház tervezésekor, majd kivitelezése során a telek egyedi alaprajzának adottságait és meglévő növényzetének megóvása mellett az új növényzet telepítése is kiemelt szerepet kapott. Az újépítésű, Ytong falazatú, hőszivattyús fűtésrendszerrel ellátott épület, korszerű hőszigeteléssel, nyílászárókkal és energiatakarékos megoldásokkal biztosítja a kellemes klímát és az alacsony fenntartási költségeket egész évben. A zöldre néző nagy üvegfelületek beengedik a fényt, miközben a tágas, kertkapcsolatos nappali, a stílusos étkezővel és a nagyméretű terasszal a kényelmet és az eleganciát ötvözik.
Több, mint 1000 négyzetméteres telkével ideális választás mindazok számára, akik a városi élet nyüzsgésétől távol, mégis könnyen megközelíthető helyen szeretnének élni. Az ingatlanban öt tágas szoba található, amelyek lehetőséget adnak a családi életre, valamint vendégek fogadására. A két fürdőszoba kényelmet biztosít a mindennapok során, így a reggeli rohanásban sem kell kompromisszumot kötnie. A közel 50 négyzetméteres terasz tökéletes helyszín a pihenésre, ahol élvezheti a gyönyörű panorámát, amely a környék varázsát tükrözi. Az újépítésű ingatlan a hőszivattyús fűtés és a klímaberendezés pedig garantálja a kellemes hőmérsékletet télen és nyáron egyaránt. A garázsban egy autó kényelmesen parkolhat, ezen felül a telken további két autó is elfér, így nem kell aggódnia a parkolási lehetőségek miatt.
A környék csendes és biztonságos, ideális választás családok számára. Szentendre számos lehetőséget kínál a szabadidős tevékenységekre, legyen szó kirándulásokról, kerékpározásról vagy a helyi éttermek és kávézók felfedezéséről vagy kulturális élményekről, eseményekről. A közlekedési lehetőségek is kiválóak, hiszen a város könnyen megközelíthető autóval, de a tömegközlekedés is jól kiépített, így Szentendre és Budapest között gyorsan és kényelmesen közlekedhet. A családbarát ingatlan a természet nyugalmát és a városi kényelem közelségét kínálja, egyszerűen megközelíthető, csendes utcában, mégis percekre a városközponttól, óvodától, iskoláktól, üzletektől és tömegközlekedéstől.
Ez az ingatlan nemcsak egy otthon, hanem egy életstílus megtestesítője, amely lehetőséget kínál az aktív, de mégis nyugodt életvitelre.
Registration Number
H513693
Property Details
Sales
for sale
Legal Status
used
Character
house
Construction Method
brick
Net Size
210 m²
Gross Size
241 m²
Plot Size
1,008 m²
Size of Terrace / Balcony
52 m²
Garden Size
800 m²
Heating
heat pump (air-to-air)
Ceiling Height
270 cm
Number of Levels Within the Property
2
Orientation
South
View
Green view
Condition
Excellent
Condition of Facade
Excellent
Neighborhood
quiet, green
Year of Construction
2026
Number of Bathrooms
2
Condominium Garden
yes
Water
Available
Gas
On the street
Electricity
Available
Sewer
Available
Multi-Generational
yes
Distance to Waterfront
waterfront
Rooms
open-plan kitchen and living room
51 m²
pantry
3 m²
laundry room
6 m²
corridor
13 m²
bathroom-toilet
6 m²
room
12 m²
room
15 m²
garage
18 m²
terrace
51 m²
Durucskó Gabriella
Credit Expert