For sale family house, H513629
Debrecen, Nagyerdő

295,000,000 Ft

825,000 €

  • 276m²
  • 5 Rooms
Exclusive Contract

Debrecenben,a Nagyerdei körútból nyíló csendes kis utcában, 276 nm-es, 5 szobás, dupla garázsos, önálló családi ház eladó

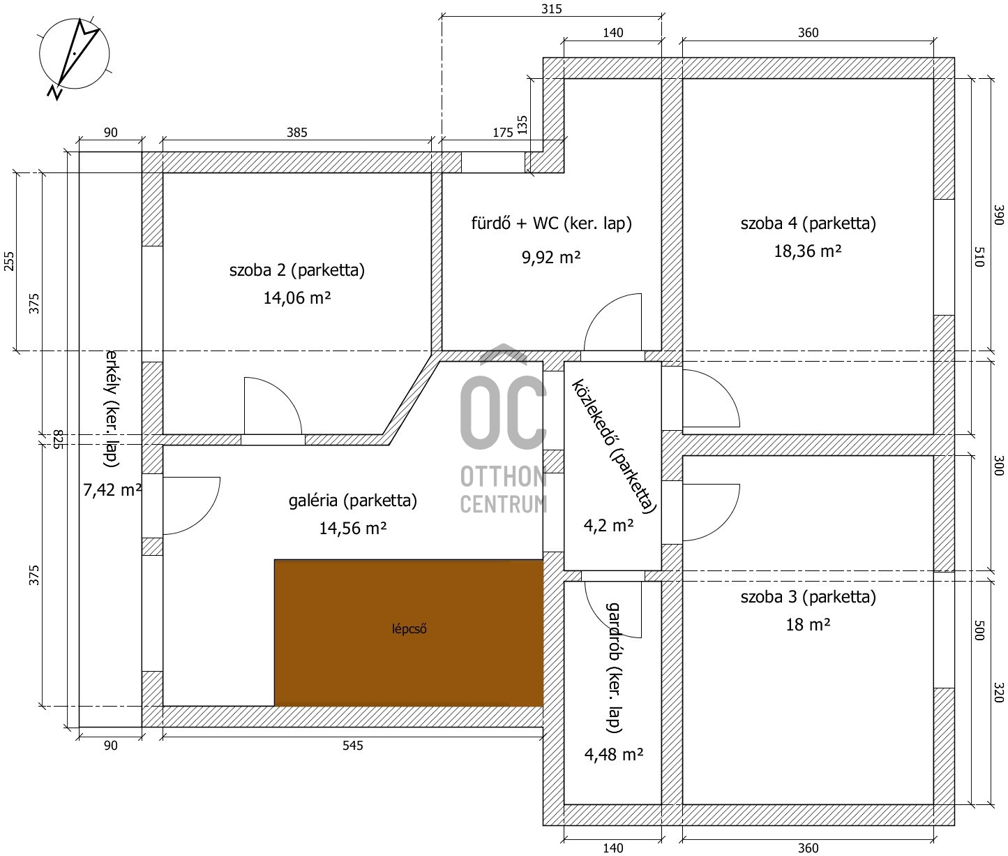
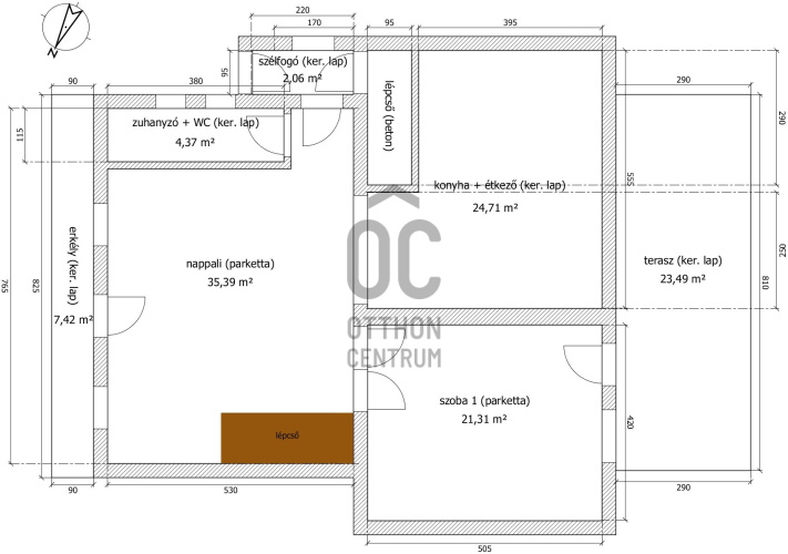
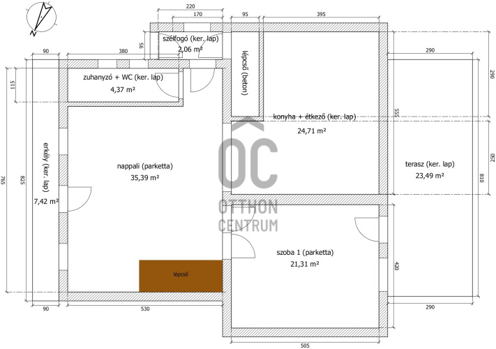
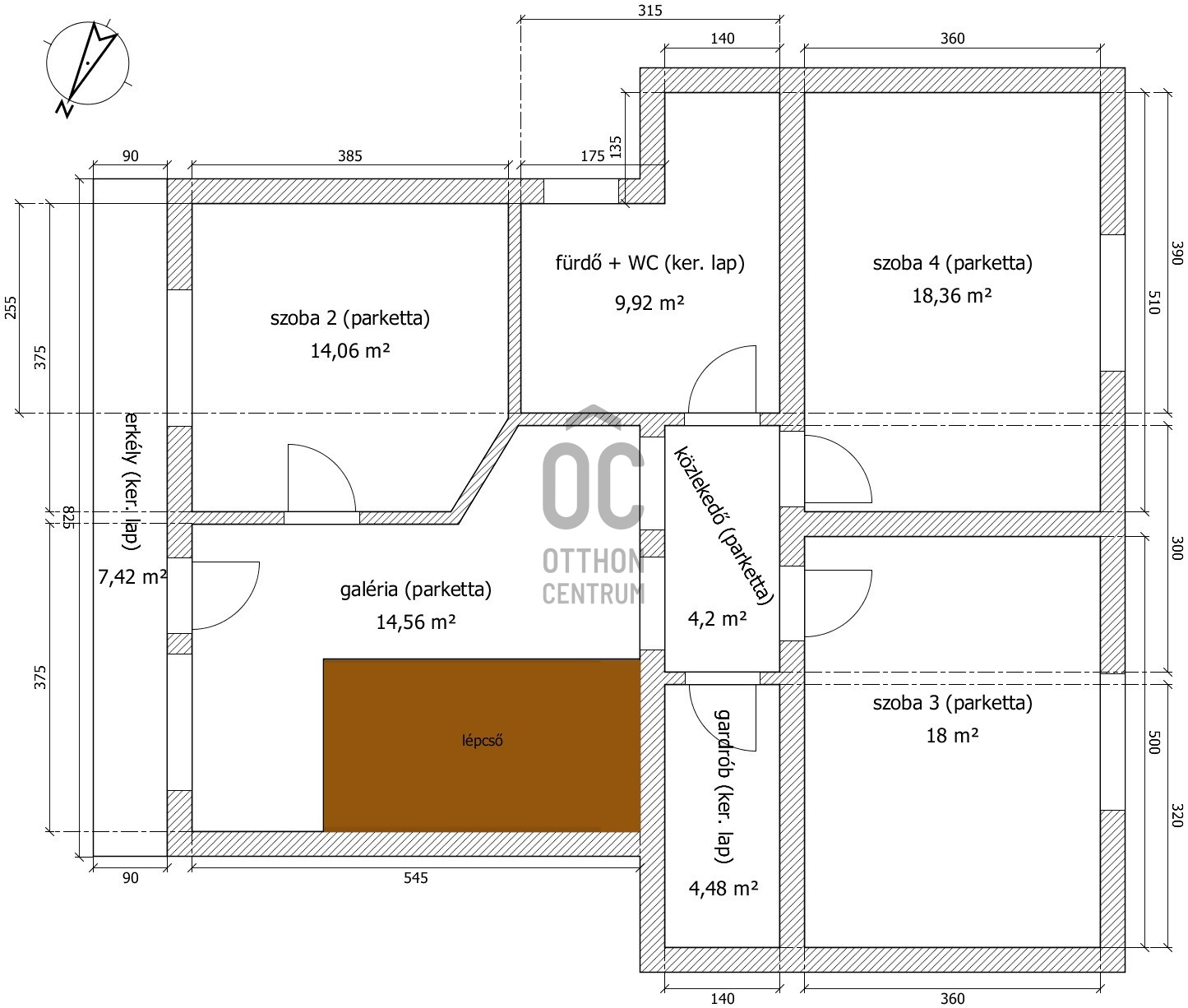
Debrecenben, a klasszikus Nagyerdőn, a Nagyerdei körútból nyíló csendes kis utcában, 276 nm-es (+ 42 nm-es dupla garázs) alapterületű, nappali + nagy konyha-étkezős + 4 nagy hálós + 2 fürdő + wc-s + a szuterén szinten külön fürdő és wc-s, a nyolcvanas években, 470 nm-es telken épült kétszintes (+a szuterén szint) gáz-cirkó fűtéses önálló családi ház eladó.

A ház 2020-ban teljeskörű belső felújításon esett át (villany és gáz vezetékek cseréje, kondenzációs kazán,burkolatok,stb) kivéve a konyhai burkolat és a konyhaszekrény melyek régebbiek.

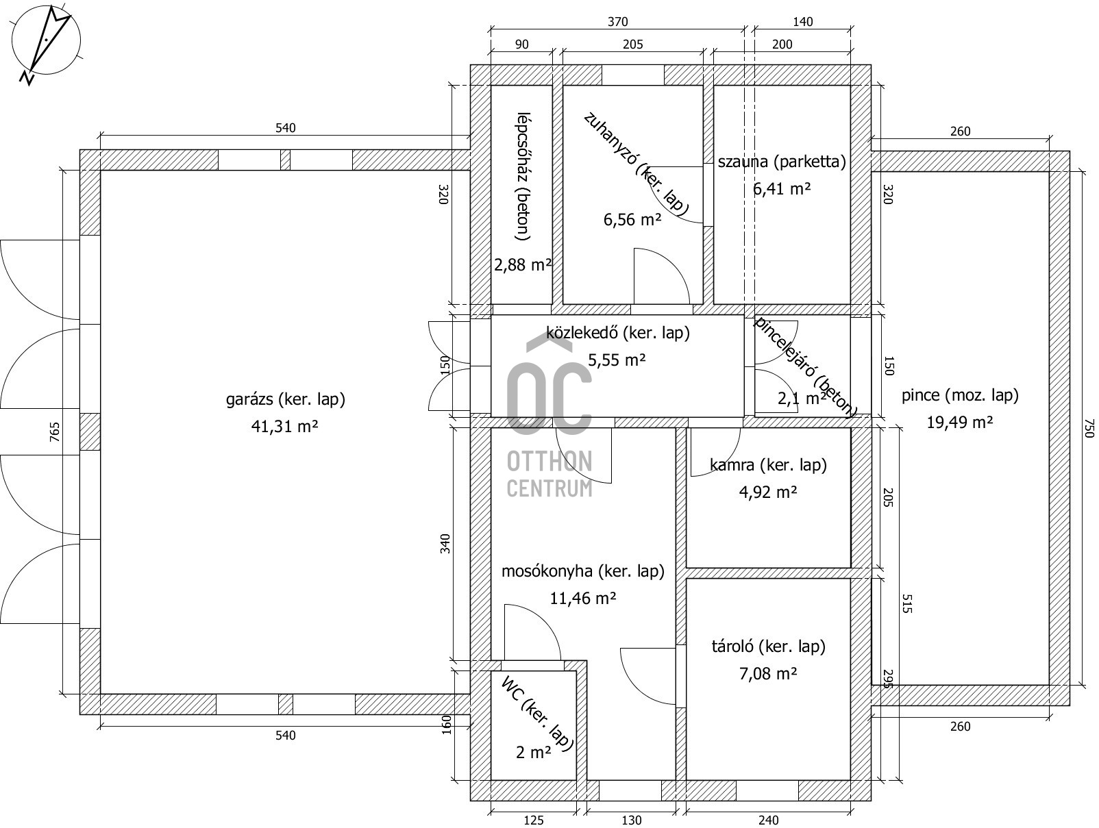
A ház tégla falazatán 10 cm szigetelés van, a tetőn Bramac cserép,műanyag nyílászárók redőnnyel részben rovarhálóval ellátva, van szobánként klíma, van riasztó és elektromos kapu, a szuterén szinten szauna hozzá tartozó zuhanyzóval és téglával kirakott borospince található valamint 42 nm-es 2 állásos garázs, a parkosított kertben szalonnasütő és kiépített öntözőrendszer, kerti csap.

Registration Number

H513629

Property Details

Sales
for sale
Legal Status
used
Character
house
Construction Method
brick
Net Size
276 m²
Gross Size
350 m²
Plot Size
470 m²
Size of Terrace / Balcony
31 m²
Heating
Gas circulator
Ceiling Height
270 cm
Number of Levels Within the Property
1
Orientation
South-East
Condition
Good
Condition of Facade
Good
Basement
Independent
Year of Construction
1986
Number of Bathrooms
2
Garage
Included in the price
Garage Spaces
2
Water
Available
Gas
Available
Electricity
Available
Sewer
Available
Multi-Generational
yes
Storage
Independent

Rooms

living room
35 m²
open-plan kitchen and dining room
25 m²
bedroom
21 m²
bathroom-toilet
4 m²
terrace
24 m²
entryway
3 m²
balcony
7 m²
Plébán László
Plébán László

Credit Expert

From Our Office Listings - Debrecen - Hatvan utca

for sale family house

Index image
data_sheet.details.realestate.section.main.otthonstart_flag.label
17

for sale family house

Index image
data_sheet.details.realestate.section.main.otthonstart_flag.label
11

for rent apartment

Index image
16

for sale row house

Index image
20

for sale family house

Index image
data_sheet.details.realestate.section.main.otthonstart_flag.label
17

for sale apartment

Index image
data_sheet.details.realestate.section.main.otthonstart_flag.label
12