For sale family house, H513490
Budapest XVII. kerület, Pesti úti lakópark

244,990,000 Ft

651,000 €

  • 206m²
  • 6 Rooms
With Price Guarantee

Medencés, szaunás, napelemes újszerű ház eladó a Pesti úti lakóparkban

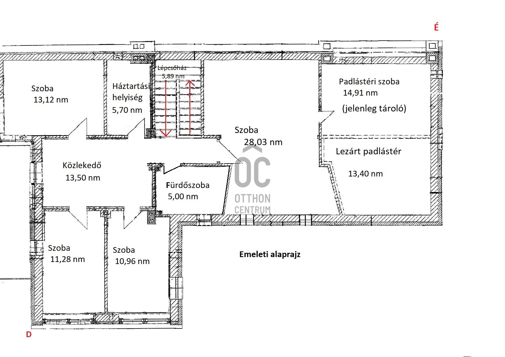
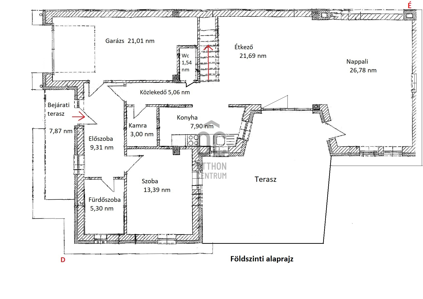
XVII. kerületben a méltán kedvelt Pesti úti lakóparkban kínálunk megvásárlásra egy nappali+ 5 szobás, sok extrával felszerelt kiváló állapotú családi házat 605 nm-es telekkel. A lakóépület 2002-ben épült, azóta a Tulajdonosa esztétikailag és műszakilag is felújította, így a mai igényeknek maximálisan megfelel. A ház belső elosztása kiváló, nagyobb létszámú családnak, két generációnak is kényelmes Otthona lehet. A földszinten a tágas előszobából nyílik a felújított fürdőszoba, egy nagy méretű szoba, ez az egység külön lakrészként is funkcionálhat. A garázsból közvetlenül a lakásba jutunk. A ház központi része a közel 50 nm-es, napfényben úszó ( DK-i tájolás) nagyobb belmagasságú nappali az étkezővel, innen közvetlen kertkapcsolatunk van a nagy méretű teraszon keresztül. A konyhában új, gépesített (Bosch elektromos főzőlap, mosogatógép, sütő, mikró), német minőségi konyhabútor található, mely a vételár részét képezi. A nappaliban lévő fatüzelésű kandalló gondoskodik télen a meghitt hangulatról. Az emeletre kényelmes lépcső vezet, ahol négy tágas hálószoba, egy újszerű fürdőszoba és egy háztartási helyiség kapott helyet. Itt egy padlástéri helyiség még beépíthető, tárolásra kiválóan alkalmas. A mai energiaérzékeny világban fontos, hogy a rezsi ne legyen magas. Az ingatlan 10 KW-os napelemrendszerrel rendelkezik (még 7 évig szaldós), így a villanyszámla nulla. Elektromos autó töltő lett kiépítve, 5 db inverteres hűtő-fűtő klíma lett felszerelve, a fűtést és a használati melegvizet egy fiatal kondenzációs kazán biztosítja. Az ablakokban az üvegezés nemrég lett cserélve, továbbá a belső ajtókat is megújultak, modern, minőségi nyílászárók lettek beépítve. A hátsó, növényekkel körbeültetett intim kertben egy gépesített, épített medence került kialakításra napozóterasszal, a medence mérete 7,5 m x 4 m, hőszivattyú fűti a vizét.A medence mellett kapott helyet a 4 személyes finn szauna, továbbá kerti sütögető, bográcsozó is. A fűtött garázsban egy autó elfér, az előkertben további két autónak van hely, elektromos kapukon történik a bejutás, videós beléptető rendszer lett kialakítva. Az utcai kerítés cserélve lett porfestett alumínium kerítésre. A növényeket a 3 körös automata öntözőrendszer locsolja, a biztonságról riasztó gondoskodik. A környék kifejezetten szép, nívós, kulturált szomszédokkal, csendes kertvárosi környezet. Séta távolságra több bevásárlási lehetőség (Lidl, Spar), benzinkút, nagy játszótér, Home Centerben sok üzlet megtalálható, buszmegálló is rövid időn belül elérhető (97E, 202E).

Registration Number

H513490

Property Details

Sales
for sale
Legal Status
used
Character
house
Construction Method
brick
Net Size
206 m²
Gross Size
265 m²
Plot Size
605 m²
Size of Terrace / Balcony
45 m²
Heating
Gas circulator
Ceiling Height
270 cm
Number of Levels Within the Property
1
Orientation
South-East
Condition
Excellent
Condition of Facade
Excellent
Neighborhood
quiet, good transport, green
Year of Construction
2002
Number of Bathrooms
2
Garage
Included in the price
Garage Spaces
1
Water
Available
Gas
Available
Electricity
Available
Sewer
Available
Storage
Independent

Rooms

living room
26.78 m²
entryway
9.31 m²
garage
21.01 m²
dining room
21.69 m²
kitchen
7.9 m²
pantry
3 m²
bathroom
5.3 m²
bedroom
13.39 m²
terrace
15 m²
terrace
30 m²
corridor
5.06 m²
toilet-washbasin
1.54 m²
bedroom
13.12 m²
utility room
5.7 m²
corridor
13.5 m²
bedroom
11.28 m²
bedroom
10.96 m²
bathroom-toilet
5.88 m²
bedroom
28.03 m²
corridor
2.9 m²
staircase
5.89 m²
Torday Tibor
Torday Tibor

Credit Expert

From Our Office Listings - XVII. kerület - Cinkotai út

for sale apartment

Index image
17

for sale house part

Index image
data_sheet.details.realestate.section.main.otthonstart_flag.label
10

for sale row house

Index image
data_sheet.details.realestate.section.main.otthonstart_flag.label
12

for sale family house

Index image
data_sheet.details.realestate.section.main.otthonstart_flag.label
19

for sale family house

Index image
data_sheet.details.realestate.section.main.otthonstart_flag.label
15

for sale semi-detached house

Index image
27

for sale panel apartment

Index image
data_sheet.details.realestate.section.main.otthonstart_flag.label
16