For sale apartment, H513464
Budapest VII. kerület, Belső Erzsébetváros, Kazinczy utca

119,900,000 Ft

317,000 €

  • 74m²
  • 3 Rooms
  • 1st floor
Exclusive Contract

Berendezett, csendes lakás a Gozsdunál!

Kiemelten népszerű környéken, modern, dekoratív házban, remek adottságú, kedvező rezsijű, bútorozott, gépesített konyhás, nappali plusz két hálószobás lakás eladó, kényelmes teremgarázs hellyel.

Akár befektetésnek, rövid vagy hosszú távú kiadásra, akár saját részre kitűnő választás.

A lakás energetikai besorolása: CB.

A lakás a hozzá tartozó, a mélygarázs legfölső szintjén (-1) található kocsibeállóval együtt eladó, amelynek ára 12.000.000 mFt. Az irányár a parkolóhellyel együtt 141 mFt (129+12).

Registration Number

H513464

Property Details

Sales
for sale
Legal Status
used
Character
apartment
Construction Method
brick
Net Size
74 m²
Gross Size
75 m²
Heating
electric fan-coil
Ceiling Height
276 cm
Number of Levels Within the Property
1
Orientation
West
Staircase Type
enclosed staircase
Condition
Good
Condition of Facade
Good
Condition of Staircase
Good
Neighborhood
quiet, good transport, central
Year of Construction
2008
Number of Bathrooms
1
Position
garden-facing
Common Costs
33000
Garage
Mandatory to buy
Water
Available
Electricity
Available
Sewer
Available
Elevator
available
Distance to Waterfront
more than 500 meters

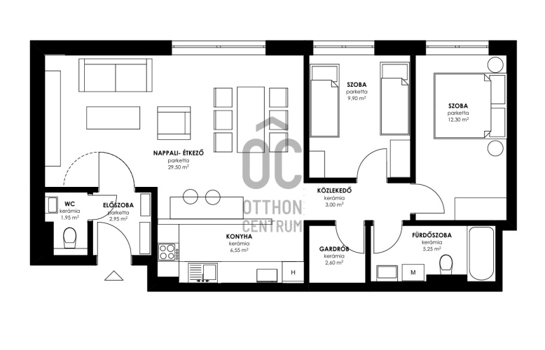
Rooms

open-plan living and dining room
29.5 m²
kitchen
6.55 m²
bedroom
9.9 m²
bedroom
12.3 m²
entryway
2.95 m²
wardrobe
2.6 m²
toilet
1.95 m²
corridor
3 m²
bathroom-toilet
5.25 m²
garage
15.7 m²
Torma Zsuzsanna
Torma Zsuzsanna

Credit Expert

From Our Office Listings - I. kerület - Víziváros - Batthyány utca

for sale apartment

Index image
10

for sale apartment

Index image
32

eladó sorház

Index image
Elérhető Otthon Start hitellel
11

for sale apartment

Index image
14

for rent apartment

Index image
8

for sale family house

Index image
data_sheet.details.realestate.section.main.otthonstart_flag.label
8

for sale family house

Index image
6

for sale plot

Index image
10

for rent apartment

Index image
10

for sale apartment

Index image
12