data_sheet.details.realestate.section.main.otthonstart_flag.label
For sale panel apartment, H513139
Budapest XV. kerület, Újpalota

84,000,000 Ft

222,000 €

  • 61m²
  • 3 Rooms
  • 5th floor
With Price Guarantee

A home where the family story begins – in Rákospalota.

Imagine the mornings when the family prepares calmly, the children have their own room, and everyone knows their place. In one of the most beloved areas of Budapest's 15th district, in Rákospalota, I am offering for sale a 61 m², 3-room apartment on the 5th floor, which is an ideal choice for families. The condominium is insulated, part of a panel program, and has new elevators. The apartment is in good condition, so you won’t have to deal with renovations for months – you can really just move in. The bright, spacious living room can be the natural center for shared moments: family dinners, movie nights, and hosting guests. The well-thought-out built-in wardrobes help keep things organized, ensuring smooth daily life. The 3 m² balcony is perfect for a morning coffee or a quiet afternoon rest while enjoying the calm, safe atmosphere of the neighborhood. The heating and air conditioning provide comfort in every season, while the security door and the unencumbered property offer true peace of mind. The area is a real family-friendly choice: – excellent transport links, quick access to any part of the city – schools, kindergartens, shops, and services within reach – quiet, well-maintained environment The property is wheelchair accessible and can be moved into with pets, so every family member – whether two-legged or four-legged – can feel at home. This is not just an apartment. This is a safe, livable home where the family can truly be together. If you would like to see it in person or have questions about the purchase, feel free to contact me – I would be happy to help you find your new home.

Registration Number

H513139

Property Details

Sales
for sale
Legal Status
used
Character
apartment
Construction Method
panel
Net Size
61 m²
Gross Size
62.6 m²
Size of Terrace / Balcony
2 m²
Heating
district heating
Ceiling Height
260 cm
Orientation
South
View
Green view
Staircase Type
enclosed staircase
Condition
Good
Condition of Facade
Good
Condition of Staircase
Good
Neighborhood
good transport, green, central
Year of Construction
1978
Number of Bathrooms
1
Position
garden-facing
Common Costs
20915
Water
Available
Gas
Available
Electricity
Available
Sewer
Available
Elevator
available

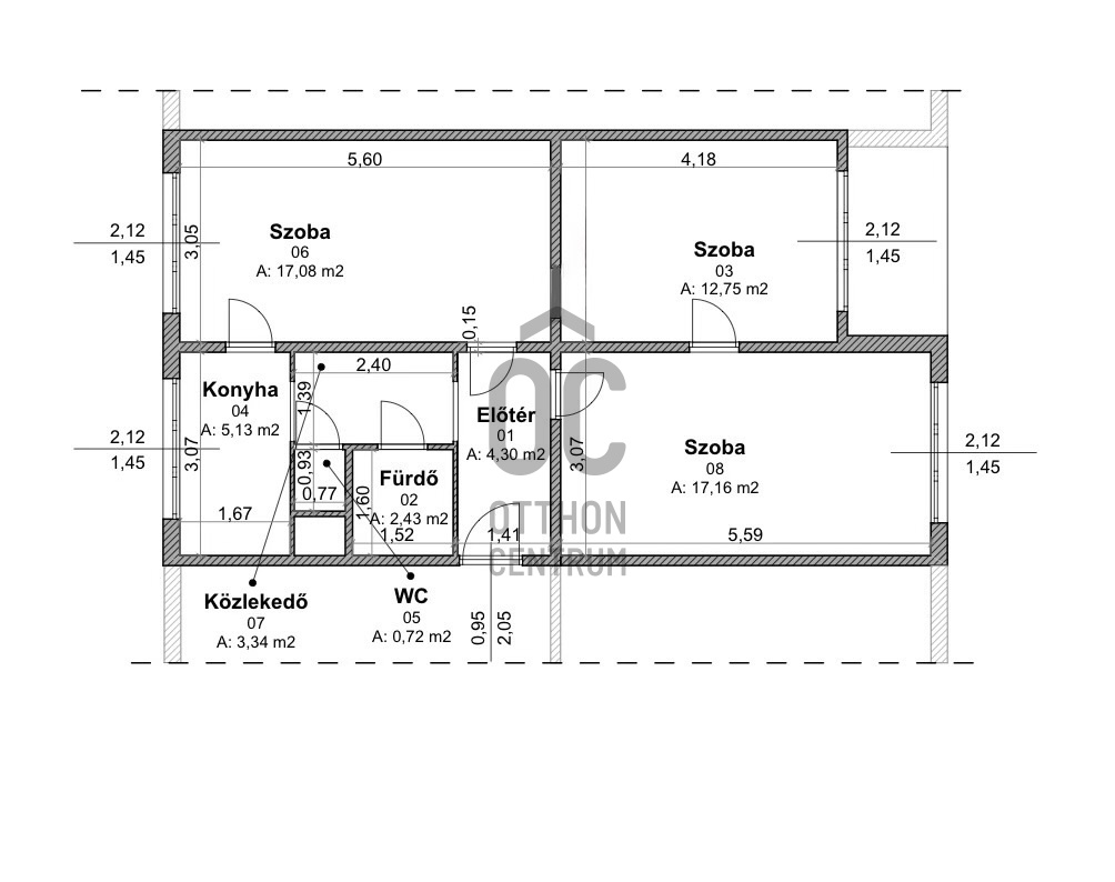
Rooms

entryway
1.8 m²
open-plan kitchen and dining room
6.88 m²
living room
17 m²
room
10.5 m²
corridor
5.5 m²
bathroom
2.3 m²
toilet
0.7 m²
room
11.9 m²
Hazay Melinda
Hazay Melinda

Credit Expert

From Our Office Listings - XIV. kerület - István Park - 2

for sale panel apartment

Index image
data_sheet.details.realestate.section.main.otthonstart_flag.label
15

for sale panel apartment

Index image
data_sheet.details.realestate.section.main.otthonstart_flag.label
16

for sale apartment

Index image
data_sheet.details.realestate.section.main.otthonstart_flag.label
11

for sale apartment

Index image
data_sheet.details.realestate.section.main.otthonstart_flag.label
18

for sale commercial property

Index image
7

for sale apartment

Index image
18

eladó lakás

Index image
Elérhető Otthon Start hitellel
15

for sale apartment

Index image
14

for sale commercial property

Index image
15

for sale apartment

Index image
data_sheet.details.realestate.section.main.otthonstart_flag.label
16