data_sheet.details.realestate.section.main.otthonstart_flag.label
For sale family house, H512072
Üllő

130,000,000 Ft

337,000 €

  • 123m²
  • 5 Rooms

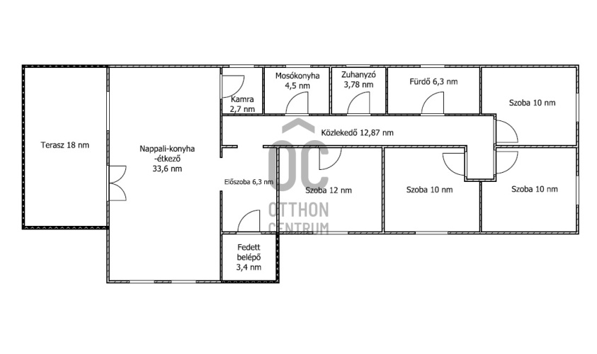
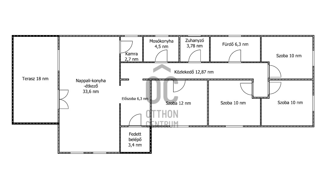
Eladó Üllőn, újszerű állapotban egy kitűnő beosztású, kiváló minőségben épült, földszintes, 112,3 (nettó) nm-es 5 szobás családi ház, mely lakóterületén túl 3,4 nm-es fedett belépővel és 18 nm-es terasszal is rendelkezik. A ház 2022-ben épült, 601 nm-es telekkel rendelkezik, ami egy kizárólagos használati megosztással rendezett telek belső fele. Tágas és teraszkapcsolatos nappali-konyha-étkezőn túl, 4 szobával, háztartási helyiséggel, két fürdővel, tágas előszobával és kamrával is rendelkezik. Fűtését gáz-cirkó biztosítja, a főfalak 15, a faszerkezetű födém 30 cm szigeteléssel rendelkezik, (redőnnyel, és kívűlről mészkő párkánnyal ellátott) műanyag nyílászárói három rétegűek. A világos, praktikus elrendezésű házból, a jó ízléssel válogatott és magas minőségben beépített burkolatok és szaniterek, valamint a koherensen kivitelezett beépített bútorok teremtenek otthont. Ezen felül az ingatlan élhetőségét, kényelmét biztosítja számtalan kiegészítő és műszaki megoldás, mint például az elektromos kapu, a parkosított kertben telepített fúrt kútról üzemeltetett öntözőrendszer, a vakondhálóval ellátott gyepszőnyeg, az udvari tároló kisház, a kialakított gépkocsibeálló, a szobákban elhelyezett 5 db, H-tarifás mérőről üzemeltetett klíma, a riasztórendszer teljes vezetékezésének előre kiépítése, az ízléses konyha gépesítése, a padlástérben kialakított kb. 4 nm-es pakolható terület. Elhelyezkedésének köszönhetően közlekedése kitűnő, vasútállomás sétatávolságra, gyorsforgalmi út pár perc alatt elérhető. A lakókörnyezet barátságos, a közelben óvoda, bölcsöde és játszótér is megtalálható. A birtokba adás tervezett ideje 2026 július közepe.

Amennyiben felkeltettem érdeklődését, várom hívását!

Registration Number

H512072

Property Details

Sales
for sale
Legal Status
used
Character
house
Construction Method
brick
Net Size
123 m²
Gross Size
133 m²
Plot Size
601 m²
Size of Terrace / Balcony
18 m²
Heating
Gas circulator
Ceiling Height
273 cm
Orientation
South-East
Condition
Excellent
Condition of Facade
Excellent
Year of Construction
2022
Number of Bathrooms
2
Water
Available
Gas
Available
Electricity
Available
Sewer
Available
Storage
Independent

Rooms

open-plan kitchen and living room
33.6 m²
room
12 m²
room
10 m²
room
10 m²
room
10 m²
laundry room
4.5 m²
pantry
2.7 m²
entryway
6.3 m²
corridor
12.87 m²
shower
3.78 m²
bathroom
6.3 m²
terrace
18 m²
Hazay Melinda
Hazay Melinda

Credit Expert

From Our Office Listings - XIV. kerület - István Park

for sale panel apartment

Index image
data_sheet.details.realestate.section.main.otthonstart_flag.label
19

for sale panel apartment

Index image
data_sheet.details.realestate.section.main.otthonstart_flag.label
19

for sale family house

Index image
data_sheet.details.realestate.section.main.otthonstart_flag.label
12

for sale apartment

Index image
36

for sale apartment

Index image
23

for sale panel apartment

Index image
data_sheet.details.realestate.section.main.otthonstart_flag.label
16

for sale apartment

Index image
17