data_sheet.details.realestate.section.main.otthonstart_flag.label
For sale family house,
H511432
Poroszló
32,500,000 Ft
91,000 €
- 81.2m²
- 2 Rooms
A renovated two-bedroom family house in Poroszló is for sale at an excellent price!
Poroszló is one of the most well-known and beloved settlements by Lake Tisza, making it an ideal choice for both those seeking active relaxation and those who prefer a peaceful rural lifestyle. The town is famous for the Tisza Lake Eco-Center, which uniquely showcases the rich wildlife of the region throughout Europe.
All necessary services for everyday life are fully accessible: kindergarten, school, medical clinic, pharmacy, post office, shops, dining establishments, as well as year-round tourism and recreational services. The settlement has excellent transportation connections, easily reachable by car and public transport.
The area is a true center for relaxation and sports: a public beach, fishing, boating, water sports (SUP, jet-ski), and one of the country’s best cycling routes runs directly through Poroszló.
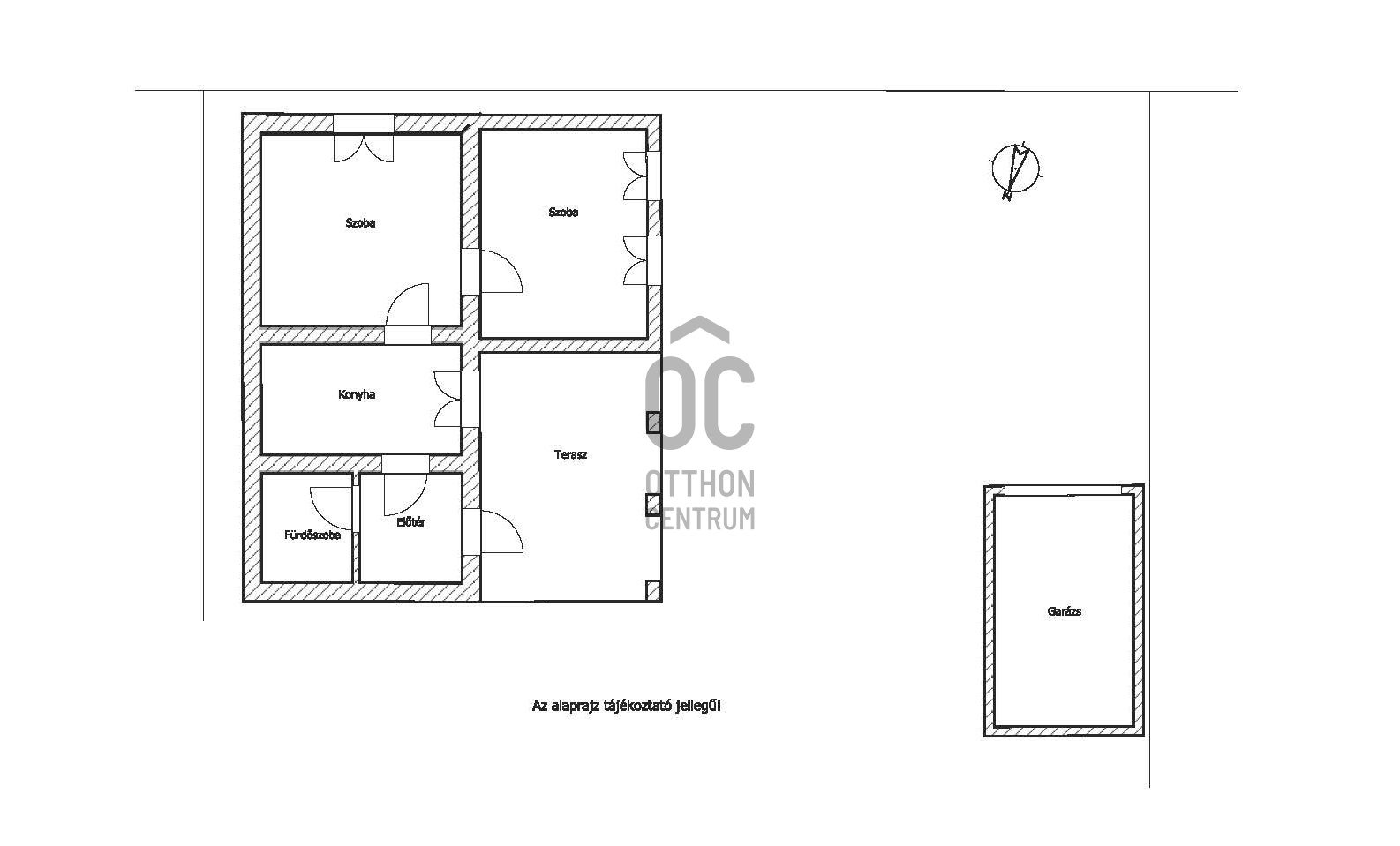
In the quiet, paved street of the settlement, a 81 sqm fully renovated family house with a new roof structure awaits its new owner, built on a 731 sqm easily maintainable plot.
- The electrical network has been rewired, with future air conditioning and heating panel installations in mind.
- New water and sewage pipes have been installed.
- The gas connection is located within the property.
- New flooring and bathroom fixtures will be installed.
- The plot is surrounded by a new fence.
- The water and sewage network has also been prepared for possible expansion.
- The house includes an insulated lightweight garage.
- If the new owner desires, a boat and its accompanying motor will also be given as a gift.
Due to its design, it is excellent for both a guesthouse and a family!
If I have piqued your interest, please call me, let’s arrange a time, and let’s take a look together! I also provide comprehensive loan processing and the necessary legal background for the property transaction for prospective buyers.
All necessary services for everyday life are fully accessible: kindergarten, school, medical clinic, pharmacy, post office, shops, dining establishments, as well as year-round tourism and recreational services. The settlement has excellent transportation connections, easily reachable by car and public transport.
The area is a true center for relaxation and sports: a public beach, fishing, boating, water sports (SUP, jet-ski), and one of the country’s best cycling routes runs directly through Poroszló.
In the quiet, paved street of the settlement, a 81 sqm fully renovated family house with a new roof structure awaits its new owner, built on a 731 sqm easily maintainable plot.
- The electrical network has been rewired, with future air conditioning and heating panel installations in mind.
- New water and sewage pipes have been installed.
- The gas connection is located within the property.
- New flooring and bathroom fixtures will be installed.
- The plot is surrounded by a new fence.
- The water and sewage network has also been prepared for possible expansion.
- The house includes an insulated lightweight garage.
- If the new owner desires, a boat and its accompanying motor will also be given as a gift.
Due to its design, it is excellent for both a guesthouse and a family!
If I have piqued your interest, please call me, let’s arrange a time, and let’s take a look together! I also provide comprehensive loan processing and the necessary legal background for the property transaction for prospective buyers.
Registration Number
H511432
Property Details
Sales
for sale
Legal Status
used
Character
house
Construction Method
adobe
Net Size
81.2 m²
Gross Size
95 m²
Plot Size
731 m²
Size of Terrace / Balcony
22.5 m²
Heating
other
Ceiling Height
215 cm
Orientation
South-East
Condition
Good
Condition of Facade
Good
Neighborhood
quiet, good transport
Year of Construction
1965
Number of Bathrooms
1
Garage
Included in the price
Garage Spaces
1
Water
Available
Electricity
Available
Sewer
Available
Rooms
room
16.2 m²
room
18.27 m²
kitchen
10.7 m²
bathroom-toilet
4.8 m²
entryway
5.28 m²
garage
15 m²
terrace
22.5 m²
Pomaházi Pál
Credit Expert