data_sheet.details.realestate.section.main.otthonstart_flag.label
For sale panel apartment,
H511419
Budapest III. kerület, Békásmegyer
74,900,000 Ft
196,000 €
- 57m²
- 3 Rooms
- 5th floor
BÉKÁSMEGYER HEGY-FELÖLI OLDALÁN 3-SZOBÁS, PANORÁMÁS LAKÁS ELADÓ
Békásmegyer Hegy-felöldi oldalán, a lakótelep szélén eladóvá vált egy jó adottságokkal rendelkező 3-szobás lakás.
A LAKÁS az 5. emeleten van, - és mivel a lakótelep szélső épülete, É-felé szép kilátása van a budakalászi dombok felé. A D-i oldalon is parkra néz az ablak.
É-D-i tájolásának köszönhetően kellemesen világos, D-i oldalról árad be a napfény. (Nem mellesleg jól átszellőztethető)
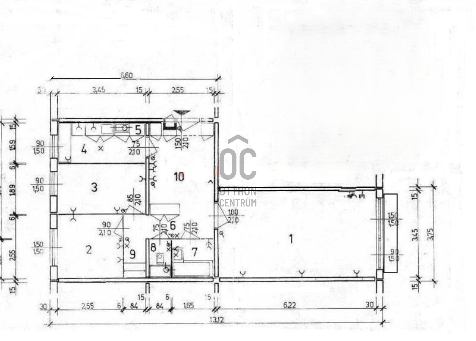
ELRENDEZÉSE nagyon praktikus: ha belépünk egy tágas étkezőbe érkezünk, ahonnan valamennyi további helyiség nyílik.
Kifejezetten nagy méretű nappalija kényelmesen berendezhető. A másik oldalon elhelyezett 2 hálószoba a fürdővel és a külön wc-vel jól elkülönül a nappali tartózkodási tértől, így a korábban pihenni vágyókat nem zavarja az esetleges hangos beszélgetés, TV-nézés...
Konyhája világos, praktikus elrendezésű, sok pakolóhellyel.
A lakásban sok praktikus beépített szekrény van, ami szintén része a vételárnak.
MŰSZAKI ÁLLAPOTÁT tekintve az elmúlt 25 évben több felújítás is történt.
Az elektromos vezetékek cserélve lettek, a konyha és fürdőszoba mintegy 8 éve lett újragondolva, burkolatok is akkor lettek cserélve.
A műanyag nyílászárók redőnnyel és szúnyoghálóval vannak ellátva.
FŰTÉSről távhő gondolskodik egyedi méréssel. De mivel nagyon meleg a lakás, jellemzően csupán a hideg téli hetekben kell bekapcsolni a radiátorokat. Ennek köszönhetően igen kellemes rezsi költségekkel lehet számolni.
A hűtésről klímakészülék gondoskodik.
LOKÁCIÓJA tökéletes. A lakótelepen 3-5 perc sétatávolságon belül van orvos, patika, bölcsi, ovi, suli, bevásárlási lehetőség.
A 160-as busz szinte a ház előtt áll meg, a HÉV-megálló pedig 10 percen belüli sétatávolságban van.
A lakás a START PLUSZ hitel felvételére is alkalmas, ideális választás fiatal párnak kisgyerekkel.
A LAKÁS az 5. emeleten van, - és mivel a lakótelep szélső épülete, É-felé szép kilátása van a budakalászi dombok felé. A D-i oldalon is parkra néz az ablak.
É-D-i tájolásának köszönhetően kellemesen világos, D-i oldalról árad be a napfény. (Nem mellesleg jól átszellőztethető)
ELRENDEZÉSE nagyon praktikus: ha belépünk egy tágas étkezőbe érkezünk, ahonnan valamennyi további helyiség nyílik.
Kifejezetten nagy méretű nappalija kényelmesen berendezhető. A másik oldalon elhelyezett 2 hálószoba a fürdővel és a külön wc-vel jól elkülönül a nappali tartózkodási tértől, így a korábban pihenni vágyókat nem zavarja az esetleges hangos beszélgetés, TV-nézés...
Konyhája világos, praktikus elrendezésű, sok pakolóhellyel.
A lakásban sok praktikus beépített szekrény van, ami szintén része a vételárnak.
MŰSZAKI ÁLLAPOTÁT tekintve az elmúlt 25 évben több felújítás is történt.
Az elektromos vezetékek cserélve lettek, a konyha és fürdőszoba mintegy 8 éve lett újragondolva, burkolatok is akkor lettek cserélve.
A műanyag nyílászárók redőnnyel és szúnyoghálóval vannak ellátva.
FŰTÉSről távhő gondolskodik egyedi méréssel. De mivel nagyon meleg a lakás, jellemzően csupán a hideg téli hetekben kell bekapcsolni a radiátorokat. Ennek köszönhetően igen kellemes rezsi költségekkel lehet számolni.
A hűtésről klímakészülék gondoskodik.
LOKÁCIÓJA tökéletes. A lakótelepen 3-5 perc sétatávolságon belül van orvos, patika, bölcsi, ovi, suli, bevásárlási lehetőség.
A 160-as busz szinte a ház előtt áll meg, a HÉV-megálló pedig 10 percen belüli sétatávolságban van.
A lakás a START PLUSZ hitel felvételére is alkalmas, ideális választás fiatal párnak kisgyerekkel.
Registration Number
H511419
Property Details
Sales
for sale
Legal Status
used
Character
apartment
Construction Method
panel
Net Size
57 m²
Gross Size
57 m²
Heating
individual district heating
Ceiling Height
260 cm
Number of Levels Within the Property
1
Orientation
North
View
Green view
Staircase Type
enclosed staircase
Condition
Good
Condition of Facade
Good
Condition of Staircase
Good
Neighborhood
quiet, good transport, green
Year of Construction
1978
Number of Bathrooms
1
Position
street-facing
Common Costs
16000
Water
Available
Gas
Available
Electricity
Available
Sewer
Available
Elevator
available
Rooms
living room
21.5 m²
bedroom
6.5 m²
bedroom
6.5 m²
kitchen
5.5 m²
dining room
11 m²
bathroom
2.7 m²
toilet
1.4 m²
corridor
2 m²
Andrejcsik Nikoletta
Credit Expert