data_sheet.details.realestate.section.main.otthonstart_flag.label
For sale family house,
H510739
Tiszacsege
26,000,000 Ft
73,000 €
- 133.8m²
- 5 Rooms
Tiszacsege - where tranquility finds a home
Tiszacsege is a quiet, friendly settlement nestled between the Hortobágy and the Tisza River, offering both tranquility and excellent recreational opportunities. The atmosphere of the town is defined by the proximity of the Tisza, the natural values, and the charm of the characteristic Great Plain landscape. The area is a popular destination for anglers, nature lovers, and those seeking relaxation by the water. The local thermal beach, with its healing waters, attracts visitors year-round, and the settlement provides all essential services: shops, pharmacies, medical care, kindergartens, schools, and restaurants are available for residents. The famous Tiszacsege fish soup offers a unique gastronomic experience.
The area serves as an excellent starting point for excursions, cycling, and boat tours, while the proximity of the Hortobágy ensures unparalleled natural sights. Thus, Tiszacsege is an ideal choice for those looking to find a home in a peaceful, livable settlement by the Tisza River.
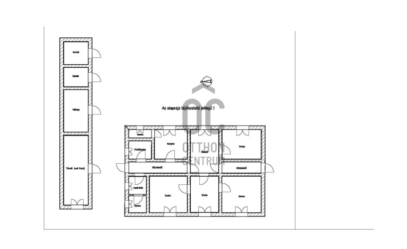
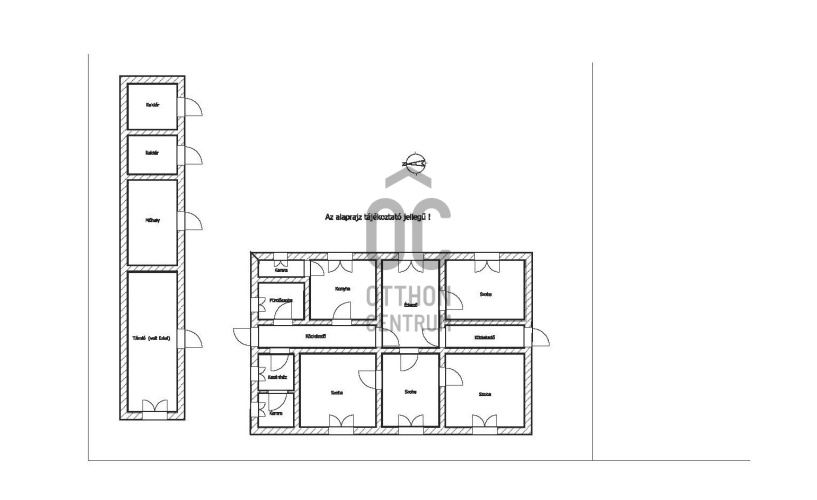
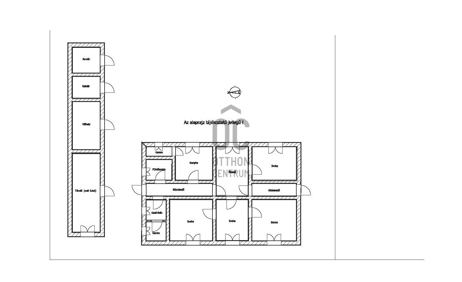
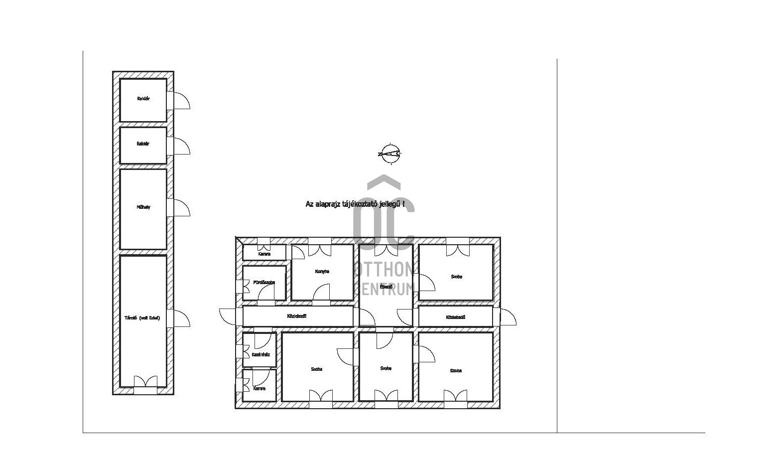
In this settlement, we offer for sale a well-located, continuously maintained family house with five rooms, equipped with all utilities and central heating, situated on a spacious corner plot. The rooms are covered with laminate and ship flooring, while the other areas have mosaic stone covering. The plot also includes a separate small building, currently functioning as a workshop and storage space, but it can be developed into an independent living area. The arched cellar is excellent for storing vegetables and fruits, while the spacious, tidy courtyard provides a pleasant opportunity to spend leisure time in the fresh village air.
The property is an ideal choice for anyone who would enjoy living in a charming, riverside, true Great Plain settlement. If we have piqued your interest or if you have any questions regarding the property, we are at your service!
The area serves as an excellent starting point for excursions, cycling, and boat tours, while the proximity of the Hortobágy ensures unparalleled natural sights. Thus, Tiszacsege is an ideal choice for those looking to find a home in a peaceful, livable settlement by the Tisza River.
In this settlement, we offer for sale a well-located, continuously maintained family house with five rooms, equipped with all utilities and central heating, situated on a spacious corner plot. The rooms are covered with laminate and ship flooring, while the other areas have mosaic stone covering. The plot also includes a separate small building, currently functioning as a workshop and storage space, but it can be developed into an independent living area. The arched cellar is excellent for storing vegetables and fruits, while the spacious, tidy courtyard provides a pleasant opportunity to spend leisure time in the fresh village air.
The property is an ideal choice for anyone who would enjoy living in a charming, riverside, true Great Plain settlement. If we have piqued your interest or if you have any questions regarding the property, we are at your service!
Registration Number
H510739
Property Details
Sales
for sale
Legal Status
used
Character
house
Construction Method
mixed masonry
Net Size
133.8 m²
Gross Size
148 m²
Plot Size
1,121 m²
Heating
mixed-fuel boiler
Ceiling Height
276 cm
Orientation
South-West
Condition
Average
Condition of Facade
Average
Basement
Independent
Neighborhood
quiet, good transport, central
Year of Construction
1950
Number of Bathrooms
1
Water
Available
Gas
Available
Electricity
Available
Sewer
Available
Storage
Independent
Rooms
corridor
7.48 m²
bathroom-toilet
4.75 m²
kitchen
11.33 m²
kitchen
11.33 m²
open-plan living and dining room
13 m²
room
15.19 m²
room
15.7 m²
room
11.9 m²
room
15.8 m²
corridor
5.8 m²
pantry
2.37 m²
boiler room
3.6 m²
pantry
3.4 m²
storage
7.36 m²
storage
4.5 m²
warehouse
5.5 m²
warehouse
6.09 m²
Pomaházi Pál
Credit Expert