data_sheet.details.realestate.section.main.otthonstart_flag.label
For sale family house,
H510359
Tápióság
21,900,000 Ft
58,000 €
- 21m²
- 1 Rooms
Megvételre kínálunk Tápióságon egy belterületi ingatlant, csendes, nyugodt környéken.
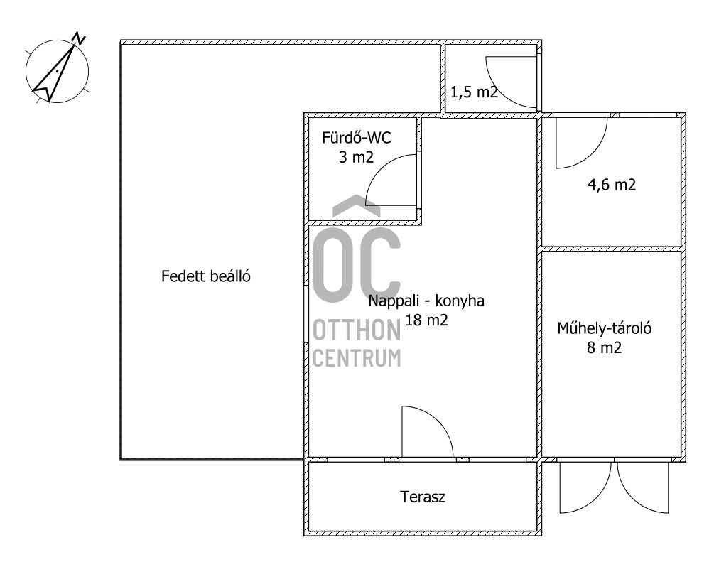
Az ingatlan elosztása: nappali-konyha 18 m2, fürdő-wc 3 m2 és ezen kívül van még 3 kintről megközelíthető helység (1,5, 4,6 és 8 m2)
A ház alatt 21 m2 pince található.
Betonfödémes a ház, így a tetőtérben egy újabb szoba kialakítható.
A szilikát téglából épült ingatlan szerkezetileg jó állapotban van, de esztétikai felújítást igényel.
A telek összközműves!
Ha további kérdése van az ingatlanról, keressen bizalommal.
Az ingatlan elosztása: nappali-konyha 18 m2, fürdő-wc 3 m2 és ezen kívül van még 3 kintről megközelíthető helység (1,5, 4,6 és 8 m2)
A ház alatt 21 m2 pince található.
Betonfödémes a ház, így a tetőtérben egy újabb szoba kialakítható.
A szilikát téglából épült ingatlan szerkezetileg jó állapotban van, de esztétikai felújítást igényel.
A telek összközműves!
Ha további kérdése van az ingatlanról, keressen bizalommal.
Registration Number
H510359
Property Details
Sales
for sale
Legal Status
used
Character
house
Construction Method
silicate
Net Size
21 m²
Gross Size
21 m²
Plot Size
900 m²
Size of Terrace / Balcony
4.5 m²
Ceiling Height
250 cm
Number of Levels Within the Property
1
Orientation
South-East
Condition
To be renovated
Condition of Facade
Average
Basement
Independent
Neighborhood
quiet, green
Year of Construction
2000
Number of Bathrooms
1
Water
Available
Gas
Available
Electricity
Available
Sewer
Available
Rooms
open-plan kitchen and living room
18 m²
bathroom-toilet
3 m²
Joó Krisztina
Credit Expert