Elérhető Otthon Start hitellel
Eladó családi ház, H510359
Tápióság

21 900 000 Ft

58 000 €

  • 21m²
  • 1 szoba

Megvételre kínálunk Tápióságon egy belterületi ingatlant, csendes, nyugodt környéken.

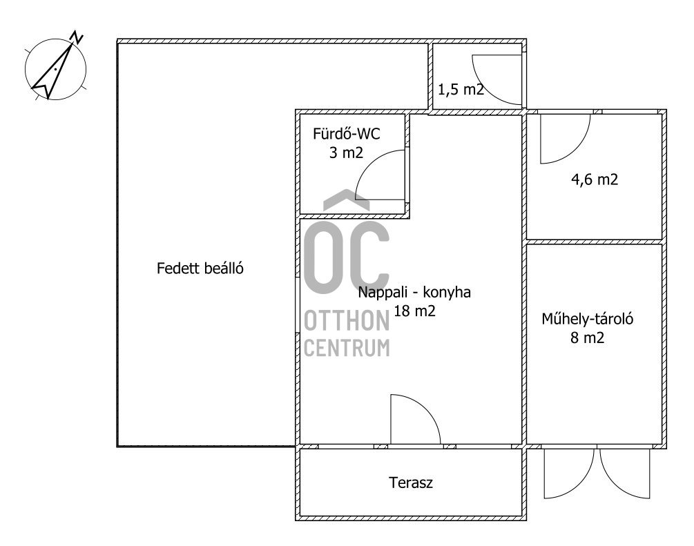
Az ingatlan elosztása: nappali-konyha 18 m2, fürdő-wc 3 m2 és ezen kívül van még 3 kintről megközelíthető helység (1,5, 4,6 és 8 m2)
A ház alatt 21 m2 pince található.

Betonfödémes a ház, így a tetőtérben egy újabb szoba kialakítható.

A szilikát téglából épült ingatlan szerkezetileg jó állapotban van, de esztétikai felújítást igényel.

A telek összközműves!

Ha további kérdése van az ingatlanról, keressen bizalommal.

Regisztrációs szám

H510359

Az ingatlan adatai

Értékesités
eladó
Jogi státusz
használt
Jelleg
ház
Építési mód
szilikát
Méret
21 m²
Bruttó méret
21 m²
Telek méret
900 m²
Terasz / erkély mérete
4,5 m²
Belmagasság
250 cm
Lakáson belüli szintszám
1
Tájolás
Dél-kelet
Állapot
Felújítandó
Homlokzat állapota
Átlagos
Pince
Önálló
Környék
csendes, zöld
Építés éve
2000
Fürdőszobák száma
1
Víz
Van
Gáz
Van
Villany
Van
Csatorna
Van

Helyiségek

nappali-konyha
18 m²
fürdőszoba-wc
3 m²
Joó Krisztina
Joó Krisztina

Hitelszakértő

Irodánk kínálatából - XVIII. kerület - Királyhágó utca

eladó családi ház

Index image
33

eladó családi ház

Index image
41

eladó lakás

Index image
Elérhető Otthon Start hitellel
19

eladó lakás

Index image
Elérhető Otthon Start hitellel
16

eladó lakás

Index image
Elérhető Otthon Start hitellel
23

for sale family house

Index image
data_sheet.details.realestate.section.main.otthonstart_flag.label
30