175,000,000 Ft
462,000 €
- 77m²
- 3 Rooms
- 2nd floor
Presztízs, potenciál, polgári elegancia — félkész lakás a Báthory utcában
Egy rejtett gyöngyszem, ahol a múlt és a potenciál találkozik — egy lakás, ami újra életre kelhet. Üdv itthon!
RÖVID ÖSSZEFOGLALÓ
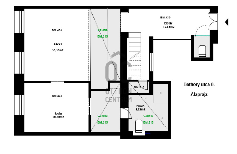
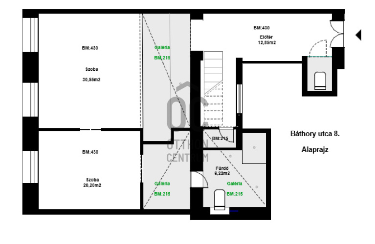
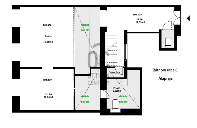
Budapest V. kerületében, Lipótvárosban, a Báthory utca 8. szám alatt, egy klasszikus polgári, liftes társasházban kínáljuk eladásra ezt a 77 m²-es, 2 szobás + galériás, felújítandó lakást, a 2. emeleten.
Az ingatlan nagy belmagasságú, 430 cm, amely kiváló kiindulópont egy galériás, loft-jellegű lakás kialakításához. Jelen állapotában félkész, rá kell még költeni, hogy lakható legyen –, de az ár és az adottságok alapján valódi beruházási potenciál rejlik benne.
ELHELYEZKEDÉS
A lakás a V. kerület szívében, Lipótvárosban található — központi, mégis jellemzően nyugodt, polgári hangulatú városrész. A Báthory utca a belváros része, gyalogosan, tömegközlekedéssel és autóval is kiválóan megközelíthető. Minden fontos szolgáltatás megtalálható a környéken, üzletek, bevásárlási lehetőségek, kulturális események és kiváló közlekedési kapcsolat.
A környék különlegessége, hogy a pezsgő belvárosi élet közvetlen közeléből mégis egy rendezett, elegáns utcába érkezel haza, ahol a klasszikus polgári hangulat és a Lipótvárosra jellemző biztonság, rendezettség és presztízs találkozik.
AZ ÉPÜLET – POLGÁRI HANGULAT, HISTORIZMUS
A Báthory utca 8. szám alatt található, klasszikus, historizáló stílusú polgári bérházat 1895 körül építették. Homlokzatán és stílusán a historizmus jegyei mutatkoznak: az eredeti kváderezett illetve nútozott vakolt felületek, a díszes kapualj, a lendületes építészeti részletek mind hozzájárulnak a ház karakteréhez.
Bár az épület egykor háromemeletes bérház volt, később emeletráépítéssel bővítették — amelynek nyomai a homlokzaton is észrevehetőek. Állapota jónak mondható, a homlokzat, a lépcsőház és a közös terek patinásak.
A LAKÁS BELSŐ LEHETŐSÉGÉNEK LÁTÁSA – NAGY POTENCIÁL EGY LOFT-GALÉRIÁS OTTHONRA
A lakás jelenlegi állapota felújítandó — de éppen ez adja a lehetőséget arra, hogy teljesen a saját ízlésedre formáld. A belmagasság lehetővé teszi, hogy a galériás koncepciót megvalósításra kerüljön: a tulajdonos látványtervein szereplő galéria + dolgozó megoldás elegáns, modern, loft-szerű hangulatot eredményez. Az utcai nézet és a polgári ház karaktere további értéket ad az ingatlannak.
Az alaprajz logikusan felosztható: az alsó szinten a nappali/konyha-étkező, a hálószobák és a fürdőszobák, a galérián pedig dolgozószoba vagy extra pihenő tér. Igy ideális lehet pároknak, akár home office kialakítására, vagy hosszú távú lakásnak, de akár befektetésnek is.
MIÉRT ÉRDEMES MOST BELELÁTNI?
- Ritka lehetőség: 77 m² + galéria, 430 cm belmagasság, lift – ilyen kombináció ma kevés belvárosi lakásnál adott.
- Historizáló épület karaktere: klasszikus, polgári hangulat, patinás homlokzat, igazi budapesti „bérházas” érzés.
- Kreatív tér: a galéria lehetősége modern, loftos otthon kialakítására, akár dolgozósarokkal, home office-szal.
- Központi elhelyezkedés: Lipótváros szívében – minden fontos infrastruktúra, tömegközlekedés, kulturális és szolgáltatói háttér gyalog vagy rövid úttal elérhető.
- Befektetési potenciál: felújítás után akár tartós lakásnak, akár bérbeadásra alkalmas – a belvárosi elhelyezkedés és a különleges adottság keresett lehet.
Felkeltettük érdeklődését? Kérdései vannak? Várom hívását!
-----------------------------------------------
Díjmentes, bankfüggetlen hiteltanácsadással támogatjuk vevő ügyfeleinket a számukra legelőnyösebb finanszírozási döntések meghozatalában. Opcionálisan igénybe vehető kiegészítő szolgáltatásainkkal – mint ügyvédi közreműködés, energetikai tanúsítvány vagy villamos biztonsági felülvizsgálat – teljes körű szakmai támogatást nyújtunk az adásvétel folyamatának minden egyes lépésénél.
-----------------------------------------------
A hirdetésben szereplő információk tájékoztató jellegűek. A tévedés és az árváltoztatás jogát fenntartjuk. Az esetleges elírásokért és technikai hibákért felelősséget nem vállalunk.
RÖVID ÖSSZEFOGLALÓ
Budapest V. kerületében, Lipótvárosban, a Báthory utca 8. szám alatt, egy klasszikus polgári, liftes társasházban kínáljuk eladásra ezt a 77 m²-es, 2 szobás + galériás, felújítandó lakást, a 2. emeleten.
Az ingatlan nagy belmagasságú, 430 cm, amely kiváló kiindulópont egy galériás, loft-jellegű lakás kialakításához. Jelen állapotában félkész, rá kell még költeni, hogy lakható legyen –, de az ár és az adottságok alapján valódi beruházási potenciál rejlik benne.
ELHELYEZKEDÉS
A lakás a V. kerület szívében, Lipótvárosban található — központi, mégis jellemzően nyugodt, polgári hangulatú városrész. A Báthory utca a belváros része, gyalogosan, tömegközlekedéssel és autóval is kiválóan megközelíthető. Minden fontos szolgáltatás megtalálható a környéken, üzletek, bevásárlási lehetőségek, kulturális események és kiváló közlekedési kapcsolat.
A környék különlegessége, hogy a pezsgő belvárosi élet közvetlen közeléből mégis egy rendezett, elegáns utcába érkezel haza, ahol a klasszikus polgári hangulat és a Lipótvárosra jellemző biztonság, rendezettség és presztízs találkozik.
AZ ÉPÜLET – POLGÁRI HANGULAT, HISTORIZMUS
A Báthory utca 8. szám alatt található, klasszikus, historizáló stílusú polgári bérházat 1895 körül építették. Homlokzatán és stílusán a historizmus jegyei mutatkoznak: az eredeti kváderezett illetve nútozott vakolt felületek, a díszes kapualj, a lendületes építészeti részletek mind hozzájárulnak a ház karakteréhez.
Bár az épület egykor háromemeletes bérház volt, később emeletráépítéssel bővítették — amelynek nyomai a homlokzaton is észrevehetőek. Állapota jónak mondható, a homlokzat, a lépcsőház és a közös terek patinásak.
A LAKÁS BELSŐ LEHETŐSÉGÉNEK LÁTÁSA – NAGY POTENCIÁL EGY LOFT-GALÉRIÁS OTTHONRA
A lakás jelenlegi állapota felújítandó — de éppen ez adja a lehetőséget arra, hogy teljesen a saját ízlésedre formáld. A belmagasság lehetővé teszi, hogy a galériás koncepciót megvalósításra kerüljön: a tulajdonos látványtervein szereplő galéria + dolgozó megoldás elegáns, modern, loft-szerű hangulatot eredményez. Az utcai nézet és a polgári ház karaktere további értéket ad az ingatlannak.
Az alaprajz logikusan felosztható: az alsó szinten a nappali/konyha-étkező, a hálószobák és a fürdőszobák, a galérián pedig dolgozószoba vagy extra pihenő tér. Igy ideális lehet pároknak, akár home office kialakítására, vagy hosszú távú lakásnak, de akár befektetésnek is.
MIÉRT ÉRDEMES MOST BELELÁTNI?
- Ritka lehetőség: 77 m² + galéria, 430 cm belmagasság, lift – ilyen kombináció ma kevés belvárosi lakásnál adott.
- Historizáló épület karaktere: klasszikus, polgári hangulat, patinás homlokzat, igazi budapesti „bérházas” érzés.
- Kreatív tér: a galéria lehetősége modern, loftos otthon kialakítására, akár dolgozósarokkal, home office-szal.
- Központi elhelyezkedés: Lipótváros szívében – minden fontos infrastruktúra, tömegközlekedés, kulturális és szolgáltatói háttér gyalog vagy rövid úttal elérhető.
- Befektetési potenciál: felújítás után akár tartós lakásnak, akár bérbeadásra alkalmas – a belvárosi elhelyezkedés és a különleges adottság keresett lehet.
Felkeltettük érdeklődését? Kérdései vannak? Várom hívását!
-----------------------------------------------
Díjmentes, bankfüggetlen hiteltanácsadással támogatjuk vevő ügyfeleinket a számukra legelőnyösebb finanszírozási döntések meghozatalában. Opcionálisan igénybe vehető kiegészítő szolgáltatásainkkal – mint ügyvédi közreműködés, energetikai tanúsítvány vagy villamos biztonsági felülvizsgálat – teljes körű szakmai támogatást nyújtunk az adásvétel folyamatának minden egyes lépésénél.
-----------------------------------------------
A hirdetésben szereplő információk tájékoztató jellegűek. A tévedés és az árváltoztatás jogát fenntartjuk. Az esetleges elírásokért és technikai hibákért felelősséget nem vállalunk.
Registration Number
H510347
Property Details
Sales
for sale
Legal Status
used
Character
apartment
Construction Method
brick
Net Size
77 m²
Gross Size
77 m²
Heating
electric circulator
Ceiling Height
430 cm
Number of Levels Within the Property
1
Orientation
West
Staircase Type
circular corridor
Condition
To be renovated
Condition of Facade
Good
Condition of Staircase
Good
Neighborhood
good transport, central
Year of Construction
1920
Number of Bathrooms
1
Position
street-facing
Common Costs
16500
Water
Available
Gas
Available
Electricity
Available
Sewer
Available
Elevator
available
Rooms
entryway
12.85 m²
bathroom-toilet
6.22 m²
open-plan kitchen and dining room
8.17 m²
bedroom
20.2 m²
open-plan kitchen and living room
30.55 m²
gallery
18.46 m²
Tóth Róbert
Credit Expert