data_sheet.details.realestate.section.main.otthonstart_flag.label
For sale apartment,
H510277
Budapest VII. kerület, Külső Erzsébetváros
83,900,000 Ft
219,000 €
- 63m²
- 2 Rooms
- 1st floor
Elegant, Fully Renovated Apartment for Sale in the Heart of District VII – Szövetség Street
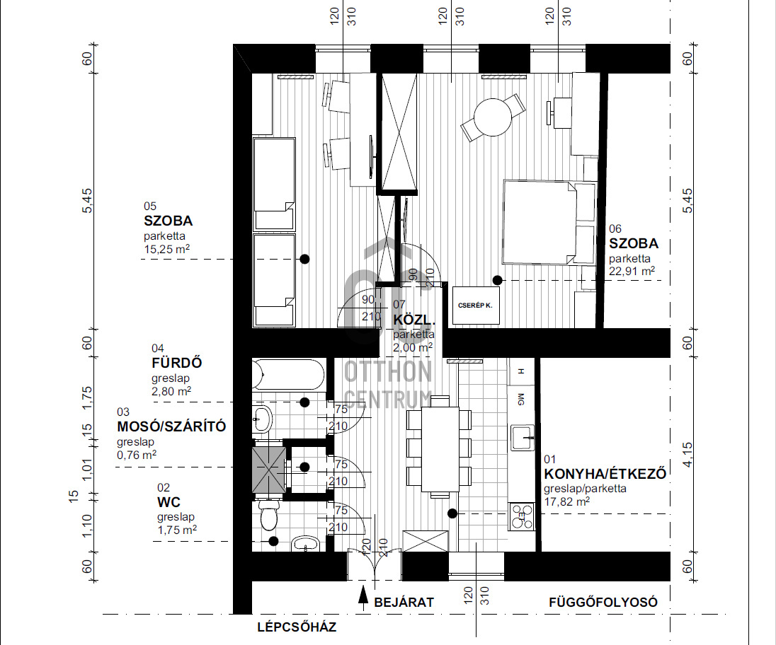
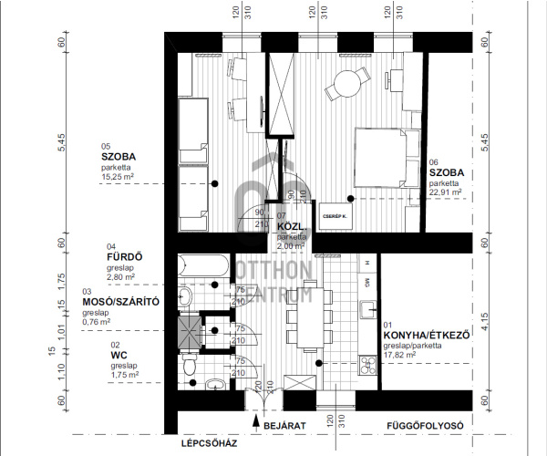
Located on a quiet and charming street just a few steps from the Grand Boulevard, this 63 m² first-floor home was completely and tastefully renovated two years ago. The apartment is accessed through a well-maintained staircase of a classic building, combining modern comfort with timeless elegance.
The spacious kitchen with dining area forms the heart of the home, offering a bright and welcoming atmosphere thanks to its western orientation. From here, you’ll find access to the bathroom, a separate toilet, and a practical laundry room.
The two east-facing bedrooms overlook a quiet, well-kept street, providing a peaceful retreat from city life.
The apartment features high ceilings (3.9 m), airy spaces, and elegant finishes. It is offered fully furnished, with kitchen appliances under warranty, modern electric panel heating, and an energy-efficient water heater. A 6 m² storage room in the basement also belongs to the property.
The building and courtyard are neat and well-maintained, with a friendly community of residents. The neighborhood is rapidly developing – two new hotels are currently being built on the same street, and a park, shops, and various services are all within easy reach.
An excellent choice both as a personal home and as an investment opportunity.
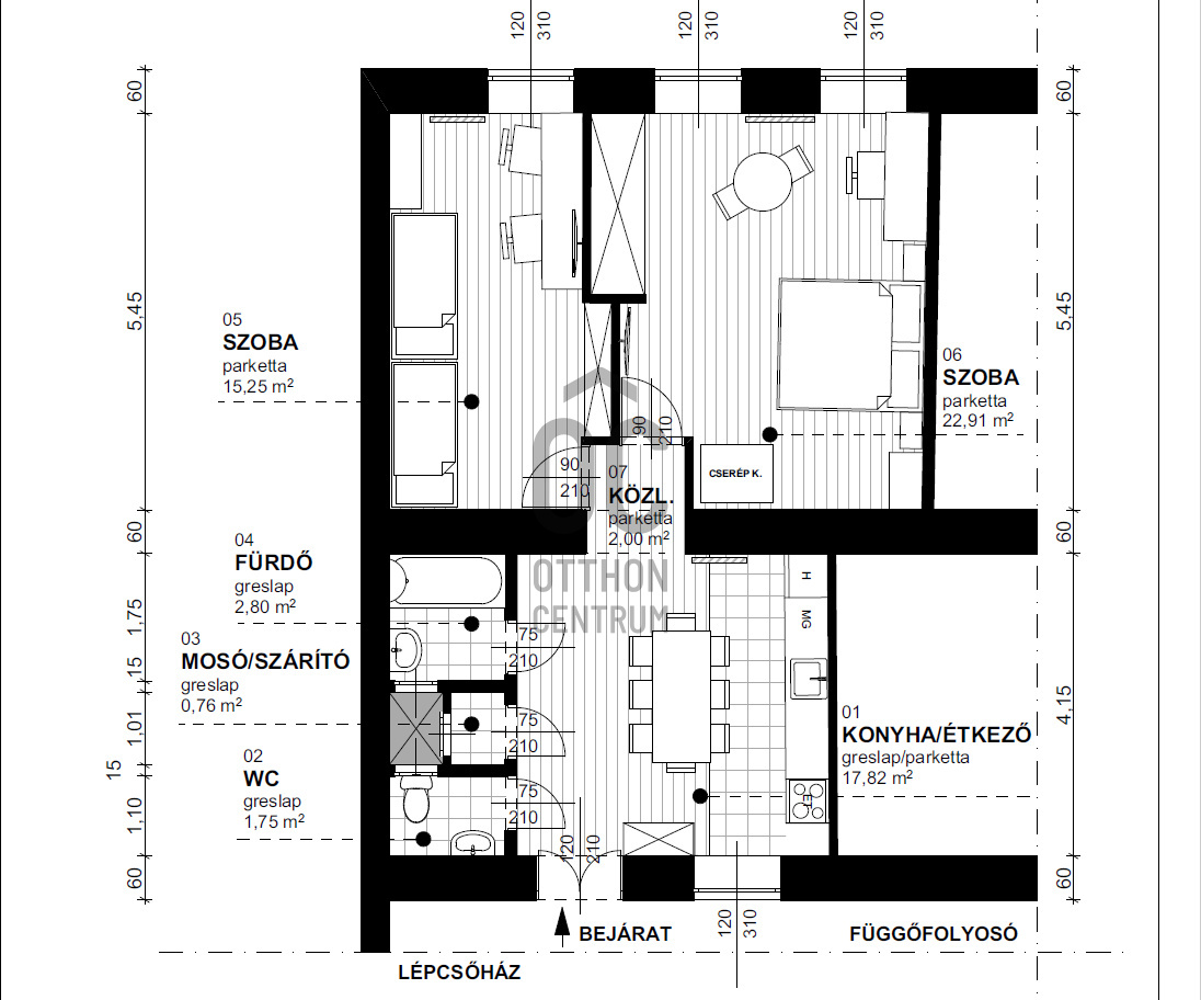
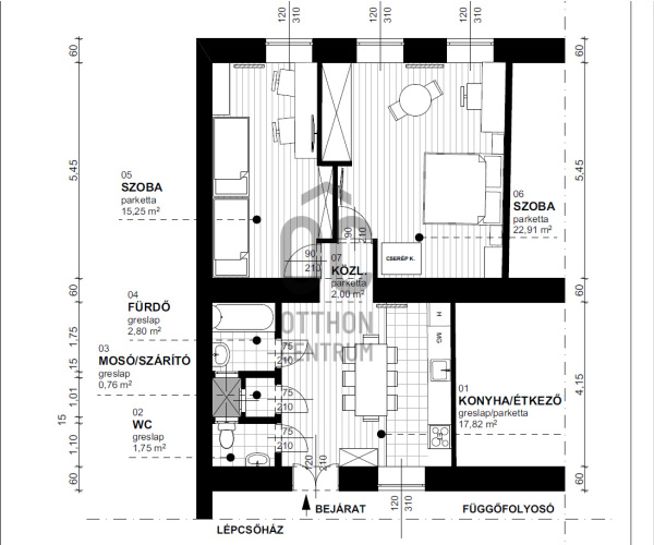
The spacious kitchen with dining area forms the heart of the home, offering a bright and welcoming atmosphere thanks to its western orientation. From here, you’ll find access to the bathroom, a separate toilet, and a practical laundry room.
The two east-facing bedrooms overlook a quiet, well-kept street, providing a peaceful retreat from city life.
The apartment features high ceilings (3.9 m), airy spaces, and elegant finishes. It is offered fully furnished, with kitchen appliances under warranty, modern electric panel heating, and an energy-efficient water heater. A 6 m² storage room in the basement also belongs to the property.
The building and courtyard are neat and well-maintained, with a friendly community of residents. The neighborhood is rapidly developing – two new hotels are currently being built on the same street, and a park, shops, and various services are all within easy reach.
An excellent choice both as a personal home and as an investment opportunity.
Registration Number
H510277
Property Details
Sales
for sale
Legal Status
used
Character
apartment
Construction Method
brick
Net Size
63 m²
Gross Size
63 m²
Heating
electric circulator
Ceiling Height
390 cm
Orientation
East
Staircase Type
circular corridor
Condition
Good
Condition of Facade
Good
Condition of Staircase
Good
Neighborhood
good transport
Year of Construction
1896
Number of Bathrooms
1
Position
street-facing
Common Costs
22000
Water
Available
Gas
Available
Electricity
Available
Sewer
Available
Rooms
open-plan kitchen and dining room
17.82 m²
bedroom
22.91 m²
bedroom
15.25 m²
Örvössy Tamás
Credit Expert