data_sheet.details.realestate.section.main.otthonstart_flag.label
For sale family house,
H509716
Szekszárd, Bottyán-hegy, Ezerjó köz
58,000,000 Ft
154,000 €
- 168m²
- 4 Rooms
Eladó családi ház Szekszárd
A Bottyán-hegyi területen található ház 1972-es építése óta korszerűsítésre került:
- 5 cm hungarocell hőszigetelés a teljes homlokzaton
- pala tető zsindelyezése
- Sanier Duval kazán
- LG klíma
- műanyag ablakok és redőnyök, fa tokban
Ezt leszámítva gyári a ház, felújítandó állapotú. 38 cm vastag téglából épültek a fő falak, 12/15 cm vastagok
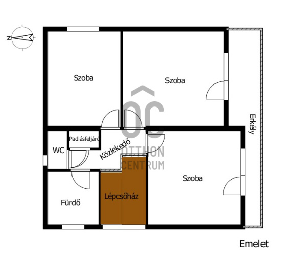
a válaszfalak. A tájékoztató jellegű alaprajzon jelöltek a falvastagságot és a helyiségek elrendezését.
Kis átalakításokkal egy nagyon élhető, jó terekkel rendelkező háza lehet annak a családnak aki atomvillanás álló
alapokkal rendelkező felújítási alapot keres. A teljes tervdokumentáció rendelkezésre áll 1970-ből, még az anyag-
beszerzés könyvelése is megőrzésre került.
Ha a képek és az adatok felkeltették az érdeklődésed nézzük meg a helyszínen!
- 5 cm hungarocell hőszigetelés a teljes homlokzaton
- pala tető zsindelyezése
- Sanier Duval kazán
- LG klíma
- műanyag ablakok és redőnyök, fa tokban
Ezt leszámítva gyári a ház, felújítandó állapotú. 38 cm vastag téglából épültek a fő falak, 12/15 cm vastagok
a válaszfalak. A tájékoztató jellegű alaprajzon jelöltek a falvastagságot és a helyiségek elrendezését.
Kis átalakításokkal egy nagyon élhető, jó terekkel rendelkező háza lehet annak a családnak aki atomvillanás álló
alapokkal rendelkező felújítási alapot keres. A teljes tervdokumentáció rendelkezésre áll 1970-ből, még az anyag-
beszerzés könyvelése is megőrzésre került.
Ha a képek és az adatok felkeltették az érdeklődésed nézzük meg a helyszínen!
Registration Number
H509716
Property Details
Sales
for sale
Legal Status
used
Character
house
Construction Method
brick
Net Size
168 m²
Gross Size
212 m²
Plot Size
624 m²
Size of Terrace / Balcony
20 m²
Heating
gas boiler
Ceiling Height
270 cm
Number of Levels Within the Property
2
Orientation
South
View
city view, Green view
Condition
To be renovated
Condition of Facade
Average
Neighborhood
quiet, good transport, green
Year of Construction
1972
Number of Bathrooms
2
Garage
Included in the price
Garage Spaces
1
Water
Available
Gas
Available
Electricity
Available
Sewer
Available
Storage
Independent
Rooms
entryway
1 m²
kitchen
2 m²
bathroom-toilet
3 m²
bedroom
4 m²
living room
5 m²
boiler room
6 m²
Moczok Ágnes
Credit Expert