data_sheet.details.realestate.section.main.otthonstart_flag.label
For sale semi-detached house,
H509177
Budapest XVII. kerület, Rákosliget
96,900,000 Ft
256,000 €
- 80m²
- 2 Rooms
Földszintes, felújított nagypolgári jellegű kertes ház nagy garázzsal, kiváló környéken eladó
XVII. kerületben a méltán kedvelt Rákosligeten, csendes mellékutcában kínálunk megvásárlásra egy teljeskörűen felújított, FÖLDSZINTES kialakítású, nagypolgári jellegű kertes házat 480 nm-es parkosított telekkel, nagy garázzsal, ahol két autó egymás mellett kényelmesen parkolhat. A felújítás során kicserélték a nyílászárókat hőszigetelt üvegezésű műanyag ablakokra (redőny, szúnyogháló van), az elektromos hálózatot áthúzták, a vízcsöveket a fürdőszoba és a konyha felújításakor szintén cserélték. A homlokzat 10 cm-es dryvit szigetelést és új színezést kapott. A belső elosztás kényelmes és praktikus: a fedett teraszról nyílik a bejárat, a nagy előszobában bőven van hely gardróbszekrényeknek. Innen nyílik a világos, tágas konyha-étkező beépített újszerű bútorzattal, mely a vételár részét képezi. A nagy méretű kamrában van a villanybojler. A fürdőszobában épített zuhanykabin kapott helyet, igény esetén egy sarokkád is elfér. Külön helyiségben található a wc. A tágas nappaliban egy klíma is beépítésre került. A hálószobából le lett választva egy gardrób, így sok tárolási lehetőség van a házban. Szépek a burkolatok, szaniterek, a konyhabútor, a szobákban kiváló állapotú a fa parketta, a belső ajtók elegáns, dupla szárnyas nagypolgári ajtók. A lakás alatt van egy pince, mely két helyiségből áll, itt van lent a gázkazán és a vegyes tüzelésű kazán tartalék fűtésre. Mindkét helyiség ablakos, világos, tárolásra, konditeremnek is kiváló. A füvesített kertben több gyümölcsfa, díszfa is van, locsolási vízmérő van (nem kell csatorna díjat fizetni). A környék kiváló, csendes, rendezett lakóházakkal beépített. Buszmegálló, bevásárlási lehetőség, orvosi rendelő, gyógyszertár rövid sétával elérhető, vonatállomás is pár buszmegálló, innen a Keleti-pályaudvar 17 perc. Tehermentes ingatlan, szabadon hitelezhető.
Registration Number
H509177
Property Details
Sales
for sale
Legal Status
used
Character
house
Construction Method
brick
Net Size
80 m²
Gross Size
115 m²
Plot Size
480 m²
Size of Terrace / Balcony
8.7 m²
Garden Size
480 m²
Heating
Gas circulator
Ceiling Height
320 cm
Orientation
South
Condition
Excellent
Condition of Facade
Excellent
Basement
Independent
Year of Construction
1968
Number of Bathrooms
1
Condominium Garden
yes
Garage
Included in the price
Garage Spaces
2
Water
Available
Gas
Available
Electricity
Available
Sewer
Available
Storage
Independent
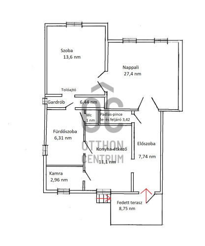
Rooms
terrace
8.8 m²
entryway
7.74 m²
open-plan kitchen and dining room
11.1 m²
cellar
26 m²
bathroom
6.31 m²
pantry
3.42 m²
bedroom
13.6 m²
living room
27.4 m²
wardrobe
6.44 m²
toilet
1 m²
pantry
2.96 m²
Torday Tibor
Credit Expert