470,000,000 Ft
1,211,000 €
- 200m²
- 5 Rooms
Kert, fény, tágas terek – minden, amit egy családi háztól vársz a II. Kerületben!
Eladásra kínálok Adyligeten, a II. kerületben egy 200 m²-es, 4 hálószobás, modern családi házat 729 m²-es telken.
A ház 3 méteres belmagasságával, tágas tereivel és minőségi anyaghasználatával kiváló otthont nyújt többgyermekes családok számára is.
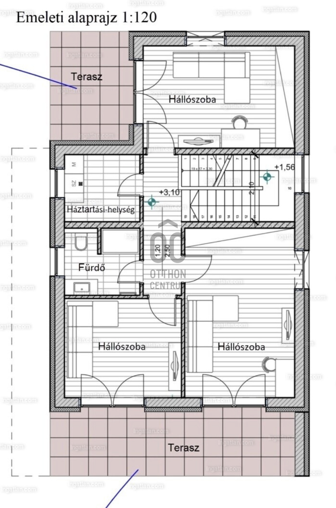
A nappali–konyha–étkező 50 m²-es, négy különnyíló hálószoba (16 m², 12 m², 18,7 m², 17 m²) és több terasz (25,4 m², 14 m², 16,2 m², 9 m²) tartozik hozzá, amelyek közvetlen kapcsolatot biztosítanak a kerttel.
A fűtésről és hűtésről Daikin hőszivattyús rendszer gondoskodik, mennyezeti fűtőszálakkal és padlófűtéssel kombinálva, geo áramról, kedvezményes tarifával.
A havi átlagos energiafogyasztás rendkívül kedvező (kb. 29 000 Ft/hó), a vízfogyasztás kéthavonta kb. 10 000 Ft.
A ház 15 cm-es szigetelést és ürömi mészkőburkolatot kapott.
A háromrétegű nyílászárók kívül antracit színű fém, belül fehér műanyag kivitelűek, motoros zsalúziákkal ellátva.
Riasztórendszer és távfelügyeleti bekötés is kiépítésre került.
A belső terek természetes tölgyfa svédparkettával, a vizes helyiségek nagy méretű hidegburkolatokkal készültek.
A konyhában magasfényű világos bútorok és beépített Bosch gépek találhatók.
A gondozott, nagy ősfás kertben kerti tároló kis ház is helyet kapott.
Adyliget kiválóan megközelíthető tömegközlekedéssel és autóval is: a 10-es út és a környék főbb közlekedési útvonalai gyors összeköttetést biztosítanak Budapest belső kerületeivel és az M0-ás körgyűrűvel.
A környéken bevásárlási lehetőségek, orvosi rendelő, gyógyszertár, iskolák és óvodák könnyen elérhetők.
A környezet csendes és rendezett, a levegő tiszta, a zajterhelés minimális.
Ez a környék ideális választás azoknak, akik városi kényelemre és természetközeli életre egyaránt vágynak.
További részletekért hívjon mielőbb!
Egyedi igényekre szabott lakáshitelekkel állunk rendelkezésére. Bankfüggetlen Hitel Centrumunk az országban elérhető összes bank és hitelintézet ajánlatát versenyezteti az Ön számára díjmentesen.
Munkatársaink nagy szakmai tapasztalattal várják Önt az előre egyeztetett időpontban akár a normál munkaidő után is.
A ház 3 méteres belmagasságával, tágas tereivel és minőségi anyaghasználatával kiváló otthont nyújt többgyermekes családok számára is.
A nappali–konyha–étkező 50 m²-es, négy különnyíló hálószoba (16 m², 12 m², 18,7 m², 17 m²) és több terasz (25,4 m², 14 m², 16,2 m², 9 m²) tartozik hozzá, amelyek közvetlen kapcsolatot biztosítanak a kerttel.
A fűtésről és hűtésről Daikin hőszivattyús rendszer gondoskodik, mennyezeti fűtőszálakkal és padlófűtéssel kombinálva, geo áramról, kedvezményes tarifával.
A havi átlagos energiafogyasztás rendkívül kedvező (kb. 29 000 Ft/hó), a vízfogyasztás kéthavonta kb. 10 000 Ft.
A ház 15 cm-es szigetelést és ürömi mészkőburkolatot kapott.
A háromrétegű nyílászárók kívül antracit színű fém, belül fehér műanyag kivitelűek, motoros zsalúziákkal ellátva.
Riasztórendszer és távfelügyeleti bekötés is kiépítésre került.
A belső terek természetes tölgyfa svédparkettával, a vizes helyiségek nagy méretű hidegburkolatokkal készültek.
A konyhában magasfényű világos bútorok és beépített Bosch gépek találhatók.
A gondozott, nagy ősfás kertben kerti tároló kis ház is helyet kapott.
Adyliget kiválóan megközelíthető tömegközlekedéssel és autóval is: a 10-es út és a környék főbb közlekedési útvonalai gyors összeköttetést biztosítanak Budapest belső kerületeivel és az M0-ás körgyűrűvel.
A környéken bevásárlási lehetőségek, orvosi rendelő, gyógyszertár, iskolák és óvodák könnyen elérhetők.
A környezet csendes és rendezett, a levegő tiszta, a zajterhelés minimális.
Ez a környék ideális választás azoknak, akik városi kényelemre és természetközeli életre egyaránt vágynak.
További részletekért hívjon mielőbb!
Egyedi igényekre szabott lakáshitelekkel állunk rendelkezésére. Bankfüggetlen Hitel Centrumunk az országban elérhető összes bank és hitelintézet ajánlatát versenyezteti az Ön számára díjmentesen.
Munkatársaink nagy szakmai tapasztalattal várják Önt az előre egyeztetett időpontban akár a normál munkaidő után is.
Registration Number
H508735
Property Details
Sales
for sale
Legal Status
used
Character
house
Construction Method
brick
Net Size
200 m²
Gross Size
200 m²
Plot Size
729 m²
Size of Terrace / Balcony
64.6 m²
Heating
heat pump
Ceiling Height
300 cm
Number of Levels Within the Property
2
Orientation
South-West
Condition
Excellent
Condition of Facade
Excellent
Year of Construction
2019
Number of Bathrooms
2
Water
Available
Gas
On the street
Electricity
Available
Sewer
Available
Rooms
open-plan living and dining room
30 m²
kitchen
10 m²
bedroom
16 m²
bedroom
12 m²
bedroom
18.7 m²
bedroom
17 m²
terrace
25.4 m²
terrace
14 m²
terrace
16.2 m²
terrace
9 m²
bathroom
4.5 m²
bathroom
6 m²
toilet
2 m²
corridor
16 m²
staircase
18 m²
utility room
12 m²