230,000,000 Ft
608,000 €
- 270m²
- 6 Rooms
Egy otthon, ami minden részletében rólad szól.
Találd meg OTTHONOD!
Egy hely, ahol minden részlet rólad szól.
Ez az ingatlan nemcsak szép, hanem átgondolt, praktikus, és minden részletében otthonos.
Egy panorámás ház, amit szeretettel építettek, igényesen karbantartottak, és ahol a természet közelsége találkozik a kényelemmel.
Ha eleged van a város zajából, de nem akarsz lemondani a kényelmes mindennapokról, akkor ez a ház neked való!
________________________________________
Főbb adatok:
•Helyszín: Solymár, Pest vármegye
•Telek: 562 m²
•Bruttó alapterület: 316,93 m² + kb. 30 m² padlás
•Zöldfelület: 325 m² (kb. 61%)
•Építés éve: 2001
•Szerkezet: 38-as Porotherm tégla, vasbeton födém
•Tető: prémium minőségű cserép
•Fűtés: gáz cirkó + hűtő-fűtő klíma mindkét szinten
•Szintek száma: 3
•Garázs: kétállásos (40 m²), közvetlen bejárattal a házba
________________________________________
Részletes leírás:
Az ingatlan 2001-ben saját részre, kiemelten gondos kivitelezéssel épült. A ház körbe 15 cm grafitos szigetelést, új homlokzatfestést és 2017-ben modern műanyag nyílászárókat kapott alumínium redőnyökkel. A padlás szigetelt és 2018-ban tárolóként kialakítva.
Belső felújítások:
•2018: új laminált padló az emeleten, teljesen megújult fürdő és WC
•2024: új IKEA konyha beépített gépekkel, vízálló laminált parketta a nappaliban
•Új padló a lenti szobában is
A ház folyamatosan karbantartott, újszerű állapotban van, beköltözésre kész.
________________________________________
Elrendezés:
Emelet:
•3 szoba (mindegyikhez saját gardrób és erkély)
•1 félszoba
•Fürdő, külön WC, folyosó
Alsó szint:
•Amerikai konyhás nappali (teraszkapcsolattal)
•Spájz, fürdő (kád + zuhany), külön WC
•1 szoba
Szuterén:
•2 szoba és egy jelenleg tornateremként használt helyiség
•Mosókonyha, fürdő, WC, raktár
•Külön lakás is kialakítható ebből a szintből
Garázs:
Duplaállásos, 40 m²-es, a terasz alatt, közvetlen bejárattal a házba. A garázs előtt térkövezett rész, több autó is kényelmesen elfér, és a zsákutcás kialakítás miatt, csendes környék.
________________________________________
Környezet és panoráma:
A ház zsákutcában található, csak az jár erre, aki itt lakik – nyugodt, családias környék, barátságos szomszédokkal.
Örök panoráma nyílik a Les-hegyre, a környék már teljesen beépült, így ez a kilátás garantáltan megmarad.
A kert kényelmes méretű, ahol van lehetőség pihenni, kertészkedni vagy játszani.
A 40 m²-es terasz 2018-ban új burkolatot kapott, kőhatású lapokkal – innen is panorámás kilátás nyílik, tökéletes hely egy reggeli kávéhoz vagy esti borozáshoz.
________________________________________
Közlekedés és elhelyezkedés:
Az utca végéből indul a kék busz, így a tömegközlekedés kiváló, de autóval is pár perc alatt elérhető a főút vagy az M0.
A környék elragadó, nyugodt, és minden megtalálható a közelben: boltok, óvoda, iskola, túra- és bicikliutak, éttermek.
________________________________________
Ez a ház tényleg otthon – szeretettel épült, folyamatosan karbantartott, és most új tulajdonosát várja.
Ha egy olyan helyet keresel, ahol a modern kényelem és a természet közelsége tökéletes harmóniában van,
LE NE MARADJ! Győződj meg személyesen – keress bátran!
Egy hely, ahol minden részlet rólad szól.
Ez az ingatlan nemcsak szép, hanem átgondolt, praktikus, és minden részletében otthonos.
Egy panorámás ház, amit szeretettel építettek, igényesen karbantartottak, és ahol a természet közelsége találkozik a kényelemmel.
Ha eleged van a város zajából, de nem akarsz lemondani a kényelmes mindennapokról, akkor ez a ház neked való!
________________________________________
Főbb adatok:
•Helyszín: Solymár, Pest vármegye
•Telek: 562 m²
•Bruttó alapterület: 316,93 m² + kb. 30 m² padlás
•Zöldfelület: 325 m² (kb. 61%)
•Építés éve: 2001
•Szerkezet: 38-as Porotherm tégla, vasbeton födém
•Tető: prémium minőségű cserép
•Fűtés: gáz cirkó + hűtő-fűtő klíma mindkét szinten
•Szintek száma: 3
•Garázs: kétállásos (40 m²), közvetlen bejárattal a házba
________________________________________
Részletes leírás:
Az ingatlan 2001-ben saját részre, kiemelten gondos kivitelezéssel épült. A ház körbe 15 cm grafitos szigetelést, új homlokzatfestést és 2017-ben modern műanyag nyílászárókat kapott alumínium redőnyökkel. A padlás szigetelt és 2018-ban tárolóként kialakítva.
Belső felújítások:
•2018: új laminált padló az emeleten, teljesen megújult fürdő és WC
•2024: új IKEA konyha beépített gépekkel, vízálló laminált parketta a nappaliban
•Új padló a lenti szobában is
A ház folyamatosan karbantartott, újszerű állapotban van, beköltözésre kész.
________________________________________
Elrendezés:
Emelet:
•3 szoba (mindegyikhez saját gardrób és erkély)
•1 félszoba
•Fürdő, külön WC, folyosó
Alsó szint:
•Amerikai konyhás nappali (teraszkapcsolattal)
•Spájz, fürdő (kád + zuhany), külön WC
•1 szoba
Szuterén:
•2 szoba és egy jelenleg tornateremként használt helyiség
•Mosókonyha, fürdő, WC, raktár
•Külön lakás is kialakítható ebből a szintből
Garázs:
Duplaállásos, 40 m²-es, a terasz alatt, közvetlen bejárattal a házba. A garázs előtt térkövezett rész, több autó is kényelmesen elfér, és a zsákutcás kialakítás miatt, csendes környék.
________________________________________
Környezet és panoráma:
A ház zsákutcában található, csak az jár erre, aki itt lakik – nyugodt, családias környék, barátságos szomszédokkal.
Örök panoráma nyílik a Les-hegyre, a környék már teljesen beépült, így ez a kilátás garantáltan megmarad.
A kert kényelmes méretű, ahol van lehetőség pihenni, kertészkedni vagy játszani.
A 40 m²-es terasz 2018-ban új burkolatot kapott, kőhatású lapokkal – innen is panorámás kilátás nyílik, tökéletes hely egy reggeli kávéhoz vagy esti borozáshoz.
________________________________________
Közlekedés és elhelyezkedés:
Az utca végéből indul a kék busz, így a tömegközlekedés kiváló, de autóval is pár perc alatt elérhető a főút vagy az M0.
A környék elragadó, nyugodt, és minden megtalálható a közelben: boltok, óvoda, iskola, túra- és bicikliutak, éttermek.
________________________________________
Ez a ház tényleg otthon – szeretettel épült, folyamatosan karbantartott, és most új tulajdonosát várja.
Ha egy olyan helyet keresel, ahol a modern kényelem és a természet közelsége tökéletes harmóniában van,
LE NE MARADJ! Győződj meg személyesen – keress bátran!
Registration Number
H508633
Property Details
Sales
for sale
Legal Status
used
Character
house
Construction Method
brick
Net Size
270 m²
Gross Size
286 m²
Plot Size
562 m²
Size of Terrace / Balcony
44.7 m²
Garden Size
325 m²
Heating
Gas circulator
Ceiling Height
270 cm
Number of Levels Within the Property
3
Orientation
South-East
View
Green view
Condition
Good
Condition of Facade
Good
Neighborhood
quiet
Year of Construction
2001
Number of Bathrooms
3
Condominium Garden
yes
Garage
Included in the price
Garage Spaces
2
Water
Available
Gas
Available
Electricity
Available
Sewer
Available
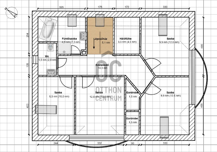
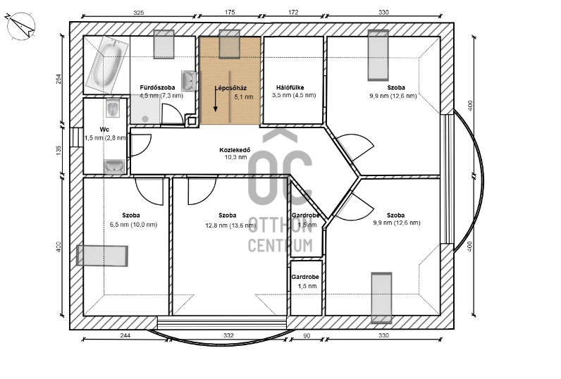
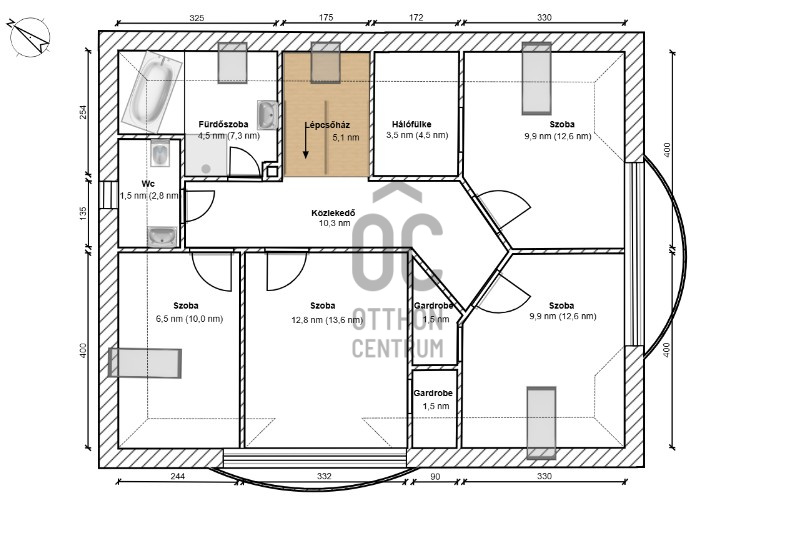
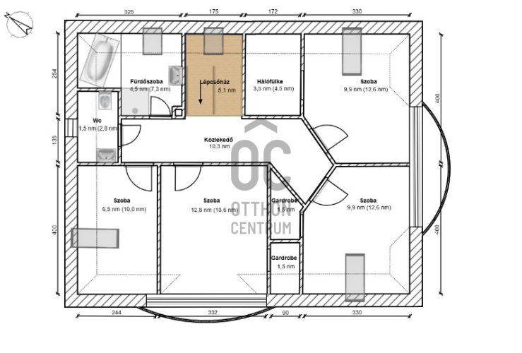
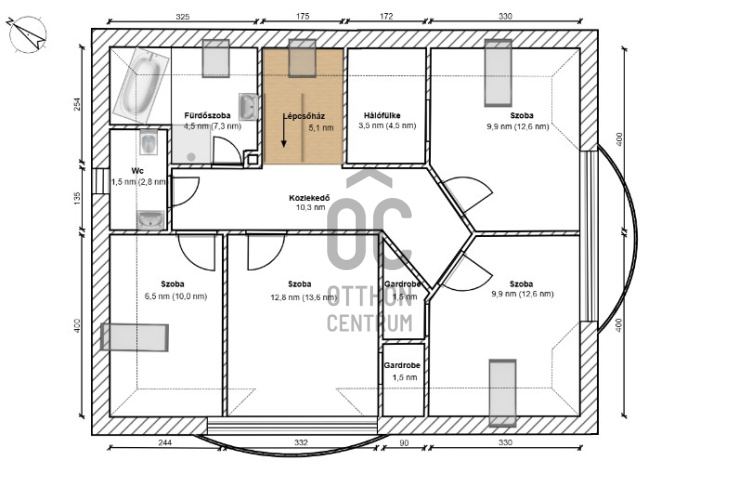
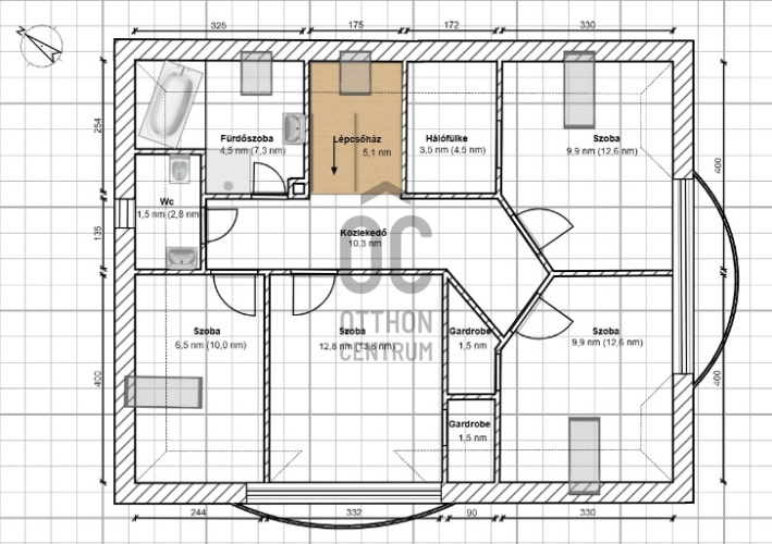
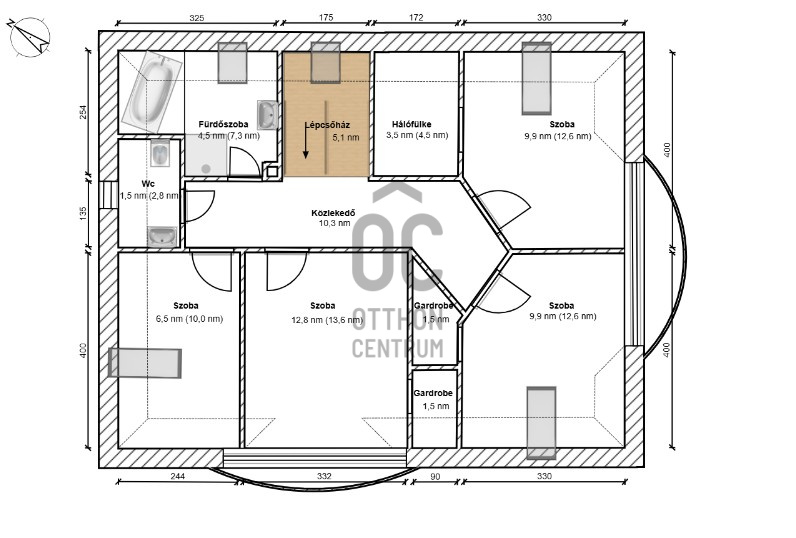
Rooms
entryway
4.2 m²
room
10.3 m²
wardrobe
2.7 m²
bathroom
8.8 m²
toilet-washbasin
1.4 m²
storage
1.9 m²
corridor
5.5 m²
open-plan kitchen and living room
41.9 m²
staircase
5.1 m²
bathroom
4.5 m²
toilet-washbasin
1.5 m²
room
6.6 m²
room
12.8 m²
wardrobe
1.5 m²
room
9.9 m²
wardrobe
1.5 m²
room
14.4 m²
corridor
10.3 m²
staircase
5.1 m²
utility room
8.8 m²
sauna
3.3 m²
toilet-washbasin
1.6 m²
bathroom-toilet
3.7 m²
study
11.3 m²
corridor
8.5 m²
storage
2.2 m²
staircase
2.3 m²
room
11.3 m²
gym
27 m²
garage
38.1 m²