data_sheet.details.realestate.section.main.otthonstart_flag.label
For sale family house,
H508317
Tápiószentmárton
56,000,000 Ft
145,000 €
- 77m²
- 3 Rooms
































Kiváló állapotú 3 szoba+nappalis családi ház!
Egy igazán különleges ingatlant kínálunk eladásra Tápiószentmártonban, Pest vármegyében, amely ideális választás lehet középkorú ügyfelek számára, akik családjuknak vagy befektetési célra keresnek kiváló lehetőséget. Ez a használt ház 108 négyzetméteres alapterülettel rendelkezik, és egy 934 négyzetméteres telken helyezkedik el, amely bőséges teret biztosít a pihenésre és a szórakozásra. Az ingatlanban három tágas szoba található, melyek világosak és barátságosak, így ideális környezetet biztosítanak a család számára. A fürdőszoba nagy, kényelems. A ház állapota pedig kiváló, ami lehetővé teszi, hogy az új tulajdonos azonnal birtokba vegye. A fűtés gázkonvektorral történik, amely hatékony és gazdaságos megoldást kínál a téli hónapokban. A garázsban egy autó kényelmesen elfér, így a parkolás sosem jelent problémát. Az ingatlan tehermentes, ami gyors és zökkenőmentes ügyintézést garantál az új tulajdonos számára. A kisállattal költözhető lehetőség pedig különösen vonzóvá teszi az ingatlant azok számára, akik négylábú barátjaikkal együtt szeretnének új otthonra lelni. Tápiószentmárton környéke kiváló ellátottsággal büszkélkedik, közeli Termálfürdővel, és a Kincsem Lovasparkkal. A település kitűnő közlekedési lehetőségeket kínál, hiszen a faluközpont és a főbb közlekedési csomópontok könnyen megközelíthetők autóval és tömegközlekedéssel egyaránt. A csendes, biztonságos környék ideális választás családosok számára, akik értékelik a nyugodt lakókörnyezetet, de nem akarnak lemondani a városi élet kényelméről. Az ingatlan környezete barátságos és családias, a szomszédok segítőkészek és kedvesek, ami hozzájárul a kellemes életkörülményekhez. A település közösségi programjai és rendezvényei lehetőséget biztosítanak a helyi lakosok számára a kapcsolatok ápolására és a közösségi élet aktív részvételére. Amennyiben bármilyen kérdése merülne fel az ingatlannal kapcsolatban, ne habozzon keresni bennünket! Szívesen állunk rendelkezésére, hogy minden információt megosszunk Önnel, és segítsünk az álmai otthonának megtalálásában. Az ingatlan piaca dinamikusan változik, ezért érdemes mihamarabb lépni, hogy ne maradjon le erről a remek lehetőségről!
Registration Number
H508317
Property Details
Sales
for sale
Legal Status
used
Character
house
Construction Method
mixed masonry
Net Size
77 m²
Gross Size
108 m²
Plot Size
934 m²
Heating
gas convector
Ceiling Height
254 cm
Orientation
South-East
Condition
Excellent
Condition of Facade
Excellent
Neighborhood
good transport
Year of Construction
1965
Number of Bathrooms
1
Garage
Included in the price
Garage Spaces
1
Water
Available
Gas
Available
Electricity
Available
Sewer
Available
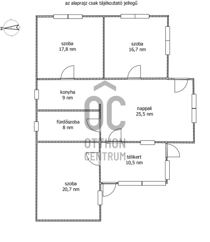
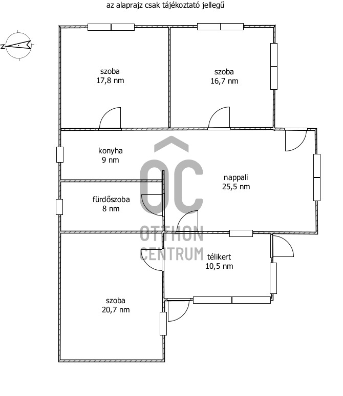
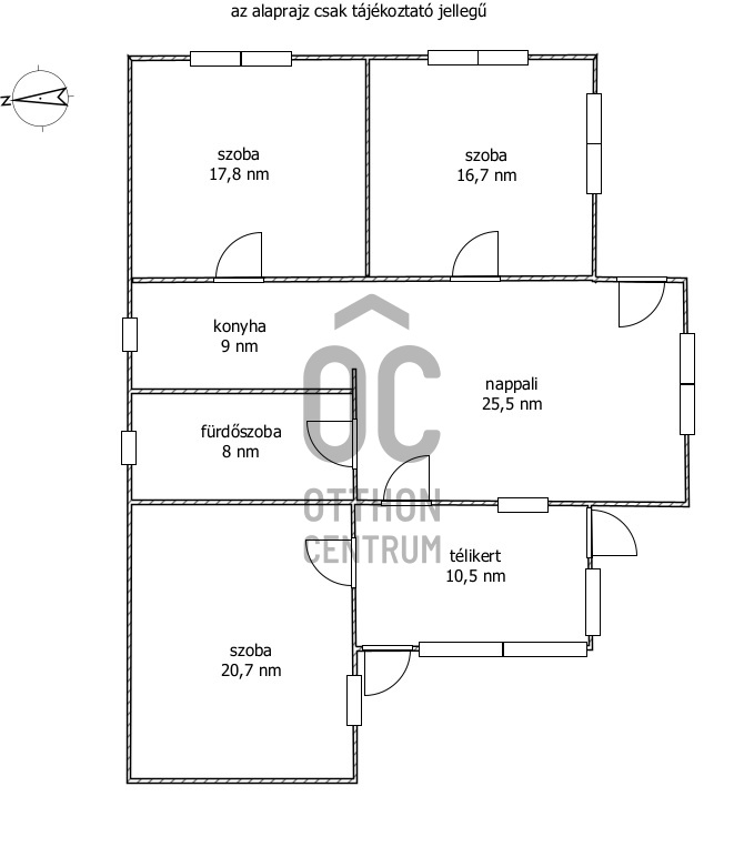
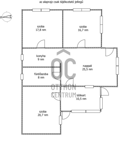
Rooms
room
17.8 m²
room
16.7 m²
living room
25.4 m²
kitchen
9 m²
bathroom-toilet
8 m²