data_sheet.details.realestate.section.main.otthonstart_flag.label
For sale panel apartment,
H508027
Pécs, Kertváros
41,800,000 Ft
108,000 €
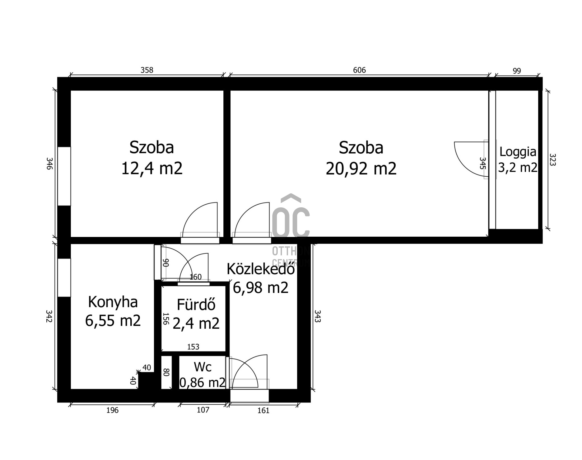
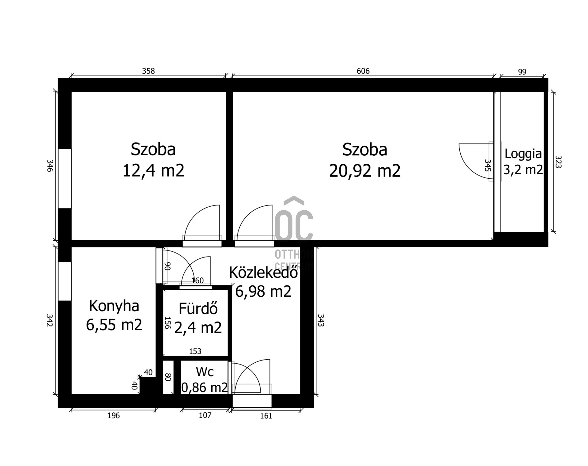
- 52m²
- 2 Rooms
- 2nd floor


























Eladó Pécs, Kertvárosi lakás
Regisztrációs szám: H508027
Köszöntelek a hirdetésemnél!
Fedezze fel ezt a kivételes lehetőséget Pécs Kertvárosában!
Egy 4/2. emeleti, 52 négyzetméteres, 2 szobás, erkélyes lakás keresi új tulajdonosát.
Ez az ingatlan ideális választás lehet magánszemélyek és befektetők számára egyaránt, hiszen a város egyik legkedveltebb részén helyezkedik el.
FONTOS INFÓ: **********Az ingatlant jelenleg is albérlő lakja, aki szívesen maradna!!!**********
A társasház szigetelt, ablakai, bejárati kapuja műanyag szerkezetű, a kaputelefon digitális, a lépcsőház szép, tiszta és rendezett!
A lakás átlagos állapotban van, így Ön saját ízlésének megfelelően alakíthatja át, miközben a távhő lehetővé teszi a kényelmes és gazdaságos fűtést.
A lakáshoz tartozik egy 3 négyzetméteres erkély, amely zöldre néző panorámát kínál a környező területekre, lehetőséget biztosítva a pihenésre és a kikapcsolódásra.
Az ingatlant, egy több ponton záródó biztonsági ajtó védi, egyébként a közbiztonság teljesen rendben van!
Az ÚJ villanyvezeték, falon kívül kapott helyet, a fürdő és a toalett külön helyiségben található.
Az ingatlan elrendezése praktikus, a két külön nyíló szoba világos, és tágas, így ideális választás lehet családoknak, fiatal pároknak egyedülállóknak, de akár befektetőknek is megfelelhet!
Kertváros nyugodt és csendes környezete, a rendkívüli frekventáltsága és a városi élet előnyei találkoznak ebben az ingatlanban.
A lakás előtt térítésmentesen lehet parkolni, az épület közvetlen környezetében buszmegálló, számos park, játszótér, piac, bank, óvoda, iskola, bölcsőde, Spar, orvosi rendelő és számos sportolási lehetőség található, ami különösen vonzó a családosok számára.
Az infrastruktúra kiváló, a közlekedési lehetőségek széles skálája áll rendelkezésre: a tömegközlekedés gyors és kényelmes, így a város többi része könnyen elérhető. Autóval is egyszerűen megközelíthetőek a főbb közlekedési csomópontok, így a napi ingázás sem jelenthet problémát.
A környék biztonságos, barátságos lakóközösséggel rendelkezik, ahol a szomszédok ismerik, és segítik egymást.
Az itt élők számára a helyi boltok, éttermek és szolgáltatások könnyen elérhetők, így a mindennapi élet kényelmesen és gördülékenyen zajlik. A városi élet és a természet harmóniája vár Önre.
Kérdéseivel, a hét bármely napján kereshet, szívesen állok a rendelkezésére.
Teljes körű pénzügyi megoldások ügyintézése díjmentesen:
* Bankfüggetlen hitelcenterünk díjmentesen versenyezteti minden bank és hitelintézet ajánlatát.
* Önnek nincs más dolga, mint beszélgetni munkatársunkkal, majd a megversenyeztetett ajánlatokból kiválasztani a hosszútávon is a legmegfelelőbb konstrukciót.
* Szakértőnk több mint 20 éves szakmai tapasztalattal és egyedi igényekre szabott, fogyasztóbarát lakáshitelekkel, babaváró hitellel, teljes körű CSOK ügyintézéssel várja Önt.
* Előre egyeztetett időpontban.
Köszöntelek a hirdetésemnél!
Fedezze fel ezt a kivételes lehetőséget Pécs Kertvárosában!
Egy 4/2. emeleti, 52 négyzetméteres, 2 szobás, erkélyes lakás keresi új tulajdonosát.
Ez az ingatlan ideális választás lehet magánszemélyek és befektetők számára egyaránt, hiszen a város egyik legkedveltebb részén helyezkedik el.
FONTOS INFÓ: **********Az ingatlant jelenleg is albérlő lakja, aki szívesen maradna!!!**********
A társasház szigetelt, ablakai, bejárati kapuja műanyag szerkezetű, a kaputelefon digitális, a lépcsőház szép, tiszta és rendezett!
A lakás átlagos állapotban van, így Ön saját ízlésének megfelelően alakíthatja át, miközben a távhő lehetővé teszi a kényelmes és gazdaságos fűtést.
A lakáshoz tartozik egy 3 négyzetméteres erkély, amely zöldre néző panorámát kínál a környező területekre, lehetőséget biztosítva a pihenésre és a kikapcsolódásra.
Az ingatlant, egy több ponton záródó biztonsági ajtó védi, egyébként a közbiztonság teljesen rendben van!
Az ÚJ villanyvezeték, falon kívül kapott helyet, a fürdő és a toalett külön helyiségben található.
Az ingatlan elrendezése praktikus, a két külön nyíló szoba világos, és tágas, így ideális választás lehet családoknak, fiatal pároknak egyedülállóknak, de akár befektetőknek is megfelelhet!
Kertváros nyugodt és csendes környezete, a rendkívüli frekventáltsága és a városi élet előnyei találkoznak ebben az ingatlanban.
A lakás előtt térítésmentesen lehet parkolni, az épület közvetlen környezetében buszmegálló, számos park, játszótér, piac, bank, óvoda, iskola, bölcsőde, Spar, orvosi rendelő és számos sportolási lehetőség található, ami különösen vonzó a családosok számára.
Az infrastruktúra kiváló, a közlekedési lehetőségek széles skálája áll rendelkezésre: a tömegközlekedés gyors és kényelmes, így a város többi része könnyen elérhető. Autóval is egyszerűen megközelíthetőek a főbb közlekedési csomópontok, így a napi ingázás sem jelenthet problémát.
A környék biztonságos, barátságos lakóközösséggel rendelkezik, ahol a szomszédok ismerik, és segítik egymást.
Az itt élők számára a helyi boltok, éttermek és szolgáltatások könnyen elérhetők, így a mindennapi élet kényelmesen és gördülékenyen zajlik. A városi élet és a természet harmóniája vár Önre.
Kérdéseivel, a hét bármely napján kereshet, szívesen állok a rendelkezésére.
Teljes körű pénzügyi megoldások ügyintézése díjmentesen:
* Bankfüggetlen hitelcenterünk díjmentesen versenyezteti minden bank és hitelintézet ajánlatát.
* Önnek nincs más dolga, mint beszélgetni munkatársunkkal, majd a megversenyeztetett ajánlatokból kiválasztani a hosszútávon is a legmegfelelőbb konstrukciót.
* Szakértőnk több mint 20 éves szakmai tapasztalattal és egyedi igényekre szabott, fogyasztóbarát lakáshitelekkel, babaváró hitellel, teljes körű CSOK ügyintézéssel várja Önt.
* Előre egyeztetett időpontban.
Registration Number
H508027
Property Details
Sales
for sale
Legal Status
used
Character
apartment
Construction Method
panel
Net Size
52 m²
Gross Size
52 m²
Size of Terrace / Balcony
4 m²
Heating
individual district heating
Ceiling Height
260 cm
Orientation
West
Staircase Type
enclosed staircase
Condition
Average
Condition of Facade
Good
Condition of Staircase
Good
Year of Construction
1976
Number of Bathrooms
1
Position
street-facing
Common Costs
8000
Water
Available
Gas
Available
Electricity
Available
Sewer
Available
Storage
Shared
Rooms
corridor
7 m²
kitchen
6.55 m²
toilet
1 m²
bedroom
12.4 m²
living room
20.9 m²
bathroom
2.4 m²
balcony
3 m²

Mecseki Lászlóné - Éva
Credit Expert