269,000,000 Ft
692,000 €
- 279m²
- 9 Rooms






















2 LAKÁS + IRODA ZUGLÓBAN. ÖSSZEKÖLTÖZŐKNEK, BEFEKTETŐKNEK.
Zugló kertvárosi részén főútvonalakhoz közel, mégis csendes mellékutcában társasházzá alakítható családi házat ajánlok. Telek: 644 m2. 2 külön bejáratú lakás, plusz az alsó szinten egy 52 nm-es iroda, vállalkozás részére alkalmas lakrész lett kialakítva. A fogyasztások lakásonként külön mérhetők.
A lakások és helyiségek ingatlanon belüli elosztásáról használati megosztás készült. .
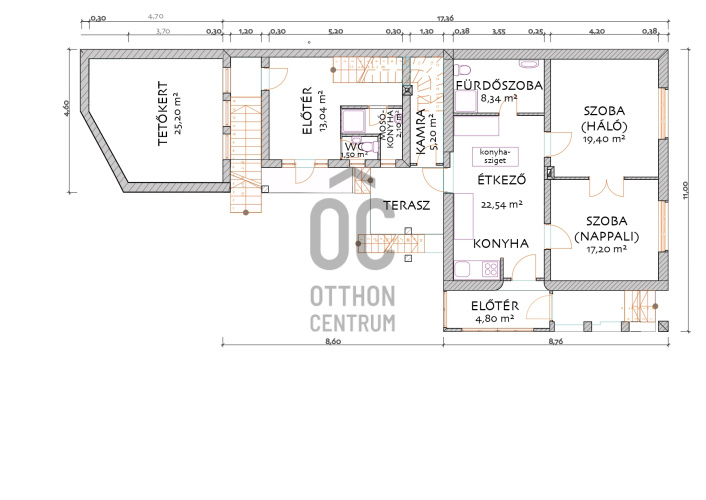
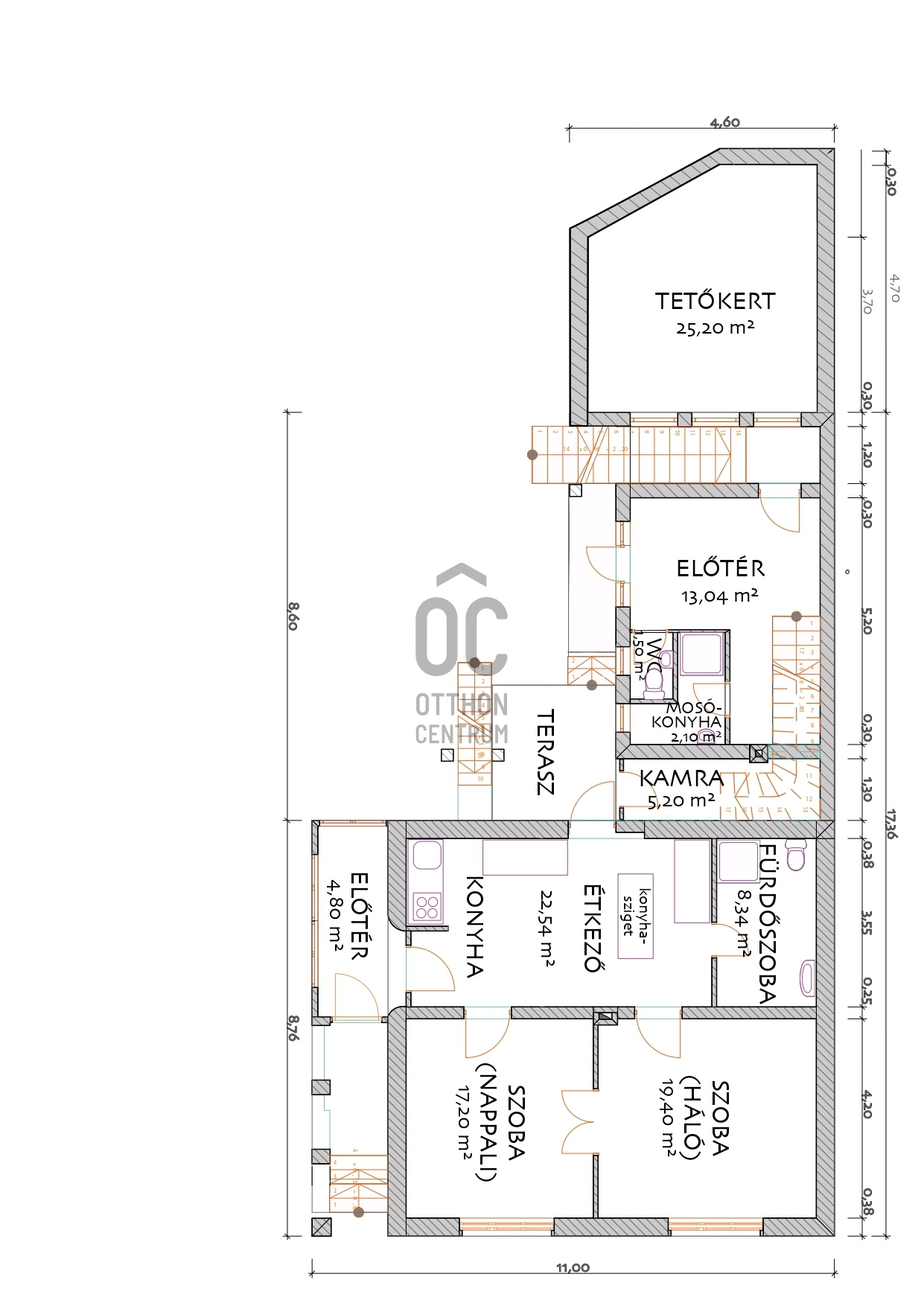
Földszint: 52 nm irodának, vállalkozásnak. Teljes műszaki és esztétikai felújítás 2016. után megtörtént.
2 szoba+ konyha+ wc
1. szint: 77 nm lakás teljes műszaki és esztétikai felújítás 2016. után.
2 szoba + étkező-konyha + fürdő, wc. + kertre néző erkély, fűtés: 2 hűtő-fűtő klíma, elektromos panel.
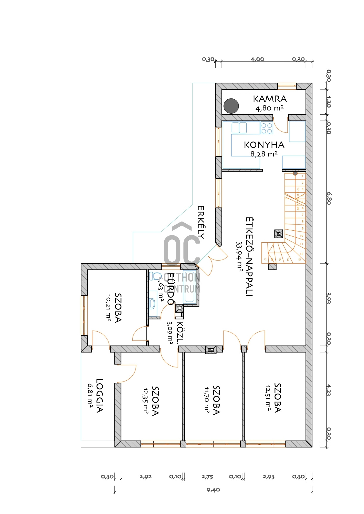
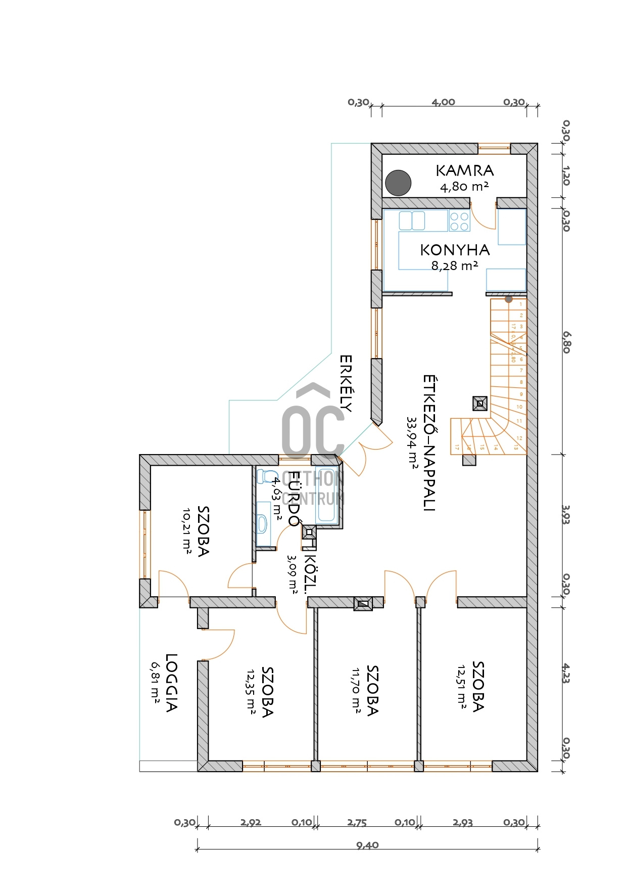
1-2. szint 118,5 nm lakás , jó állapot. Fűtés: gáz kazán, radiátoros, 2 hűtő-fűtő klíma.
Nappali-étkező + 4 szoba + konyha+ fürdő-wc+ mosókonyha+ wc+ kamra+ utcára néző loggia
Alagsor: 30.5 nm tároló, kazán helyiség felújított.
borospince kb. 5 nm
Garázs: 29,7 nm 2 állásos, víz bekötve, felújítás félkész állapotban.
Kerti tároló : 18 nm teljesen felújított, szigetelt, vízcsap falikúttal. (raktárnak is )
A ház és a garázs mellett a kert felöli egy nagy kb. 60 nm-es teraszon pihenhet és grillezhet nyáron. A szépen gondozott kertben több helyen kerti csap, zuhanyzó és magaságyás is található. A már növésben lévő különleges fák, bokrok kellemes árnyat adnak a nyári melegben. ( Japán fűz, ginkó biloba, eukaliptusz, füge, stb).
A ház külső szigetelése és vakolása részben elkészült, a befejezés és a szinezés az új vevőre vár.
Jelenleg a garázs és a földszinti beépített veranda felett egy 29 és 25 nm-es zöldtető kialakítás folyamatban van, ezeket egy híd köti majd össze.
Közlekedés: a 77-es troli
Vásárlás: CBA_Príma, Lidl, Spar, pékség, Bosnyák téri piac, hamarosan megnyílik ugyanitt a Zenit Corso új bevásárlóközpont.
Igény esetén a ház társasházzá alakítható.
EGYÜTT ÉS MÉGIS KÜLÖN! Több generációs családoknak, barátoknak ideális választás.
MUNKAHELY OTTHON! + BEFEKTETÉS! A földszinti rész vállalkozóknak iroda, bemutatóterem, kisebb műhely részére is tökéletes. A kerti kis ház raktárnak is használható. Jól kiadható, hosszú távra biztos bevétel.
LKe-1/1 , Beépíthető: 30%
A lakások és helyiségek ingatlanon belüli elosztásáról használati megosztás készült. .
Földszint: 52 nm irodának, vállalkozásnak. Teljes műszaki és esztétikai felújítás 2016. után megtörtént.
2 szoba+ konyha+ wc
1. szint: 77 nm lakás teljes műszaki és esztétikai felújítás 2016. után.
2 szoba + étkező-konyha + fürdő, wc. + kertre néző erkély, fűtés: 2 hűtő-fűtő klíma, elektromos panel.
1-2. szint 118,5 nm lakás , jó állapot. Fűtés: gáz kazán, radiátoros, 2 hűtő-fűtő klíma.
Nappali-étkező + 4 szoba + konyha+ fürdő-wc+ mosókonyha+ wc+ kamra+ utcára néző loggia
Alagsor: 30.5 nm tároló, kazán helyiség felújított.
borospince kb. 5 nm
Garázs: 29,7 nm 2 állásos, víz bekötve, felújítás félkész állapotban.
Kerti tároló : 18 nm teljesen felújított, szigetelt, vízcsap falikúttal. (raktárnak is )
A ház és a garázs mellett a kert felöli egy nagy kb. 60 nm-es teraszon pihenhet és grillezhet nyáron. A szépen gondozott kertben több helyen kerti csap, zuhanyzó és magaságyás is található. A már növésben lévő különleges fák, bokrok kellemes árnyat adnak a nyári melegben. ( Japán fűz, ginkó biloba, eukaliptusz, füge, stb).
A ház külső szigetelése és vakolása részben elkészült, a befejezés és a szinezés az új vevőre vár.
Jelenleg a garázs és a földszinti beépített veranda felett egy 29 és 25 nm-es zöldtető kialakítás folyamatban van, ezeket egy híd köti majd össze.
Közlekedés: a 77-es troli
Vásárlás: CBA_Príma, Lidl, Spar, pékség, Bosnyák téri piac, hamarosan megnyílik ugyanitt a Zenit Corso új bevásárlóközpont.
Igény esetén a ház társasházzá alakítható.
EGYÜTT ÉS MÉGIS KÜLÖN! Több generációs családoknak, barátoknak ideális választás.
MUNKAHELY OTTHON! + BEFEKTETÉS! A földszinti rész vállalkozóknak iroda, bemutatóterem, kisebb műhely részére is tökéletes. A kerti kis ház raktárnak is használható. Jól kiadható, hosszú távra biztos bevétel.
LKe-1/1 , Beépíthető: 30%
Registration Number
H507641
Property Details
Sales
for sale
Legal Status
used
Character
house
Construction Method
brick
Net Size
279 m²
Gross Size
285 m²
Plot Size
644 m²
Size of Terrace / Balcony
13 m²
Garden Size
450 m²
Heating
electric, infrared
Ceiling Height
285 cm
Number of Levels Within the Property
3
Orientation
North-East
View
Green view
Condition
Good
Condition of Facade
Good
Basement
Independent
Neighborhood
quiet, good transport, green
Year of Construction
1994
Number of Bathrooms
3
Condominium Garden
yes
Garage
Included in the price
Garage Spaces
2
Water
Available
Gas
Available
Electricity
Available
Sewer
Available
Multi-Generational
yes
Storage
Independent
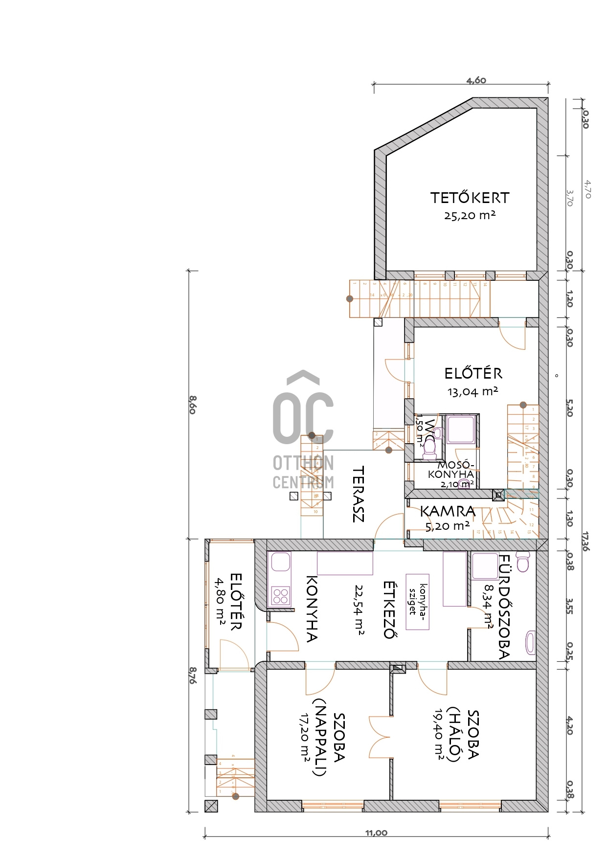
Rooms
entryway
4.8 m²
open-plan kitchen and dining room
22.54 m²
room
19.4 m²
room
17.2 m²
bathroom-toilet
8.34 m²
pantry
5.2 m²
balcony
6 m²
storage
2 m²
office
14 m²
office
25.2 m²
kitchen
8.56 m²
toilet-washbasin
2.99 m²
entryway
13.04 m²
toilet-washbasin
1.5 m²
laundry room
2.1 m²
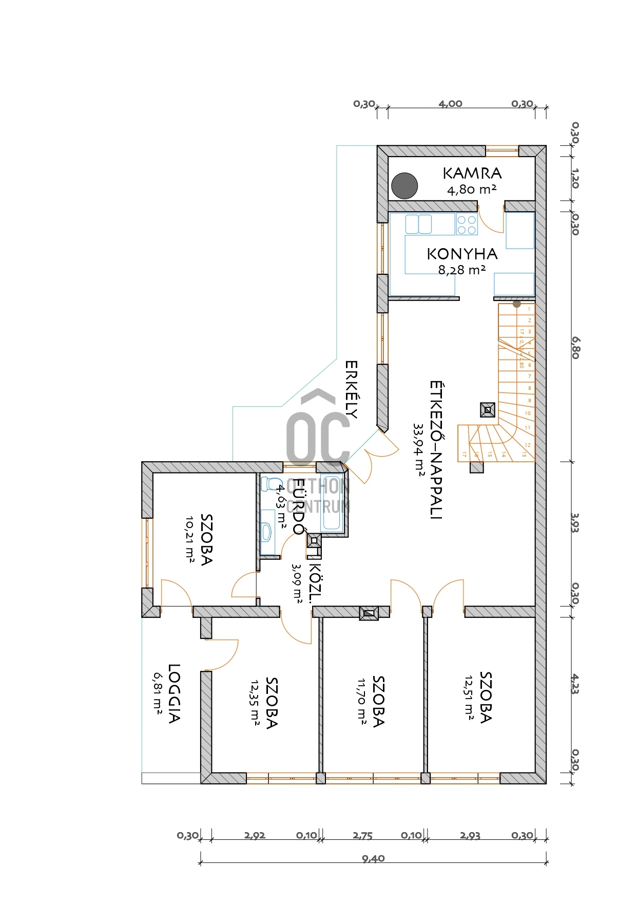
open-plan living and dining room
33.94 m²
kitchen
8.28 m²
pantry
4.8 m²
room
12.51 m²
room
11.7 m²
room
12.35 m²
room
10.21 m²
bathroom-toilet
4.63 m²
corridor
3.09 m²
loggia
6.81 m²

Berkes-Jakus Kinga
Credit Expert