data_sheet.details.realestate.section.main.otthonstart_flag.label
For sale family house,
H507299
Szabolcsveresmart
11,900,000 Ft
31,000 €
- 75m²
- 2 Rooms





















Szabolcsveresmart családi ház
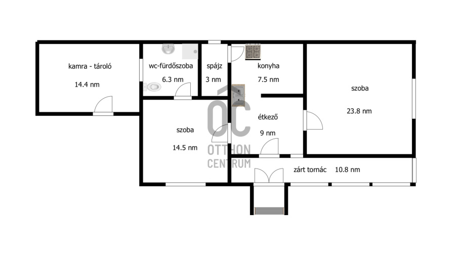
Megvételre kínálok Szabolcsveresmarton, főutcán, egy 1950 -ben vályogból épült, cserepes lemezzel néhány éve átfedett családi házat 1419 nm -es, 21 méter széles telken. A felújítandó ingatlan két szobáját hajópadlóval, illetve laminált padlóval, a konyha-étkezőt, valamint a zuhanykabinos wc-fürdőszobát járólappal burkolták. A nyílászárók fából készültek, az ablakokat redőnnyel szerelték fel, a melegről két cserépkályha gondoskodik, de a gázcsonk már a telken belül található. Az épületet pár évvel ezelőtt bővítették egy szilikátból épült 14.4 nm -es kamra-tárolóval, ami akár lakószobának is átalakítható, így az épület akár a falusi CSOK -ra is alkalmassá tehető. A vételár tartalmazza a bútorzat nagy részét is.
Szabolcsveresmart eladó családi ház
Az ingatlanról készült videó megtekinthető: https://youtu.be/GA8mMUDcqK0
Szabolcsveresmart eladó családi ház
Az ingatlanról készült videó megtekinthető: https://youtu.be/GA8mMUDcqK0
Registration Number
H507299
Property Details
Sales
for sale
Legal Status
used
Character
house
Construction Method
adobe
Net Size
75 m²
Gross Size
95 m²
Plot Size
1,419 m²
Size of Terrace / Balcony
10.8 m²
Heating
tile stove (mixed)
Ceiling Height
265 cm
Number of Levels Within the Property
1
Orientation
South-East
Condition
To be renovated
Condition of Facade
Average
Neighborhood
good transport, green, central
Year of Construction
1950
Number of Bathrooms
1
Water
Available
Electricity
Available
Sewer
Available
Storage
Independent
Rooms
bathroom-toilet
6.3 m²
open-plan kitchen and dining room
16.5 m²
room
23.8 m²
room
14.5 m²
terrace
10.8 m²
storage
14.4 m²