199,900,000 Ft
509,000 €
- 143m²
- 5 Rooms



























Budafok kedvelt részén, családi házas környéken, új építésű ingatlanok szomszédságában eladó egy 2023-ban épült, nettó 150 m2-es (bruttó 180 m2-es), nappali + 4 szobás ikerház-fél.
Műszaki tartalom:
- Energetikai tanúsítvány: A+
- Napelemes tetőcserép
- Hőszivattyús padlófűtés
- Mennyezeti hőszivattyús fűtés
- Rekuperátoros szellőztetőrendszer előkészítés
- 38 cm-es Porotherm tégla falak, 10 cm-es grafitos szigeteléssel
- 3 rétegű üvegezéssel rendelkező antracit műanyag nyílászárók
- Elektromos alumínium redőnyök, rovarhálóval
- Elektromos autótöltés előkészítés
- Riasztórendszer előcsövezve
- Kábel TV, internet
- Prémium minőségű parketta (10 mm vastag)
- Garázs, térkövezett kocsibeálló
Elrendezése:
Földszint:
- nappali (27 m2), kertkapcsolatos terasszal (7 m2)
- étkező-konyha (9 m2), a nappalival egy légtérben, prémium minőségű konyhabútorral és beépített gépekkel (mosogatógép, sütő, főzőlap)
- dolgozószoba (10 m2)
- fürdőszoba zuhanyzóval (5,5 m2), kiváló minőségű szaniterekkel
- előszoba (8 m2)
- kamra (4 m2)
- lépcső és lépcső alatti tároló (1 m2)
- garázs (18 m2)
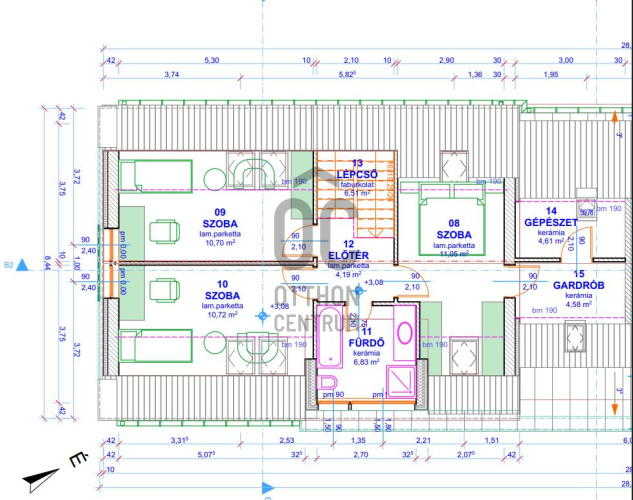
Emelet:
- 3 hálószoba (11 - 11 - 11 m2)
- 2 gardrób (4,5 - 4,6 m2)
- fürdőszoba káddal (7 m2)
Kert:
- füvesített, 8 gyömölcsfa
- 100 m3 termőtalaj került elterítésre
- esővíztároló
- 2 db. kerti csap (teraszon és a kertben).
Infrastruktúra:
- Buszmegállók sétatávolságra
- Óvoda, iskolák a közelben
- Budafok városközpont gyorsan elérhető
Vadonatúj ajánlat!
További részletek és a megtekintés miatt keressen bizalommal! Hétvégén is hívhat.
Műszaki tartalom:
- Energetikai tanúsítvány: A+
- Napelemes tetőcserép
- Hőszivattyús padlófűtés
- Mennyezeti hőszivattyús fűtés
- Rekuperátoros szellőztetőrendszer előkészítés
- 38 cm-es Porotherm tégla falak, 10 cm-es grafitos szigeteléssel
- 3 rétegű üvegezéssel rendelkező antracit műanyag nyílászárók
- Elektromos alumínium redőnyök, rovarhálóval
- Elektromos autótöltés előkészítés
- Riasztórendszer előcsövezve
- Kábel TV, internet
- Prémium minőségű parketta (10 mm vastag)
- Garázs, térkövezett kocsibeálló
Elrendezése:
Földszint:
- nappali (27 m2), kertkapcsolatos terasszal (7 m2)
- étkező-konyha (9 m2), a nappalival egy légtérben, prémium minőségű konyhabútorral és beépített gépekkel (mosogatógép, sütő, főzőlap)
- dolgozószoba (10 m2)
- fürdőszoba zuhanyzóval (5,5 m2), kiváló minőségű szaniterekkel
- előszoba (8 m2)
- kamra (4 m2)
- lépcső és lépcső alatti tároló (1 m2)
- garázs (18 m2)
Emelet:
- 3 hálószoba (11 - 11 - 11 m2)
- 2 gardrób (4,5 - 4,6 m2)
- fürdőszoba káddal (7 m2)
Kert:
- füvesített, 8 gyömölcsfa
- 100 m3 termőtalaj került elterítésre
- esővíztároló
- 2 db. kerti csap (teraszon és a kertben).
Infrastruktúra:
- Buszmegállók sétatávolságra
- Óvoda, iskolák a közelben
- Budafok városközpont gyorsan elérhető
Vadonatúj ajánlat!
További részletek és a megtekintés miatt keressen bizalommal! Hétvégén is hívhat.
Registration Number
H506893
Property Details
Sales
for sale
Legal Status
used
Character
house
Construction Method
brick
Net Size
143 m²
Gross Size
143 m²
Plot Size
419 m²
Heating
heat pump
Ceiling Height
275 cm
Number of Levels Within the Property
2
Orientation
South-East
Condition
Excellent
Condition of Facade
Excellent
Neighborhood
quiet, good transport, green
Year of Construction
2023
Number of Bathrooms
2
Water
Available
Electricity
Available
Sewer
Available
Rooms
living room
27 m²
open-plan kitchen and dining room
9 m²
pantry
4 m²
study
9 m²
bathroom-toilet
6 m²
garage
18 m²
bedroom
11 m²
bedroom
11 m²
bedroom
11 m²
wardrobe
5 m²
bathroom-toilet
7 m²
other room
5 m²

Pongó Miklós
Credit Expert