data_sheet.details.realestate.section.main.otthonstart_flag.label
For sale family house,
H505760
Petrivente
5,900,000 Ft
16,000 €
- 50m²
- 2 Rooms
























Family house for sale in need of renovation in Petrivente.
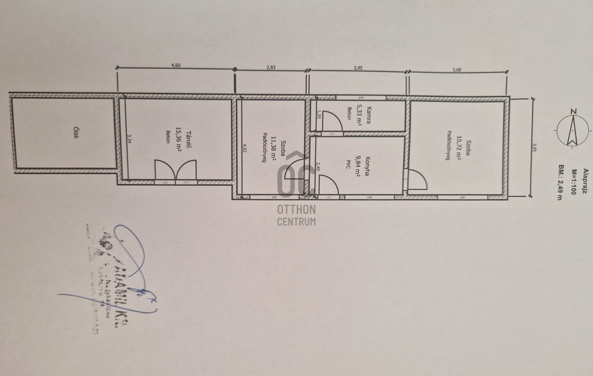
Petrivente is a village located in the southwestern part of the Zala Hills, just 7 kilometers from the Croatian border in a straight line. It has a small population of about 300 residents. The neighboring settlements are: Rigyác to the northeast, Szepetnek to the east, Semjénháza to the south, Tótszentmárton to the southwest, and Becsehely to the northwest. The nearest towns are Nagykanizsa to the east and Letenye to the west. The main road access is via the main road 7, which connects both mentioned towns. The M7 motorway is also nearby. In this peaceful, well-kept little settlement, I am offering the following residential house for sale that requires renovation: - A fenced plot of land measuring 1910 m², wide and flat. - A 50 m² residential house, with storage and shelters located at the back. - The house consists of: 2 rooms, a pantry, and a kitchen. - Electricity is connected to the house, water and sewage are available on the property, and gas is available on the street. - The yard features fruit trees and a garden tap. - The building was constructed around 1975 with brick walls, wooden beam ceilings, and a tiled gable roof. - It has wooden window frames with double glazing, and the facade has a basic plaster finish. - The house is in a condition that requires renovation! - The property is without amenities; there is no bathroom, toilet, or hot water supply installed. The property is fully owned (1/1 ownership) and is free of encumbrances. It can be occupied immediately after full payment.
Registration Number
H505760
Property Details
Sales
for sale
Legal Status
used
Character
house
Construction Method
brick
Net Size
50 m²
Gross Size
57.6 m²
Plot Size
1,910 m²
Garden Size
1,910 m²
Ceiling Height
250 cm
Orientation
East
Condition
To be renovated
Condition of Facade
Average
Neighborhood
quiet, good transport, green
Year of Construction
1975
Condominium Garden
yes
Gas
On the street
Electricity
Available
Rooms
room
15.72 m²
kitchen
9.84 m²
pantry
5.33 m²
room
11.38 m²
storage
15.36 m²

Horváth Szabina
Credit Expert