data_sheet.details.realestate.section.main.otthonstart_flag.label
For sale family house,
H505721
Gyönk, Szabatonpuszta
14,000,000 Ft
36,000 €
- 109m²
- 4 Rooms































Gyönk-Szabatonpusztán ikerház egyben eladó!
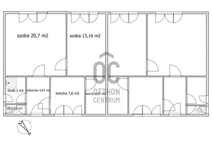
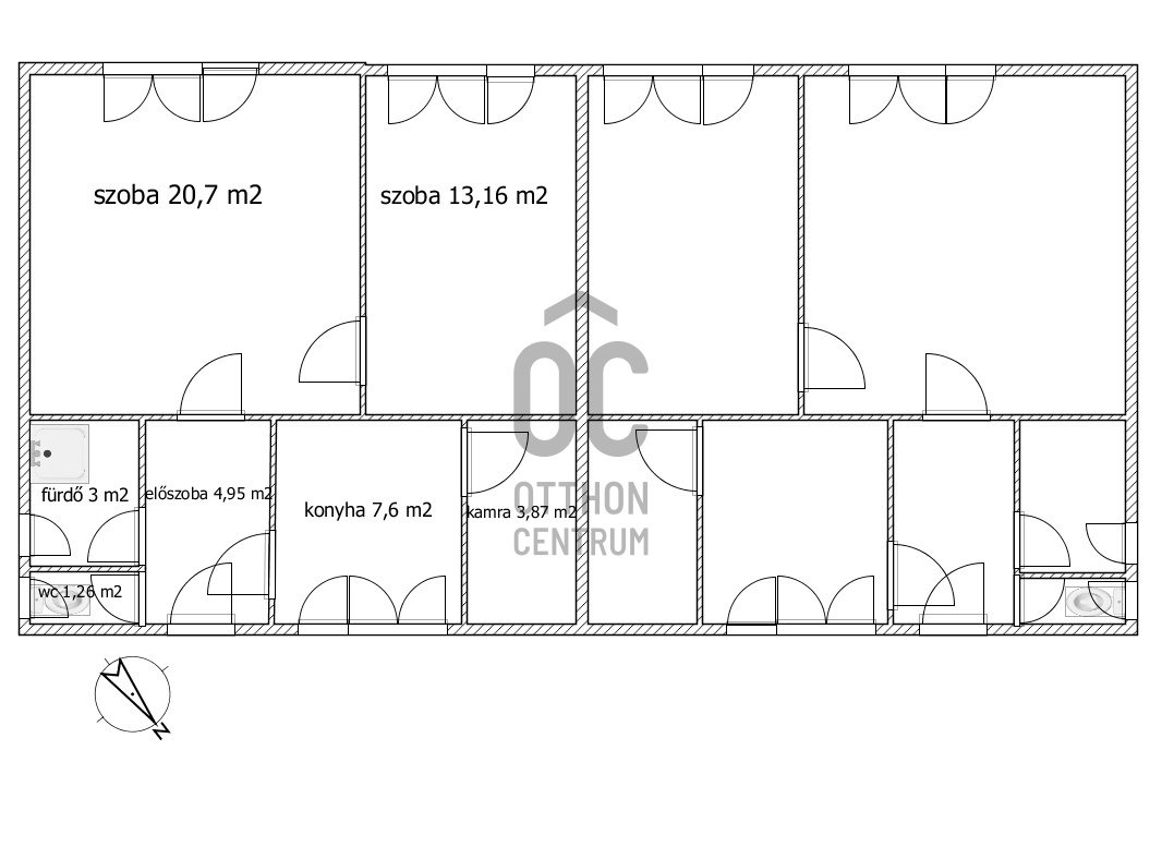
Az eladó ikerház két lakásból áll, amelyek egymás tükörképei. Igény szerint egybe nyithatóak.
A ház tégla falazattal, cserép tetővel, beton aljzattal és betontálcás födémmel rendelkezik.
Mindkét házrészben két szoba, konyha, fürdő, wc és kamra található.
Fűtése jelenleg kályhával lehetséges.
Aszfaltozott úton megközelíthető. Úzd előtt kell balra fordulni, és az út egyenesen odavisz.
Gyönk földúton 7 km.
A telek összesen 1143 m2.
Az odavezető út is vadregényes, a Varasdi halastavak mellett haladunk végig, a másik oldalon erdő.
A házba az áram és a víz be van vezetve, csatorna nincs.
Az ingatlan felújítandó, de jó alap a saját elképzelések megvalósításához.
Ha valaki csendes, zöld környezetbe vágyik, vagy elvonulásra alkalmas ingatlant keres, ez tökéletes lehet!
zöld csendes tégla ikerház erdő mellett OC H505721
A ház tégla falazattal, cserép tetővel, beton aljzattal és betontálcás födémmel rendelkezik.
Mindkét házrészben két szoba, konyha, fürdő, wc és kamra található.
Fűtése jelenleg kályhával lehetséges.
Aszfaltozott úton megközelíthető. Úzd előtt kell balra fordulni, és az út egyenesen odavisz.
Gyönk földúton 7 km.
A telek összesen 1143 m2.
Az odavezető út is vadregényes, a Varasdi halastavak mellett haladunk végig, a másik oldalon erdő.
A házba az áram és a víz be van vezetve, csatorna nincs.
Az ingatlan felújítandó, de jó alap a saját elképzelések megvalósításához.
Ha valaki csendes, zöld környezetbe vágyik, vagy elvonulásra alkalmas ingatlant keres, ez tökéletes lehet!
zöld csendes tégla ikerház erdő mellett OC H505721
Registration Number
H505721
Property Details
Sales
for sale
Legal Status
used
Character
house
Construction Method
brick
Net Size
109 m²
Gross Size
109 m²
Plot Size
1,143 m²
Garden Size
1,143 m²
Heating
stove (coal)
Ceiling Height
274 cm
Orientation
South-West
View
Green view
Condition
To be renovated
Condition of Facade
Average
Neighborhood
quiet, green
Year of Construction
1965
Number of Bathrooms
2
Condominium Garden
yes
Water
Available
Electricity
Available
Multi-Generational
yes
Storage
Independent
Distance to Waterfront
500 meters
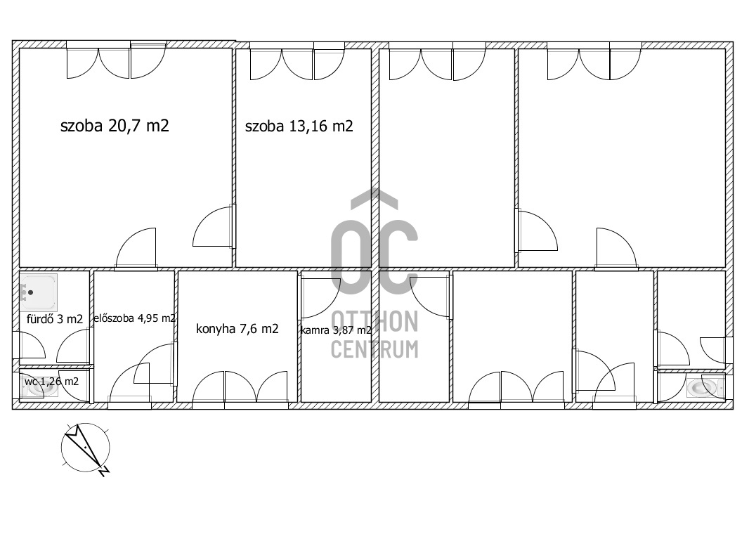
Rooms
room
20.7 m²
room
20.3 m²
room
13.16 m²
room
13.2 m²
entryway
4.95 m²
entryway
4.97 m²
kitchen
7.6 m²
kitchen
7.65 m²
pantry
3.87 m²
pantry
3.86 m²
bathroom
3 m²
bathroom
3.1 m²
bathroom-toilet
1.26 m²
bathroom-toilet
1.28 m²

Deli Richárd
Credit Expert