154,900,000 Ft
399,000 €
- 225m²
- 9 Rooms




























Taksony kedvelt, központhoz közeli részén várja új lakóit ez a rengeteg lehetőséget magában rejtő, többgenerációs , de vállalkozás céljára is kiváló ingatlan.
Amit érdemes tudni róla, a teljesség igénye nélkül:
Kert:
- telke 1388 nm, összközműves, első részét viacolor borítja, a ház mögött található, elszeparált területe pedig füvesített, öntöző rendszerrel kiépített.
- helyet kapott rajta a 10*5 m nagyságú, fedett, fűthető medence
- fedett terasz, kemencével
- a házat a garázstól elválasztó 20 nm téli kert
- a 38 nm nagyságú fedett terasz, mely kandallóval fűthető
Garázs:
- fűtött, 100 nm, elektromos kapukkal, akár 3 autó beállására is lehetőséget nyújt
- 2/3 rész területén beton födémes padlástere tárolásra alkalma, de akár egy kis garzon is kialakítható belőle harmadik lakásként
Ház:
- 2008 évben, téglából épült, három bejárattal rendelkezik
- 10 cm szigeteléssel ellátott, cserép tetős
- beton födémes, tetőtere beépített
- fűtése gáz cirkóval megoldott, radiátoros és padlófűtéses hőleadókkal. Megújuló energiaként napkollektor került telepítésre
- helységei klímával ( 6db) , sok ablakkal , elektromos redőnnyel felszereltek
- riasztó és kamera rendszer is a tulajdonos nyugalmát biztosítja
- nyílászáróin elektromos redőny
Jelenlegi elosztása 2 család számára biztosít kényelmes együtt, de még is külön élésre lehetőséget.
- 3 db bejárat, 2 db konyha és 1db tea konyha, 3 db fürdőszoba, 6 db szoba + 3 db egymásból nyíló tetőtéri szoba....
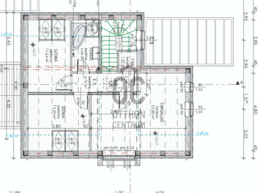
- földszinten 170 nm lakótér
- tetőtérben nettó 55 nm lakótér plusz az egymásból nyíló padlástéri szobák
Környezet:
- főútról nyíló , aszfalt utcában található
- séta távolságra bevásárlási lehetőségek, buszmegálló, iskolam óvoda, rendelő ....
Rengetek lehetőséget rejt ez az ingatlan, például lehetne:
- többgenerációs számára kényelmes otthon
- kisebb családnak otthon és otthoni vállakozási lehetőség
- rendelő
- szolgáltató ház stb....
Amennyiben a vásárláshoz hitelre van szüksége, kollégám DIJMENTESEN segít ÖNNEK a legmegfelelőbb megoldást megtalálni.
Amit érdemes tudni róla, a teljesség igénye nélkül:
Kert:
- telke 1388 nm, összközműves, első részét viacolor borítja, a ház mögött található, elszeparált területe pedig füvesített, öntöző rendszerrel kiépített.
- helyet kapott rajta a 10*5 m nagyságú, fedett, fűthető medence
- fedett terasz, kemencével
- a házat a garázstól elválasztó 20 nm téli kert
- a 38 nm nagyságú fedett terasz, mely kandallóval fűthető
Garázs:
- fűtött, 100 nm, elektromos kapukkal, akár 3 autó beállására is lehetőséget nyújt
- 2/3 rész területén beton födémes padlástere tárolásra alkalma, de akár egy kis garzon is kialakítható belőle harmadik lakásként
Ház:
- 2008 évben, téglából épült, három bejárattal rendelkezik
- 10 cm szigeteléssel ellátott, cserép tetős
- beton födémes, tetőtere beépített
- fűtése gáz cirkóval megoldott, radiátoros és padlófűtéses hőleadókkal. Megújuló energiaként napkollektor került telepítésre
- helységei klímával ( 6db) , sok ablakkal , elektromos redőnnyel felszereltek
- riasztó és kamera rendszer is a tulajdonos nyugalmát biztosítja
- nyílászáróin elektromos redőny
Jelenlegi elosztása 2 család számára biztosít kényelmes együtt, de még is külön élésre lehetőséget.
- 3 db bejárat, 2 db konyha és 1db tea konyha, 3 db fürdőszoba, 6 db szoba + 3 db egymásból nyíló tetőtéri szoba....
- földszinten 170 nm lakótér
- tetőtérben nettó 55 nm lakótér plusz az egymásból nyíló padlástéri szobák
Környezet:
- főútról nyíló , aszfalt utcában található
- séta távolságra bevásárlási lehetőségek, buszmegálló, iskolam óvoda, rendelő ....
Rengetek lehetőséget rejt ez az ingatlan, például lehetne:
- többgenerációs számára kényelmes otthon
- kisebb családnak otthon és otthoni vállakozási lehetőség
- rendelő
- szolgáltató ház stb....
Amennyiben a vásárláshoz hitelre van szüksége, kollégám DIJMENTESEN segít ÖNNEK a legmegfelelőbb megoldást megtalálni.
Registration Number
H505667
Property Details
Sales
for sale
Legal Status
used
Character
house
Construction Method
brick
Net Size
225 m²
Gross Size
280 m²
Plot Size
1,388 m²
Heating
Gas circulator
Ceiling Height
320 cm
Orientation
South
Condition
Good
Condition of Facade
Good
Neighborhood
quiet, good transport, central
Year of Construction
2008
Number of Bathrooms
3
Garage
Included in the price
Garage Spaces
3
Water
Available
Gas
Available
Electricity
Available
Sewer
Available
Multi-Generational
yes
Storage
Independent
Rooms
open-plan living and dining room
28.85 m²
entryway
8.56 m²
bathroom-toilet
6.28 m²
living room
43.68 m²
corridor
8.46 m²
study
10.8 m²
open-plan kitchen and dining room
29.85 m²
room
18 m²
bathroom-toilet
11.5 m²
room
11.64 m²
room
11.64 m²
living room
23.85 m²
bathroom-toilet
7.43 m²
garage
100 m²

Joó Krisztina
Credit Expert