For rent apartment, H505249
Budapest XI. kerület, Lágymányos

350,000 Ft

910 €

  • 108m²
  • 3 Rooms
  • 4th floor

Classic elegance.

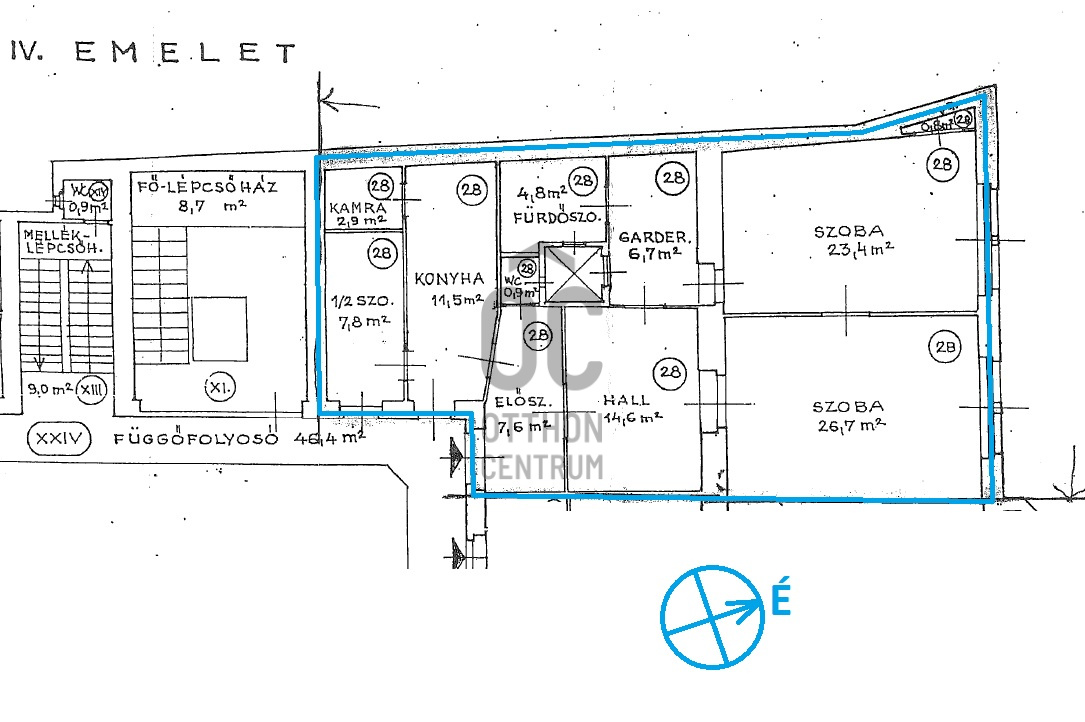
At Gárdonyi Square, in a quiet street, a uniquely decorative apartment on the fourth floor of a building with an elevator is available for rent for a minimum of one year. The beautifully renovated apartment, with a ceiling height of 3.8 meters, is partially furnished and includes 2 large rooms and 2 smaller rooms (a hall and a half room), a fully equipped kitchen, a separate bathroom, a separate toilet, and a laundry room. Heating is provided by a combi boiler. Additional furniture can be arranged based on individual agreement. The common costs (including water, sewage, and garbage collection fees) are 16,560 HUF. The public transport connections are excellent: the buda tram network, M4 metro, and buses are nearby. Street parking is possible: it is a paid zone. Children and pets kept in cages are not a problem. Upon signing the lease agreement, a deposit equivalent to two months' rent is required along with the first month's rent.

Registration Number

H505249

Property Details

Sales
for rent
Legal Status
used
Character
apartment
Construction Method
brick
Net Size
108 m²
Gross Size
114 m²
Heating
Gas circulator
Ceiling Height
339 cm
Number of Levels Within the Property
1
Orientation
North-East
Staircase Type
enclosed staircase
Condition
Excellent
Condition of Facade
Excellent
Condition of Staircase
Excellent
Year of Construction
1902
Number of Bathrooms
1
Position
street-facing
Common Costs
16559
Water
Available
Gas
Available
Electricity
Available
Sewer
Available
Elevator
available

Rooms

room
26.7 m²
room
23.4 m²
room
7.8 m²
hall
14.6 m²
kitchen
11.5 m²
bathroom
4.8 m²
Torma Zsuzsanna
Torma Zsuzsanna

Credit Expert

From Our Office Listings - I. kerület - Víziváros - Batthyány utca

eladó lakás

Index image
8

eladó telek

Index image
3

eladó telek

Index image
7

eladó lakás

Index image
20

eladó lakás

Index image
Elérhető Otthon Start hitellel
19

eladó házrész

Index image
Elérhető Otthon Start hitellel
8

eladó lakás

Index image
16

eladó kereskedelmi ingatlan

Index image
3

eladó családi ház

Index image
26

kiadó lakás

Index image
10

eladó újépítésű lakás

Index image
Elérhető Otthon Start hitellel
7