750,000,000 Ft
1,929,000 €
- 144m²
- 4 Rooms






















Lake Balaton estate with eternal panorama located in Tihany Óvár, 200 meters from the shore.
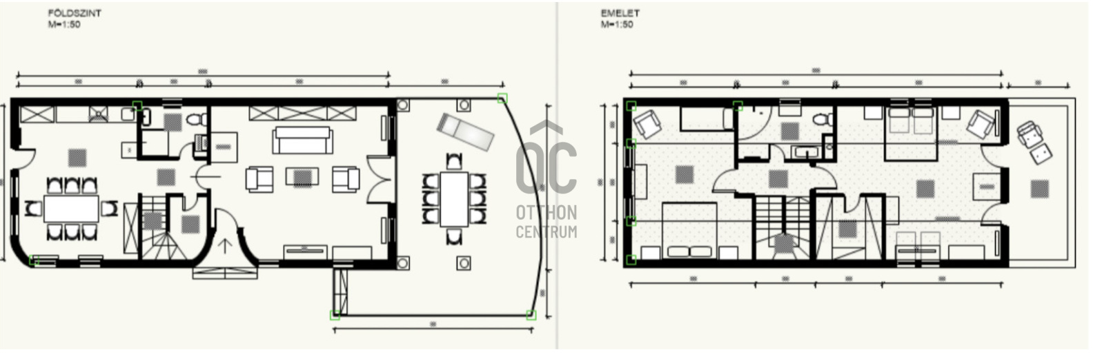
In the most prestigious part of the Balaton-Felvidék region, there is a two-story family house built in 2002 on a 856 m2 plot, with a full view of Lake Balaton. The area is well-known as a favorite holiday destination for the cultural and social elite, characterized by nearby wine cellars, wineries, the Tihany Echo, and villas that blend into the landscape. The uniquely located plot is situated in a protected natural environment. The 144 m2 family house features two bedrooms and a spacious living room. The plot also includes a wine cellar, sauna, and garden storage. Parking is available for four cars. About the location: Tihany Óvár is one of the highest, oldest, and most prestigious parts of the Tihany Peninsula. The view from here is breathtaking: it offers a direct panorama of Lake Balaton, and on clear days, you can see as far as Badacsony, with several towns on the southern shore also visible in the distance. Tihany Óvár is not only close to nature but also offers a calm, somewhat secluded atmosphere. It is far from main roads, and the noise of boat traffic is not heard here. Transportation: - Balatonfüred is a 15-minute drive away. - Easily accessible by ferry from Szántód, followed by a short drive. - Public transport: there is a bus stop in the center, but many of the houses can also be reached on foot within a 5-10 minute walk. If you desire a truly unparalleled panoramic, tranquil, nature-close home in the heart of Lake Balaton, where the landscape unfolds before you like a painting every day – Tihany Óvár is the place where your dreams can become reality.
Registration Number
H504661
Property Details
Sales
for sale
Legal Status
used
Character
house
Construction Method
brick
Net Size
144 m²
Gross Size
144 m²
Plot Size
846 m²
Heating
Gas circulator
Ceiling Height
3,200 cm
Number of Levels Within the Property
2
Orientation
East
Condition
Good
Condition of Facade
Good
Basement
Independent
Neighborhood
quiet, green
Year of Construction
2002
Number of Bathrooms
2
Garage
Included in the price
Water
Available
Gas
Available
Electricity
Available
Sewer
Available
Storage
Independent
Distance to Waterfront
200 meters
Rooms
living room
48 m²
bedroom
25 m²
bedroom
25 m²
kitchen
20 m²
hall
10 m²
hall
8 m²
bathroom
8 m²

Berkes-Jakus Kinga
Credit Expert