159,800,000 Ft
410,000 €
- 150m²
- 5 Rooms











































Fedezze fel Hévíz varázsát! Tágas, 5 szobás ház várja új tulajdonosát!
Hévíz szívében, a Zala vármegye gyönyörű környezetében kínálunk eladásra egy kivételes, prémium kivitelezésű családi házat, mely tökéletes választás lehet mindazok számára, akik a nyugodt, csendes környezetet keresik, de mégis közel szeretnének maradni a város nyújtotta lehetőségekhez.
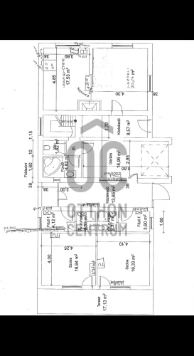
Az ingatlan magját egy 150 négyzetméteres alapterülettel képzi, amely öt tágas szobát foglal magában, mindezek mellett 3 teljes ellátottságú apartmant, mely akár szobakiadásra is alkalmas lehet és bőséges teret biztosít a család minden tagja számára, akár több generációnak is.
A ház hat fürdőszobával büszkélkedhet, ami különösen praktikus, ha vendégeket fogadna, vagy egyszerűen csak a kényelmet szeretné élvezni. A ház állapota kiváló, a modern fűtési rendszer gáz (cirko), illetve egy cserépkályha biztosítja a kellemes hőmérsékletet télen, míg a 3 darab klíma a nyári melegben nyújt felfrissülést. A tágas nappali LED hangulatvilágítással és beépített bútorokkal, valamint szekrényekkel van felszerelve, ami nemcsak esztétikus, hanem praktikus megoldásokat is kínál.
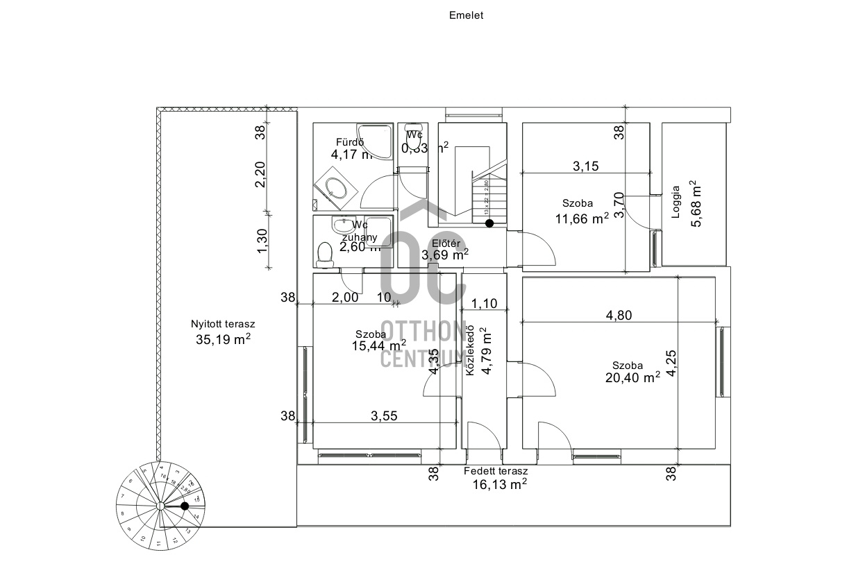
Az ingatlanhoz tartozik egy 50 négyzetméteres panorámás terasz, amely ideális helyszín lehet a családi összejövetelekhez vagy a pihenéshez. A kertben egy 8 személyes jakuzzi is rendelkezésre áll a család, mind a vendégek számára.
A rendezett kert és a kerti tároló további előnyöket nyújt, lehetőséget teremtve a szabadidős tevékenységekre. Mindezek mellett található több kerti fedett kiülő, bográcsozó és kemence is. A környék kiemelkedő adottságai között szerepel a kitűnő közlekedési lehetőség, hiszen a város főbb közlekedési csomópontjai könnyen elérhetők. A csendes, felkapott környék biztonságos környezetet biztosít, ahol a család minden tagja nyugodtan élvezheti a mindennapokat. Hévíz híres gyógyfürdőjéről és termálvizes medencéjéről, így a helyi lakosok számára számos kikapcsolódási lehetőség áll rendelkezésre, legyen szó wellnessről, gyógyturizmusról vagy aktív pihenésről.
Ez a tehermentes ingatlan tökéletes választás lehet magánszemélyek és befektetők számára is, akik hosszú távú értékálló befektetést keresnek. Az ingatlan iránt érdeklődők bizalommal kereshetnek kérdéseikkel kapcsolatban, hiszen szívesen nyújtunk további információkat vagy akár személyes bemutatót is.
Ne hagyja ki ezt a páratlan lehetőséget!
Az ingatlan magját egy 150 négyzetméteres alapterülettel képzi, amely öt tágas szobát foglal magában, mindezek mellett 3 teljes ellátottságú apartmant, mely akár szobakiadásra is alkalmas lehet és bőséges teret biztosít a család minden tagja számára, akár több generációnak is.
A ház hat fürdőszobával büszkélkedhet, ami különösen praktikus, ha vendégeket fogadna, vagy egyszerűen csak a kényelmet szeretné élvezni. A ház állapota kiváló, a modern fűtési rendszer gáz (cirko), illetve egy cserépkályha biztosítja a kellemes hőmérsékletet télen, míg a 3 darab klíma a nyári melegben nyújt felfrissülést. A tágas nappali LED hangulatvilágítással és beépített bútorokkal, valamint szekrényekkel van felszerelve, ami nemcsak esztétikus, hanem praktikus megoldásokat is kínál.
Az ingatlanhoz tartozik egy 50 négyzetméteres panorámás terasz, amely ideális helyszín lehet a családi összejövetelekhez vagy a pihenéshez. A kertben egy 8 személyes jakuzzi is rendelkezésre áll a család, mind a vendégek számára.
A rendezett kert és a kerti tároló további előnyöket nyújt, lehetőséget teremtve a szabadidős tevékenységekre. Mindezek mellett található több kerti fedett kiülő, bográcsozó és kemence is. A környék kiemelkedő adottságai között szerepel a kitűnő közlekedési lehetőség, hiszen a város főbb közlekedési csomópontjai könnyen elérhetők. A csendes, felkapott környék biztonságos környezetet biztosít, ahol a család minden tagja nyugodtan élvezheti a mindennapokat. Hévíz híres gyógyfürdőjéről és termálvizes medencéjéről, így a helyi lakosok számára számos kikapcsolódási lehetőség áll rendelkezésre, legyen szó wellnessről, gyógyturizmusról vagy aktív pihenésről.
Ez a tehermentes ingatlan tökéletes választás lehet magánszemélyek és befektetők számára is, akik hosszú távú értékálló befektetést keresnek. Az ingatlan iránt érdeklődők bizalommal kereshetnek kérdéseikkel kapcsolatban, hiszen szívesen nyújtunk további információkat vagy akár személyes bemutatót is.
Ne hagyja ki ezt a páratlan lehetőséget!
Registration Number
H504492
Property Details
Sales
for sale
Legal Status
used
Character
house
Construction Method
brick
Net Size
150 m²
Gross Size
175 m²
Plot Size
700 m²
Size of Terrace / Balcony
50 m²
Garden Size
300 m²
Heating
Gas circulator
Ceiling Height
270 cm
Number of Levels Within the Property
2
Orientation
South-West
View
city view, Other
Condition
Excellent
Condition of Facade
Excellent
Basement
Independent
Neighborhood
quiet, good transport, central
Year of Construction
1995
Number of Bathrooms
6
Condominium Garden
yes
Water
Available
Gas
Available
Electricity
Available
Sewer
Available
Multi-Generational
yes
Rooms
living room
1 m²
open-plan kitchen and dining room
1 m²
room
1 m²
room
1 m²
room
1 m²
room
1 m²
room
1 m²
storage
1 m²
wardrobe
1 m²
terrace
1 m²
study
1 m²
bathroom
1 m²
bathroom
1 m²
bathroom
1 m²
bathroom
1 m²
toilet
1 m²
toilet
1 m²
toilet
1 m²
toilet
1 m²

Edve János
Credit Expert