data_sheet.details.realestate.section.main.otthonstart_flag.label
For sale new construction apartment, U0048868
Fonyód

82,300,000 Ft

214,000 €

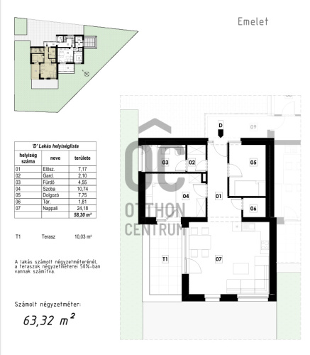
  • 63.3m²
  • 3 Rooms
  • 1st floor

Újépítésű lakás a fonyódi várhegy déli oldalán eladó!

A Panoráma Lakópark egyik emeleti 3 szobás lakását kínáljuk megvételre.
A délnyugati tájolású lakás nagy terasszal, zöldövezetre néző panorámával rendelkezik.
A 4 lakásos épület téglából készül, grafitos hőszigeteléssel a mai kor előírásainak megfelelően.
A fűtés korszerű hőszivattyúval lesz megoldva.
Az ingatlan átadására várhatóan 2026. I. negyedévében kerül sor.
Akár saját részre, akár befektetésnek kiválóan alkalmas.
Fonyód a Balaton déli partjának kilátója, csodás panorámával az északi part hegyeire.
Fejlett infrastruktúrája minden szolgáltatást elérhetővé tesz.
Kiváló közlekedése, kikötője miatt rendkívül népszerű üdülőhely és turistaközpont.
Jöjjön és szeressen bele ebbe a kivételes helyen fekvő ingatlanba.
Előzetes egyeztetéssel rugalmasan megtekinthető.

Registration Number

U0048868

Property Details

Sales
for sale
Legal Status
new
Character
apartment
Construction Method
brick
Net Size
63.3 m²
Gross Size
70 m²
Size of Terrace / Balcony
10 m²
Heating
heat pump
Ceiling Height
270 cm
Orientation
South-West
View
Green view
Staircase Type
enclosed staircase
Condition
Excellent
Condition of Facade
Excellent
Condition of Staircase
Excellent
Neighborhood
quiet, good transport, green
Year of Construction
2025
Number of Bathrooms
1
Position
garden-facing
Water
Available
Electricity
Available
Sewer
Available
Distance to Waterfront
more than 500 meters

Rooms

living room
24 m²
bedroom
11 m²
study
8 m²
bathroom
5 m²
Edve János
Edve János

Credit Expert

From Our Office Listings - Balatonmáriafürdő

for sale family house

Index image
data_sheet.details.realestate.section.main.otthonstart_flag.label
35

for sale family house

Index image
data_sheet.details.realestate.section.main.otthonstart_flag.label
31

for sale family house

Index image
data_sheet.details.realestate.section.main.otthonstart_flag.label
30

for sale vacation home

Index image
18

for sale family house

Index image
data_sheet.details.realestate.section.main.otthonstart_flag.label
24

for sale family house

Index image
data_sheet.details.realestate.section.main.otthonstart_flag.label
45

for sale family house

Index image
data_sheet.details.realestate.section.main.otthonstart_flag.label
34

for sale apartment

Index image
data_sheet.details.realestate.section.main.otthonstart_flag.label
12