119,000,000 Ft
316,000 €
- 380m²
- 9 Rooms
Felsőpáhokon a hévizi tótól pár perces autóútra kinálunk 869 m²-es telken eladó ingatlant apartmanházat.
Az jelenleg is üzemelő apatmanház, akár többgenerációs családnak, akár befektetésnek is kíváló lehetőség.
Kehidakustány, Balaton 10 perc, Zalakaros 20 perc, Zalaszentgrót 15 perces autóutra található.
Az apartmanház csendes, nyugodt, panorámás üdülő övezetben helyezkedik el.
1 - épület ( a családiház ): három szintes.
- Legalsó szinten kapott helyet egy 80 m²-es rusztikus pince, kovácsoltvas lámpákkal, tölgyfa bútorokkal, mely a nyári melegben jól eső hűvös helyet ad a pince partiknak.
- Középső szint :A lakásba egy kertre néző hangulatos fedett teraszról léphetünk be az előszobába, majd a tágas amerikai konyhás étkezős nappaliba . A konyhából egy kis kamra is nyílik, majd a nappaliból jutunk az egyik háló szobába, továbbá egy kis folyósón keresztül a másik hálószobába, a masszázs kádas fürdőbe és a külön a mellékhelyiségbe. Mindkét szobában beépített szekrény került kialakításra .
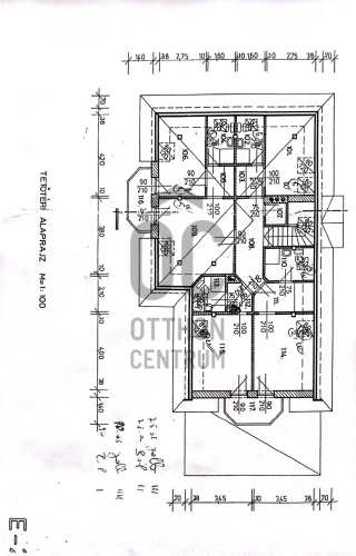
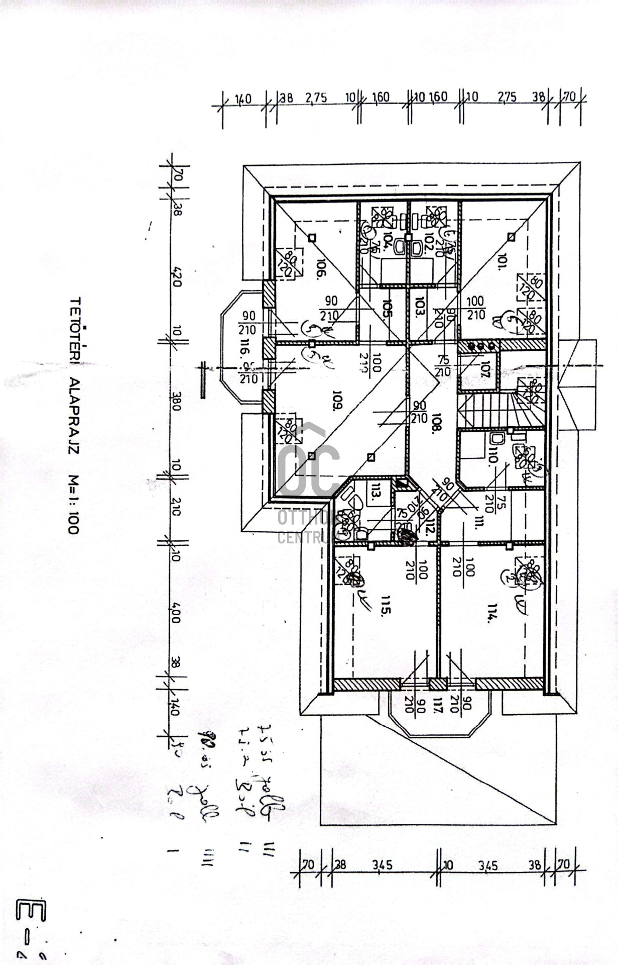
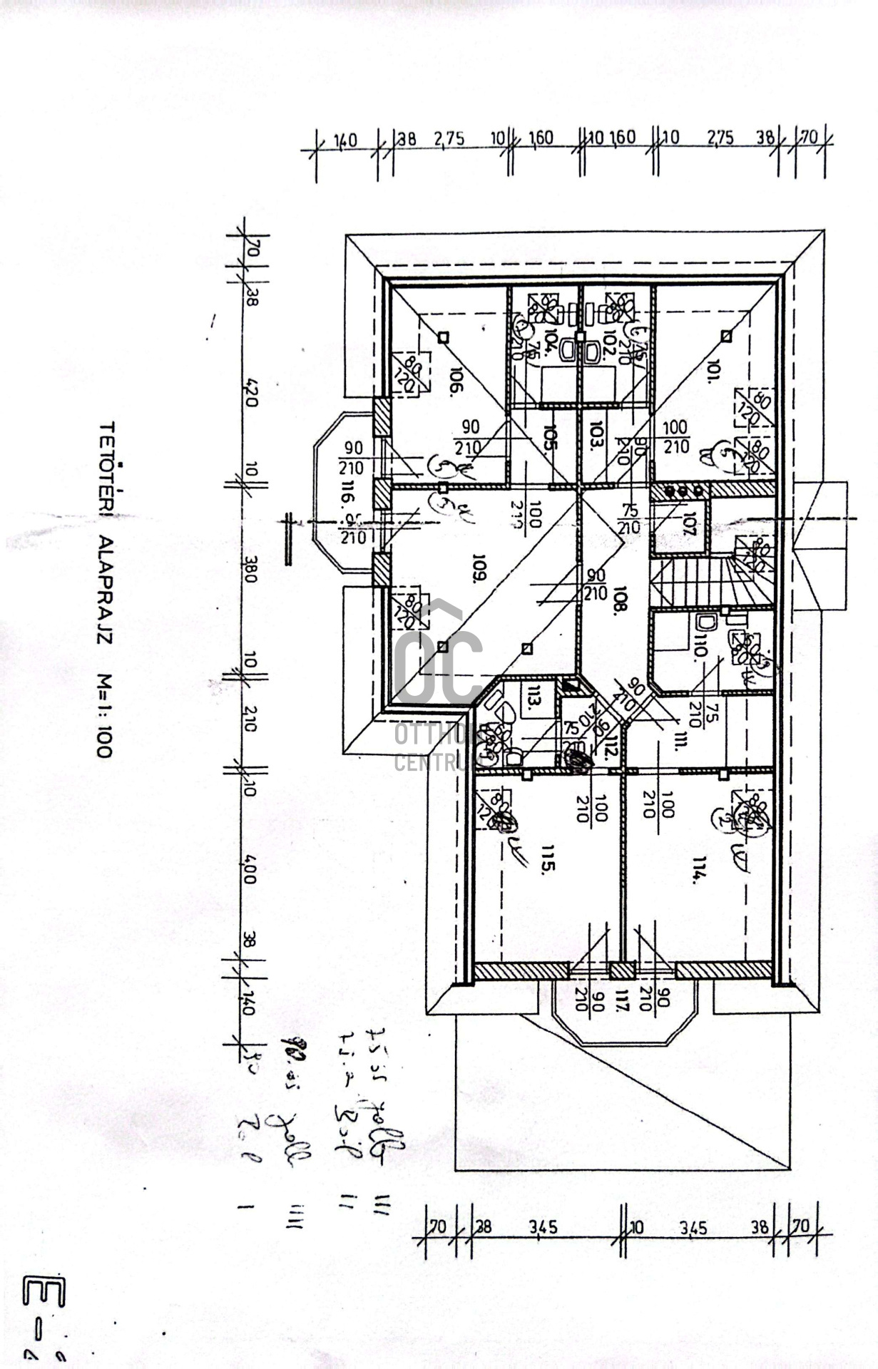
-Harmadik szint : A tetőtérben egy konferencia teremként funkcionáló önálló lakóegység található, konyhával és 2 mellékhelyiséggel, kis tároló helyiséggel.
Ebben az épületben A teraszról jutunk be a kis wellnes részlegbe, ahol egy szauna található zuhanyzóval, valamint egy mosókónyha, vagy masszázs helyiség.
2. épület - Az apartmanházban 3 db önálló apartman lett kialakítva. A 40 m 2 -es lakrészekben mini konyha, zuhanykabinos fürdőszoba, külön WC, valamint egymástól jól elszeparált, önálló terasz van.
Az emeleti részen további apartmanok kialakítására van lehetőség.
A 869-nm-es telek dísz kőfallal körbekerített dísznövényekkel beültetett. Kertjét a feng shui elvei alapján tervezték, különleges energetikával rendelkezik.
Az udvar végében kültéri fedett medence, szauna, grillező, bográcsozó lett kialakítva.
Tulajdonviszonok rendezettek.
Felsőpáhok község Zala vármegyében, a Keszthelyi járásban.
Hévíztől nyugatra található, domboldalon elnyúló település.
Amennyiben felkeltettem érdeklődését, hívjon bizalommal.
Az jelenleg is üzemelő apatmanház, akár többgenerációs családnak, akár befektetésnek is kíváló lehetőség.
Kehidakustány, Balaton 10 perc, Zalakaros 20 perc, Zalaszentgrót 15 perces autóutra található.
Az apartmanház csendes, nyugodt, panorámás üdülő övezetben helyezkedik el.
1 - épület ( a családiház ): három szintes.
- Legalsó szinten kapott helyet egy 80 m²-es rusztikus pince, kovácsoltvas lámpákkal, tölgyfa bútorokkal, mely a nyári melegben jól eső hűvös helyet ad a pince partiknak.
- Középső szint :A lakásba egy kertre néző hangulatos fedett teraszról léphetünk be az előszobába, majd a tágas amerikai konyhás étkezős nappaliba . A konyhából egy kis kamra is nyílik, majd a nappaliból jutunk az egyik háló szobába, továbbá egy kis folyósón keresztül a másik hálószobába, a masszázs kádas fürdőbe és a külön a mellékhelyiségbe. Mindkét szobában beépített szekrény került kialakításra .
-Harmadik szint : A tetőtérben egy konferencia teremként funkcionáló önálló lakóegység található, konyhával és 2 mellékhelyiséggel, kis tároló helyiséggel.
Ebben az épületben A teraszról jutunk be a kis wellnes részlegbe, ahol egy szauna található zuhanyzóval, valamint egy mosókónyha, vagy masszázs helyiség.
2. épület - Az apartmanházban 3 db önálló apartman lett kialakítva. A 40 m 2 -es lakrészekben mini konyha, zuhanykabinos fürdőszoba, külön WC, valamint egymástól jól elszeparált, önálló terasz van.
Az emeleti részen további apartmanok kialakítására van lehetőség.
A 869-nm-es telek dísz kőfallal körbekerített dísznövényekkel beültetett. Kertjét a feng shui elvei alapján tervezték, különleges energetikával rendelkezik.
Az udvar végében kültéri fedett medence, szauna, grillező, bográcsozó lett kialakítva.
Tulajdonviszonok rendezettek.
Felsőpáhok község Zala vármegyében, a Keszthelyi járásban.
Hévíztől nyugatra található, domboldalon elnyúló település.
Amennyiben felkeltettem érdeklődését, hívjon bizalommal.
Registration Number
H501421
Property Details
Sales
for sale
Legal Status
used
Character
vacation home
Type of Vacation Home
house
Construction Method
brick
Net Size
380 m²
Gross Size
380 m²
Plot Size
869 m²
Heating
Gas circulator
Ceiling Height
280 cm
Number of Levels Within the Property
1
Orientation
South-West
Condition
Good
Condition of Facade
Good
Year of Construction
2006
Number of Bathrooms
5
Water
Available
Gas
Available
Electricity
Available
Sewer
Available
Rooms
bedroom
1 m²
open-plan kitchen and dining room
1 m²
open-plan kitchen and dining room
1 m²
bathroom-toilet
1 m²
open-plan kitchen and dining room
1 m²
room
1 m²
room
1 m²
open-plan kitchen and living room
1 m²
room
1 m²
room
1 m²
room
1 m²
room
1 m²
room
1 m²
room
1 m²
Edve János
Credit Expert