data_sheet.details.realestate.section.main.otthonstart_flag.label
                                        
                                    
                                                                For sale apartment,
                                H500353
                            Budapest XVIII. kerület, Bókaytelep, Kossuth Lajos utca
                            99,990,000 Ft
258,000 €
- 104m²
- 4 Rooms
- 1st floor
 
            
                                                             
            
                                                             
            
                                                             
            
                                                             
            
                                                             
            
                                                             
            
                                                             
            
                                                             
            
                                                             
            
                                                             
            
                                                             
            
                                                             
            
                                                             
            
                                                             
            
                                                             
            
                                                             
            
                                                             
            
                                                             
            
                                                             
            
                                                             
            
                                                             
            
                                                             
            
                                                             
            
                                                             
            
                                                             
            
                                                             
            
                                                             
            
                                                            Igényes, napfényes otthon!
Megvételre kínálunk a XVIII. kerület kedvelt zöldövezeti részén egy jó állapotú téglalakást!
Az ingatlanról:
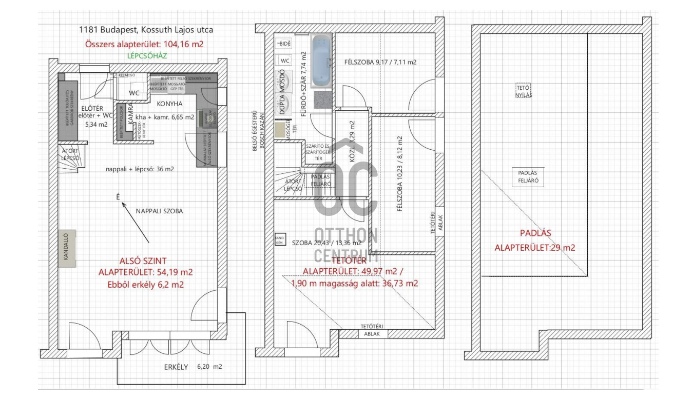
✔️ 1. emeleti, bruttó 104 m2, nettó 85 m2 (tulajdoni lap szerint)
✔️ alsó szint: 54,19 m2
✔️ tetőtér: 49,97 m2
✔️ továbbá leválasztott járható padlás: 29 m2
✔️ belső kétszintes, 2+2 félszobás
✔️ A nappaliból tudunk kimenni az erkélyre ami 6,2 m2
✔️ Déli tájolású világos lakás
✔️ fűtése: Bosch kondenzációs gázkazánnal működik
✔️ földszinten padlófűtés, emeleten pedig radiátorok
✔️ a lakásban továbbá központi klíma van
✔️ Szúnyogháló minden külső nyílászárón
✔️ közös költség: 20.000 forint melyben van felújítási alap is
✔️további extra: kandalló a nappaliban
riasztó rendszer
✔️ 2 db autó számára van beállási lehetőség
✔️ tehermentes ingatlan
Az épület 2001-ben épült téglából
6 lakásos társasház
A ház pár éve 15 cm szigetelést kapott
Közelben minden megtalálható ami fontos a mindennapokhoz!
5-8 perc sétára... boltok, Lőrinci piac, orvosi rendelő stb.
Hitelre is megvásárolható!
Ha felkeltette érdeklődésedet keress nyugodtan a hét bármelyik napján!
                    Az ingatlanról:
✔️ 1. emeleti, bruttó 104 m2, nettó 85 m2 (tulajdoni lap szerint)
✔️ alsó szint: 54,19 m2
✔️ tetőtér: 49,97 m2
✔️ továbbá leválasztott járható padlás: 29 m2
✔️ belső kétszintes, 2+2 félszobás
✔️ A nappaliból tudunk kimenni az erkélyre ami 6,2 m2
✔️ Déli tájolású világos lakás
✔️ fűtése: Bosch kondenzációs gázkazánnal működik
✔️ földszinten padlófűtés, emeleten pedig radiátorok
✔️ a lakásban továbbá központi klíma van
✔️ Szúnyogháló minden külső nyílászárón
✔️ közös költség: 20.000 forint melyben van felújítási alap is
✔️további extra: kandalló a nappaliban
riasztó rendszer
✔️ 2 db autó számára van beállási lehetőség
✔️ tehermentes ingatlan
Az épület 2001-ben épült téglából
6 lakásos társasház
A ház pár éve 15 cm szigetelést kapott
Közelben minden megtalálható ami fontos a mindennapokhoz!
5-8 perc sétára... boltok, Lőrinci piac, orvosi rendelő stb.
Hitelre is megvásárolható!
Ha felkeltette érdeklődésedet keress nyugodtan a hét bármelyik napján!
Registration Number
H500353
                Property Details
Sales
                                        for sale
                                                                                                                                                Legal Status
                                        used
                                                                                                                                                Character
                                        apartment
                                                                                                                                                                                                                                                                                        Construction Method
                                        brick
                                                                                                                                                                                                                                                                                                                                                                                                                                                                                                    Net Size
                                        104 m²
                                                                                                                                                Gross Size
                                        104 m²
                                                                                                                                                                                                                    Size of Terrace / Balcony
                                        6.2 m²
                                                                                                                                                                                                                                                                                                                                                                                                                                Heating
                                        Gas circulator
                                                                                                                                                Ceiling Height
                                        272 cm
                                                                                                                                                Number of Levels Within the Property
                                        1
                                                                                                                                                Orientation
                                        South
                                                                                                                                                                                                                    Staircase Type
                                        enclosed staircase
                                                                                                                                                Condition
                                        Good
                                                                                                                                                Condition of Facade
                                        Good
                                                                                                                                                Condition of Staircase
                                        Good
                                                                                                                                                                                                                                                                                        Year of Construction
                                        2001
                                                                                                                                                Number of Bathrooms
                                        2
                                                                                                                                                Position
                                        garden-facing
                                                                                                                                                Condominium Garden
                                        yes
                                                                                                                                                                                                                    Common Costs
                                        20000
                                                                                                                                                Garage
                                        Included in the price
                                                                                                                                                                                                                                                                                                                                                            Water
                                        Available
                                                                                                                                                Gas
                                        Available
                                                                                                                                                Electricity
                                        Available
                                                                                                                                                Sewer
                                        Available
                                                                                                                                                                                                                                                                                                                                                                                                                                Storage
                                        Independent
                                                                                                                                                                                                                                        Rooms
living room
                                        30.38 m²
                                                                            open-plan kitchen and dining room
                                        11 m²
                                                                            entryway
                                        4.05 m²
                                                                            toilet
                                        1.05 m²
                                                                            pantry
                                        1.5 m²
                                                                            balcony
                                        6.2 m²
                                                                            room
                                        13.36 m²
                                                                            room
                                        8.12 m²
                                                                            room
                                        9.17 m²
                                                                            bathroom-toilet
                                        6.64 m²
                                                                            corridor
                                        3.3 m²
                                                                     
            
                            Helembai Dávid
Credit Expert
 
                    
                 
                         
                         
                         
                         
                         
                         
                         
                         
                         
                         
                         
                         
                         
                         
                         
                         
                         
                         
                         
                         
                         
                         
                         
                         
                         
                         
                         
                         
                    
                 
                 
                 
                 
                 
                 
                 
                 
                 
                 
                 
                