data_sheet.details.realestate.section.main.otthonstart_flag.label
For sale row house,
H498254
Budapest XX. kerület, Pesterzsébet, Thököly utca
56,300,000 Ft
145,000 €
- 66m²
- 3 Rooms




















Lakás áráért inkább kis kertes házrész, nagyon jó környezetben!
Amennyiben az adatok, fotók felkeltették érdeklődését, akkor várom szeretettel egy megtekintésre.
Még néhány fontos információ:
- A fűtést gázcirkó biztosítja, amit 2019 novemberében raktak fel. Hatékony és gazdaságos megoldást kínál a hidegebb hónapokban.
- A ház vegyes falazatú (kő és tömör tégla), melynek köszönhetően az otthon melege és hangulata minden évszakban megmarad.
- A belső felújítás 2019-ben megkezdődött.
Mit is jelent ez:
- 3 fázisú villanyhálozatot építettek ki
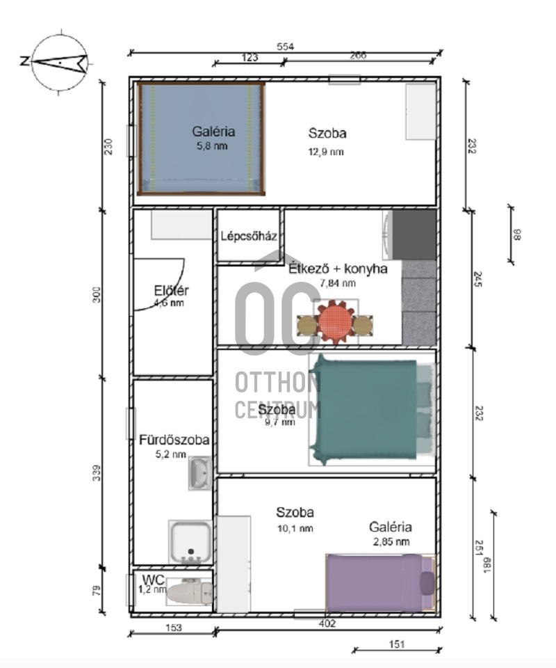
- a kisebbik szobában galéria hozzáépìtés készült 2024-ben
- a nagyobbikban gipszkarton elválasztòfal került kialakításra, ezzel létrehozva külön hálószobát a nappali mellé.
- a fürdőszobában sötétszürke greslap került lehelyezésre, az oldalfalak viszont újragondolàsra vàrnak.
- a fürdőszoba kényelmét kàdas zuhanykabin biztosítja, amely igény esetén elbonthatò.
A házhoz tartozó kis telek remek helyszínt biztosít a kertészkedésre vagy akár egy kellemes nyári esti baráti összejövetel helyszínéűl.
A hálószoba ablaka az udvarra szegeződik, garantálva ezzel a nyugalmas és zavartalan környezetet az egyébként is csendes mellékutcában.
OSZTOTT közös tulajdonú az ingatlan, ezért természetesen ügyvédi használati megosztással rendelkezik. Így jogilag tiszta és hitel is felvehető rá.
A birtokbaadásra az eladó 3-4 hónapot kérni fog, így ha ez is megfelelő, kérem hívjon.
Még néhány fontos információ:
- A fűtést gázcirkó biztosítja, amit 2019 novemberében raktak fel. Hatékony és gazdaságos megoldást kínál a hidegebb hónapokban.
- A ház vegyes falazatú (kő és tömör tégla), melynek köszönhetően az otthon melege és hangulata minden évszakban megmarad.
- A belső felújítás 2019-ben megkezdődött.
Mit is jelent ez:
- 3 fázisú villanyhálozatot építettek ki
- a kisebbik szobában galéria hozzáépìtés készült 2024-ben
- a nagyobbikban gipszkarton elválasztòfal került kialakításra, ezzel létrehozva külön hálószobát a nappali mellé.
- a fürdőszobában sötétszürke greslap került lehelyezésre, az oldalfalak viszont újragondolàsra vàrnak.
- a fürdőszoba kényelmét kàdas zuhanykabin biztosítja, amely igény esetén elbonthatò.
A házhoz tartozó kis telek remek helyszínt biztosít a kertészkedésre vagy akár egy kellemes nyári esti baráti összejövetel helyszínéűl.
A hálószoba ablaka az udvarra szegeződik, garantálva ezzel a nyugalmas és zavartalan környezetet az egyébként is csendes mellékutcában.
OSZTOTT közös tulajdonú az ingatlan, ezért természetesen ügyvédi használati megosztással rendelkezik. Így jogilag tiszta és hitel is felvehető rá.
A birtokbaadásra az eladó 3-4 hónapot kérni fog, így ha ez is megfelelő, kérem hívjon.
Registration Number
H498254
Property Details
Sales
for sale
Legal Status
used
Character
house
Construction Method
brick
Net Size
66 m²
Gross Size
66 m²
Plot Size
90 m²
Heating
Gas circulator
Ceiling Height
316 cm
Orientation
West
Condition
Good
Condition of Facade
Good
Neighborhood
quiet
Year of Construction
1940
Number of Bathrooms
1
Water
Available
Gas
Available
Electricity
Available
Sewer
Available
Storage
Independent
Rooms
entryway
4.6 m²
bathroom
5.2 m²
toilet
1.2 m²
open-plan kitchen and dining room
7.84 m²
room
10.1 m²
room
9.7 m²
room
12.8 m²
gallery
5.8 m²
staircase
1.5 m²