274,500,000 Ft
719,000 €
- 256m²
- 6 Rooms
In the 3rd district, in Testvérhegy, we offer for sale a 6-room semi-detached house in excellent condition, with panoramic views, multiple terraces, and a well-maintained garden, located a 10-minute bus ride from Szentlélek Square and near the British School. The property is characterized by livable, spacious areas and a tastefully designed interior, suitable for multi-generational living. The attic has also been converted into a well-separated, independent apartment. The garden-connected basement level can serve as an office or home workspace, but it could also be converted into a separate living area.
Room list:
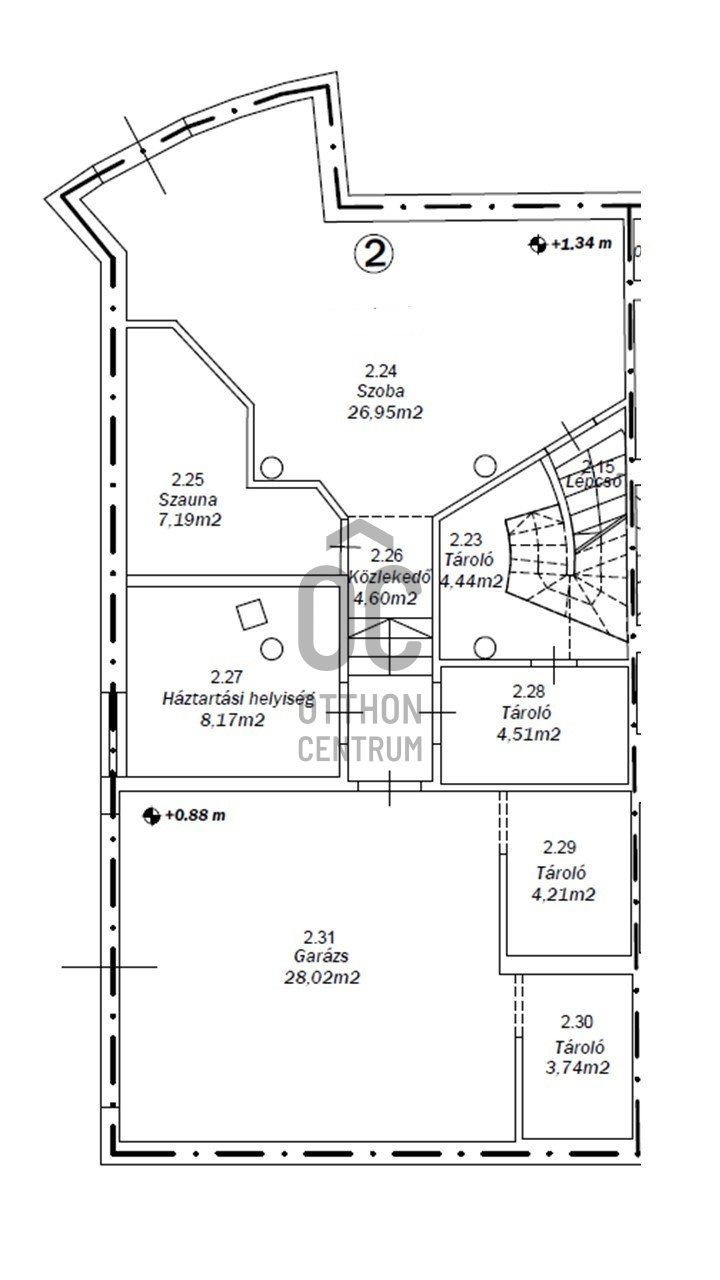
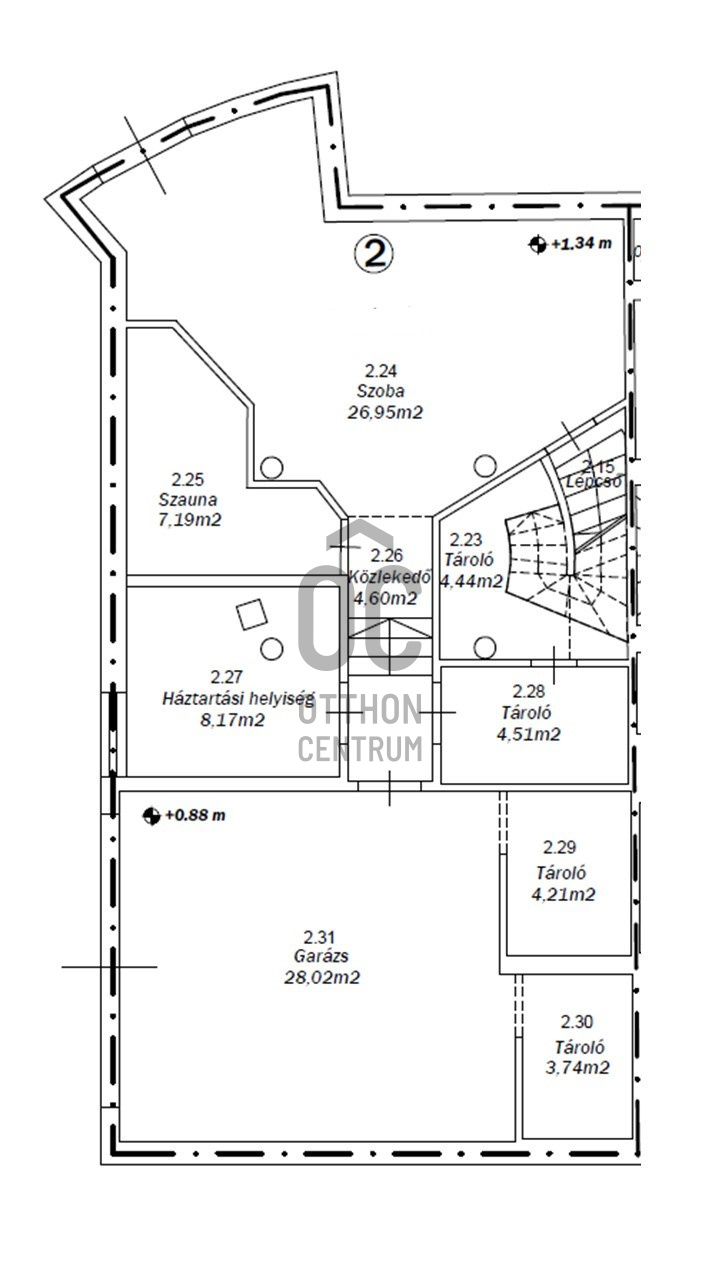
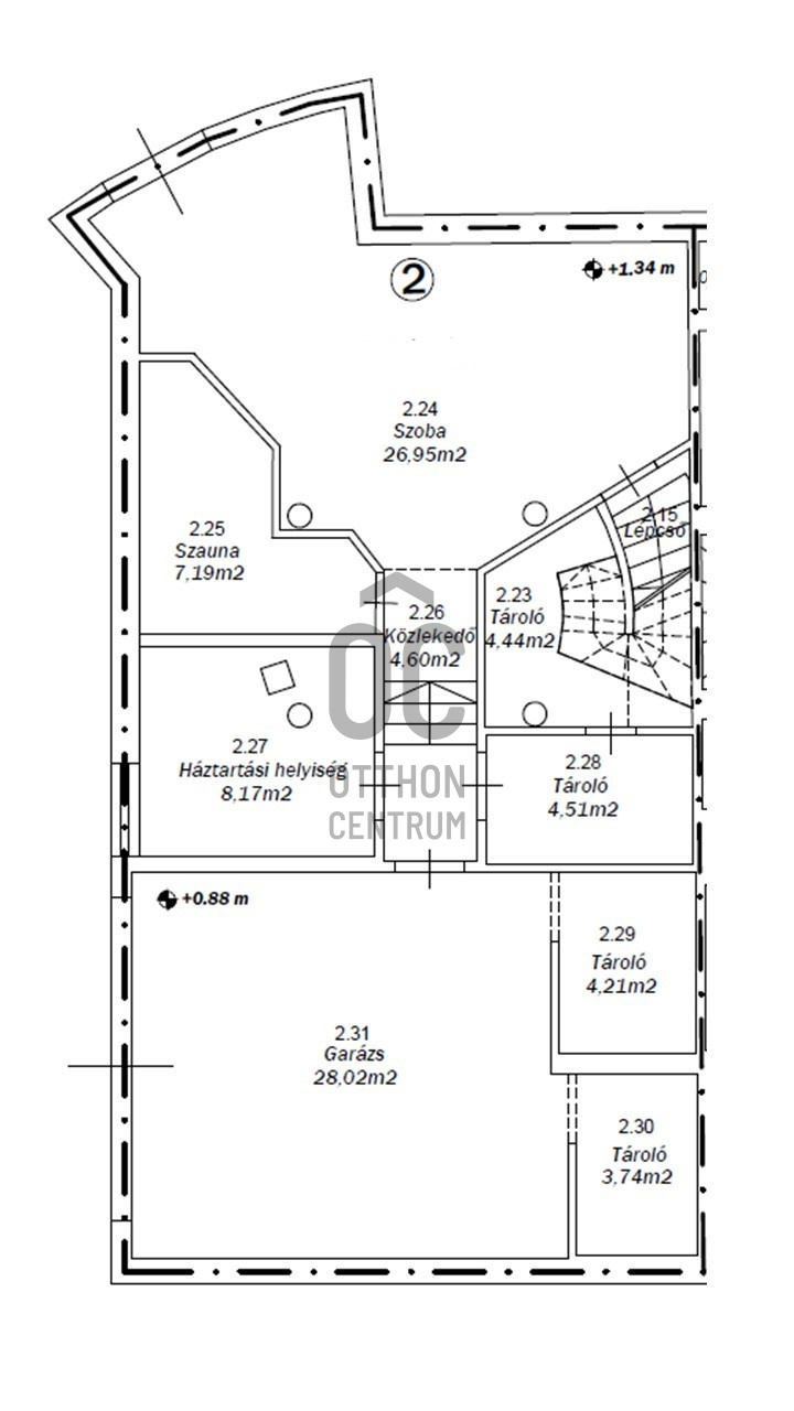
Basement level (garden-connected): - Office - Garage – for 2 cars – with an automatic gate - 3 Storage rooms - Utility room / laundry room - Sauna room
Ground floor: - Living room - Dining room - Kitchen - Pantry - Toilet - Terrace (38 m2)
1st floor: - 3 rooms - 2 walk-in closets - 2 bathrooms - 2 balconies (5.4 and 9.4 m2)
Converted attic: independent apartment
The property was built by the owner for personal use in 2000 and has been renovated a few years ago.
The garden is well-maintained and equipped with an automatic irrigation system and a water meter for watering, plus there is an additional uncovered parking space.
Utility costs are low: an average of 70,000 HUF/month.
The bus stop is 600 meters away.
If we have piqued your interest, we look forward to your call.
Room list:
Basement level (garden-connected): - Office - Garage – for 2 cars – with an automatic gate - 3 Storage rooms - Utility room / laundry room - Sauna room
Ground floor: - Living room - Dining room - Kitchen - Pantry - Toilet - Terrace (38 m2)
1st floor: - 3 rooms - 2 walk-in closets - 2 bathrooms - 2 balconies (5.4 and 9.4 m2)
Converted attic: independent apartment
The property was built by the owner for personal use in 2000 and has been renovated a few years ago.
The garden is well-maintained and equipped with an automatic irrigation system and a water meter for watering, plus there is an additional uncovered parking space.
Utility costs are low: an average of 70,000 HUF/month.
The bus stop is 600 meters away.
If we have piqued your interest, we look forward to your call.
Registration Number
H498059
Property Details
Sales
for sale
Legal Status
used
Character
house
Construction Method
brick
Net Size
256 m²
Gross Size
330 m²
Plot Size
610 m²
Size of Terrace / Balcony
53 m²
Garden Size
400 m²
Heating
Gas circulator
Ceiling Height
330 cm
Number of Levels Within the Property
4
Orientation
South
View
city view
Condition
Good
Condition of Facade
Good
Neighborhood
quiet, good transport, green, central
Year of Construction
2001
Number of Bathrooms
5
Condominium Garden
yes
Garage
Included in the price
Garage Spaces
2
Water
Available
Gas
Available
Electricity
Available
Sewer
Available
Multi-Generational
yes
Storage
Independent
Rooms
living room
34 m²
bedroom
18.5 m²
bedroom
13.5 m²
bedroom
13.5 m²
bedroom
27 m²
study
27 m²
kitchen
12.25 m²
dining room
10 m²
bathroom-toilet
5.7 m²
bathroom-toilet
7.2 m²
bathroom-toilet
2.7 m²
toilet
2.6 m²
wardrobe
3.3 m²
wardrobe
3.3 m²
Tóth Róbert
Credit Expert