130 000 000 Ft
340 000 €
- 100m²
- 4 szoba
- 2. emelet
XV.kerület Rákospalota-kertvárosi lakóparkban kiváló állapotú, nagy teraszos, 100 m2-es, 4 szobás, 2 fürdőszobás, penthause lakás eladó!
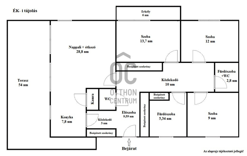
XV.kerületben Rákospalotán, kertes házas környezetben, 2023-as építésű lakóparkban, 2. emeleti, amerikai konyhás nappali + 3 hálószobás, kiváló állapotú lakás, 54 m2-es terasszal, és egy 6 m2-es erkéllyel, teremgarázshellyel, és önálló tárolóval eladóvá vált! Az ingatlant nagy terek, átgondolt, praktikus beosztás jellemzi, a nagy üvegfelületeknek köszönhetően világos, napos. Az épület földszintjén 1 db teremgarázshely, és 1 db 4 m2-es tároló, a lakás tartozékai.
Az ingatlan tökéletes kényelmet biztosít egy családnak, de hosszútávú kiadásra is remek választás.
A lakásról:
* nettó 100 m2 + 54 m2 terasz, + 6 m2 erkély
* amerikai konyhás nappali, a konyha gépesített, és egy kamra is kéznél van
* 3 db hálószoba, az egyik szobából 6 m2-es erkély nyílik
* 1 db kádas, 1 db zuhanyzós fürdőszoba + wc, és 1 db külön wc-mosdó
* a korszerű nyílászárókon távirányítós redőnyök
* a lakásban működő riasztórendszer van
* a tágas L alakú előszobában és a közlekedőben beépített szekrények kimerítik a pakolási szükségleteket
* padlófűtést és a mennyezeti hűtést, valamint a meleg vizet házközponti hőszivattyús rendszer biztosítja
* közös költség 26.000,- forint
A közlekedés kiváló, buszmegálló közel van ( 125, 170, 225, 270, 950), iskola, óvoda, bevásárlási lehetőség sétatávolságra vannak.
Amennyiben felkeltette az érdeklődését ez a kiváló lehetőség, kérem hívjon bizalommal!
Az ingatlan tökéletes kényelmet biztosít egy családnak, de hosszútávú kiadásra is remek választás.
A lakásról:
* nettó 100 m2 + 54 m2 terasz, + 6 m2 erkély
* amerikai konyhás nappali, a konyha gépesített, és egy kamra is kéznél van
* 3 db hálószoba, az egyik szobából 6 m2-es erkély nyílik
* 1 db kádas, 1 db zuhanyzós fürdőszoba + wc, és 1 db külön wc-mosdó
* a korszerű nyílászárókon távirányítós redőnyök
* a lakásban működő riasztórendszer van
* a tágas L alakú előszobában és a közlekedőben beépített szekrények kimerítik a pakolási szükségleteket
* padlófűtést és a mennyezeti hűtést, valamint a meleg vizet házközponti hőszivattyús rendszer biztosítja
* közös költség 26.000,- forint
A közlekedés kiváló, buszmegálló közel van ( 125, 170, 225, 270, 950), iskola, óvoda, bevásárlási lehetőség sétatávolságra vannak.
Amennyiben felkeltette az érdeklődését ez a kiváló lehetőség, kérem hívjon bizalommal!
Regisztrációs szám
H511675
Az ingatlan adatai
Értékesités
eladó
Jogi státusz
használt
Jelleg
lakás
Építési mód
tégla
Méret
100 m²
Bruttó méret
133 m²
Terasz / erkély mérete
60 m²
Fűtés
hőszivattyú
Belmagasság
280 cm
Lakáson belüli szintszám
1
Tájolás
Észak-kelet
Panoráma
városi panoráma
Lépcsőház típusa
zárt lépcsőház
Állapot
Kiváló
Homlokzat állapota
Kiváló
Lépcsőház állapota
Kiváló
Környék
csendes, jó közlekedés, zöld
Építés éve
2023
Fürdőszobák száma
2
Fekvés
kertre néző
Közös költség
26000
Garázs
Benne van az árban
Víz
Van
Villany
Van
Csatorna
Van
Tároló
Önálló
Helyiségek
nappali-étkező
33 m²
konyha
10 m²
szoba
12 m²
szoba
14 m²
szoba
9 m²
fürdőszoba-wc
5 m²
fürdőszoba
4 m²
wc-kézmosó
2 m²
kamra
2 m²
előszoba
7 m²
közlekedő
2 m²
Tóth Róbert
Hitelszakértő