data_sheet.details.realestate.section.main.otthonstart_flag.label
                                        
                                    
                                                                For sale family house,
                                H497070
                            Kozármisleny
                            37,900,000 Ft
98,000 €
- 50m²
- 3 Rooms
 
            
                                                             
            
                                                             
            
                                                             
            
                                                             
            
                                                             
            
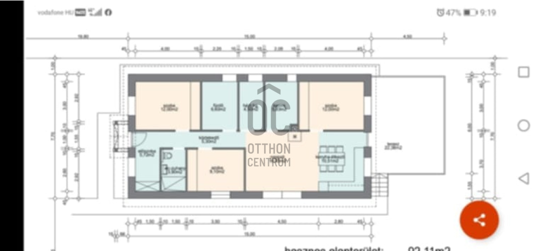
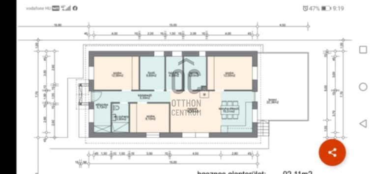
                                                            Kozármislenyben családiház építési lehetőséggel eladó
Kétszintes kis ház Kozármisleny csendes részén. 
Fűtése és hűtése hőszivattyúval és napelem segítségével működik.
Gáz és csatorna a ház előtt.
Az alaprajz a tervezett ház alaprajza, amely igény szerint változtatható.
További információért várom a hívását!
Referenciaszám: H497070
                    Fűtése és hűtése hőszivattyúval és napelem segítségével működik.
Gáz és csatorna a ház előtt.
Az alaprajz a tervezett ház alaprajza, amely igény szerint változtatható.
További információért várom a hívását!
Referenciaszám: H497070
Registration Number
H497070
                Property Details
Sales
                                        for sale
                                                                                                                                                Legal Status
                                        used
                                                                                                                                                Character
                                        house
                                                                                                                                                                                                                                                                                        Construction Method
                                        brick
                                                                                                                                                                                                                                                                                                                                                                                                                                                                                                    Net Size
                                        50 m²
                                                                                                                                                Gross Size
                                        50 m²
                                                                                                                                                Plot Size
                                        1,132 m²
                                                                                                                                                Size of Terrace / Balcony
                                        16 m²
                                                                                                                                                                                                                                                                                                                                                                                                                                Heating
                                        renewable
                                                                                                                                                Ceiling Height
                                        250 cm
                                                                                                                                                Number of Levels Within the Property
                                        2
                                                                                                                                                Orientation
                                        South-West
                                                                                                                                                View
                                        Green view
                                                                                                                                                                                                                    Condition
                                        Good
                                                                                                                                                Condition of Facade
                                        Good
                                                                                                                                                                                                                                                                                        Neighborhood
                                        quiet, good transport, green
                                                                                                                                                Year of Construction
                                        1980
                                                                                                                                                Number of Bathrooms
                                        1
                                                                                                                                                                                                                                                                                                                                                                                                                                                                                                                                                                                                                                                                                                                Water
                                        Available
                                                                                                                                                Gas
                                        On the street
                                                                                                                                                Electricity
                                        Available
                                                                                                                                                Sewer
                                        On the street
                                                                                                                                                                                                                                                                                                                                                                                                                                Storage
                                        Independent
                                                                                                                                                                                                                                        Rooms
room
                                        12 m²
                                                                            room
                                        10 m²
                                                                            room
                                        8 m²
                                                                            bathroom-toilet
                                        6 m²
                                                                            kitchen
                                        10 m²
                                                                     
            
                            Zaracsi Szilvia
Credit Expert
 
                    
                 
                         
                         
                         
                         
                         
                         
                    
                 
                 
                 
                 
                 
                 
                 
                 
                 
                 
                 
                