264,404,400 Ft
680,000 €
- 170m²
- 5 Rooms
- 3rd floor

















Discover your dream home in the heart of South Downtown – a 5-room apartment awaits you!
In the 5th district, in the Váci street close to the Fővám square,
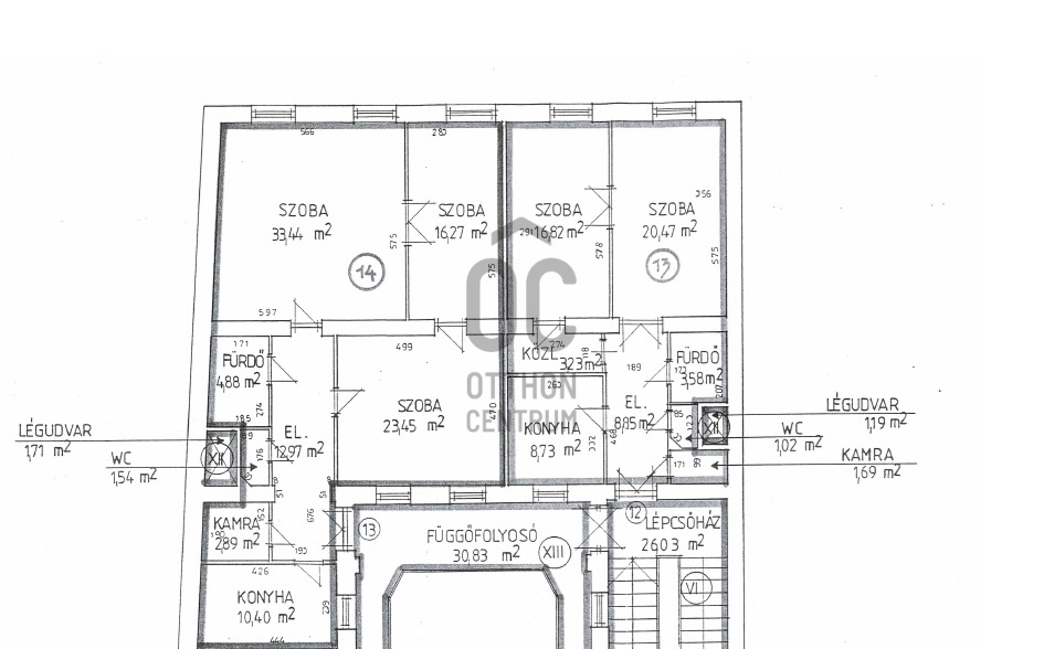
in a well-maintained building a 170 sqm apartment for sale on the top, 3rd floor.
The entire street front of the 3rd floor of the building belongs to the apartment with 5 windows.
It consists of 2 apartments of 64 m2 and 106 m2.
The 106 m2 apartment is in average condition, while the 64 m2 apartment is in need of renovation.
Heating is provided by gas cirko.
There is no elevator in the building.
I recommend it for residential use, as an office, a clinic, or as an investment.
in a well-maintained building a 170 sqm apartment for sale on the top, 3rd floor.
The entire street front of the 3rd floor of the building belongs to the apartment with 5 windows.
It consists of 2 apartments of 64 m2 and 106 m2.
The 106 m2 apartment is in average condition, while the 64 m2 apartment is in need of renovation.
Heating is provided by gas cirko.
There is no elevator in the building.
I recommend it for residential use, as an office, a clinic, or as an investment.
Registration Number
H496780
Property Details
Sales
for sale
Legal Status
used
Character
apartment
Construction Method
brick
Net Size
170 m²
Gross Size
170 m²
Heating
Gas circulator
Ceiling Height
400 cm
Orientation
East
Staircase Type
suspended corridor
Condition
Average
Condition of Facade
Good
Condition of Staircase
Good
Year of Construction
1907
Number of Bathrooms
3
Position
street-facing
Common Costs
59400
Water
Available
Gas
Available
Electricity
Available
Sewer
Available
Rooms
living room
33 m²
room
16 m²
room
17 m²
room
20 m²
room
23 m²
bathroom-toilet
5 m²
bathroom
4 m²
kitchen
10 m²

Ruczek Krisztina
Credit Expert