data_sheet.details.realestate.section.main.otthonstart_flag.label
For sale family house,
H496633
Tiszaszentimre
14,900,000 Ft
39,000 €
- 77m²
- 3 Rooms









In Tiszaszentimre, an authentic family house with furnishings is for sale.
I am offering for sale an authentic family house in the small village of Tiszaszentimre, near the capital of Lake Tisza, Tiszafüred, located on a quiet street.
The village has all the public buildings essential for education, culture, healthcare, and social services. Every street is paved with solid surfaces. For those seeking relaxation, water sports enthusiasts, and fishing lovers, the proximity to Lake Tisza offers opportunities.
Those wishing to hike can enjoy the endlessness of the Hortobágy plains within an hour, or trek in the forests of the Northern Central Mountains. For those looking to heal, the healing thermal baths of Tiszafüred, Tiszaörs, and Berekfürdő are available.
Close to Lake Tisza, yet far from its noise, a quiet, safe village awaits guests who wish to fish, hunt, or relax. In the surrounding streets and neighborhood, Dutch and German owners have already purchased properties for holiday purposes.
The yard and garden are well-maintained and await their future new owner.
The well-kept building is made of adobe. The built-in veranda is made of brick.
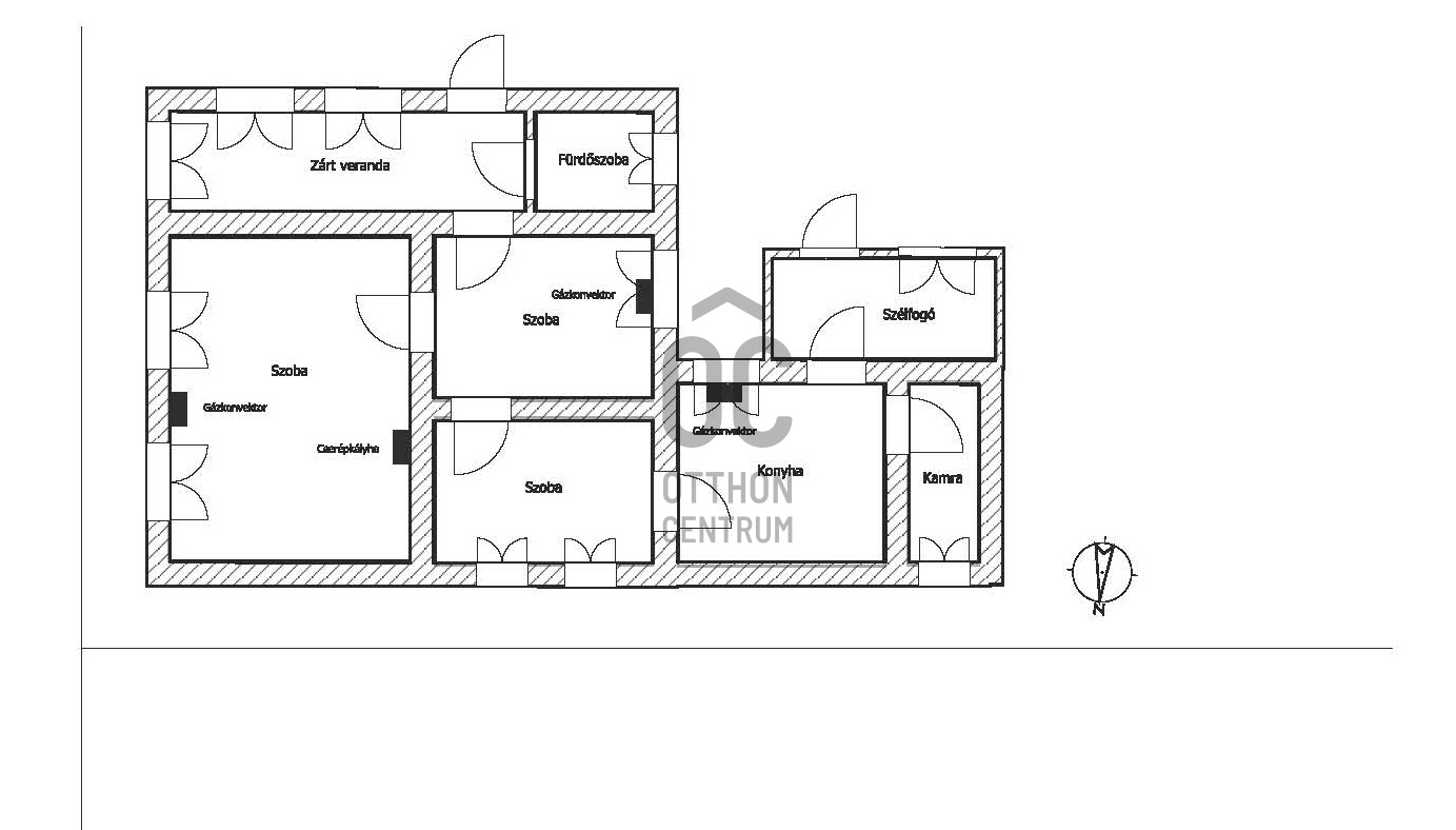
The building features three rooms, a bathroom, a kitchen, and a pantry.
Heating is provided by gas convectors, but there is also a tiled stove in the building. If you would like further information, please feel free to contact me! I also provide comprehensive loan administration and the legal background necessary for the purchase of the property.
#LakeTisza #Tiszaszentimre #elegant #renovated #comfortable #move-in ready #garden access #adobe #holiday home #family-friendly #quiet #well-kept #for sale #unique #modern #well-located
The village has all the public buildings essential for education, culture, healthcare, and social services. Every street is paved with solid surfaces. For those seeking relaxation, water sports enthusiasts, and fishing lovers, the proximity to Lake Tisza offers opportunities.
Those wishing to hike can enjoy the endlessness of the Hortobágy plains within an hour, or trek in the forests of the Northern Central Mountains. For those looking to heal, the healing thermal baths of Tiszafüred, Tiszaörs, and Berekfürdő are available.
Close to Lake Tisza, yet far from its noise, a quiet, safe village awaits guests who wish to fish, hunt, or relax. In the surrounding streets and neighborhood, Dutch and German owners have already purchased properties for holiday purposes.
The yard and garden are well-maintained and await their future new owner.
The well-kept building is made of adobe. The built-in veranda is made of brick.
The building features three rooms, a bathroom, a kitchen, and a pantry.
Heating is provided by gas convectors, but there is also a tiled stove in the building. If you would like further information, please feel free to contact me! I also provide comprehensive loan administration and the legal background necessary for the purchase of the property.
#LakeTisza #Tiszaszentimre #elegant #renovated #comfortable #move-in ready #garden access #adobe #holiday home #family-friendly #quiet #well-kept #for sale #unique #modern #well-located
Registration Number
H496633
Property Details
Sales
for sale
Legal Status
used
Character
house
Construction Method
adobe
Net Size
77 m²
Gross Size
90 m²
Plot Size
1,099 m²
Heating
gas convector
Ceiling Height
270 cm
Orientation
South
Condition
Average
Condition of Facade
Average
Neighborhood
quiet, green
Year of Construction
1965
Number of Bathrooms
1
Water
Available
Gas
Available
Electricity
Available
Sewer
Available
Storage
Independent
Rooms
room
22.55 m²
room
10.36 m²
room
9.25 m²
bathroom-toilet
3.4 m²
open-plan kitchen and dining room
10.85 m²
veranda
10.29 m²
entryway
6.46 m²
pantry
3.72 m²

Pomaházi Pál
Credit Expert