data_sheet.details.realestate.section.main.otthonstart_flag.label
For sale apartment,
H494041
Balatonmáriafürdő
47,900,000 Ft
123,000 €
- 35m²
- 1 Rooms
- ground floor














Eladó földszinti lakás Balatonmáriafürdőn, a parton!
Balatonmáriafürdőn közvetlenül a Balaton partján eladó egy teljesen átépített, három szintes épület földszinti lakása. A tágas, világos ingatlan ideális választás azok számára, akik a tó közelségét és a nyugodt környezetet keresik, de a fűnyírással nem szeretnének foglalkozni. A lakás elrendezése kényelmes, és a Balaton látványa mindennap élménnyé teszi az ott töltött időt.
Jellemzők:
- Földszinti elhelyezkedés
- 35 nm
- Terasz
- Közvetlen vízparti közelség
- Praktikus elrendezés
- Csendes, nyugodt környék
- Remek közlekedési lehetőségek
- Teljesen felszerelt, bútorozott
- Hűtő-fűtő klíma
- Kert kapcsolat
Ne hagyja ki ezt a ritka lehetőséget! Tökéletes választás nyaralónak, vagy állandó lakhatásra egyaránt. További információkért és megtekintésért keressen bizalommal!
Jellemzők:
- Földszinti elhelyezkedés
- 35 nm
- Terasz
- Közvetlen vízparti közelség
- Praktikus elrendezés
- Csendes, nyugodt környék
- Remek közlekedési lehetőségek
- Teljesen felszerelt, bútorozott
- Hűtő-fűtő klíma
- Kert kapcsolat
Ne hagyja ki ezt a ritka lehetőséget! Tökéletes választás nyaralónak, vagy állandó lakhatásra egyaránt. További információkért és megtekintésért keressen bizalommal!
Registration Number
H494041
Property Details
Sales
for sale
Legal Status
used
Character
apartment
Construction Method
brick
Net Size
35 m²
Gross Size
35 m²
Size of Terrace / Balcony
7.6 m²
Heating
electric fan-coil
Ceiling Height
260 cm
Orientation
South
View
river or lake view
Staircase Type
enclosed staircase
Condition
Excellent
Condition of Facade
Excellent
Condition of Staircase
Excellent
Year of Construction
2020
Number of Bathrooms
1
Position
garden-facing
Condominium Garden
yes
Water
Available
Gas
On the street
Electricity
Available
Sewer
Available
Elevator
available
Distance to Waterfront
Direct waterfront
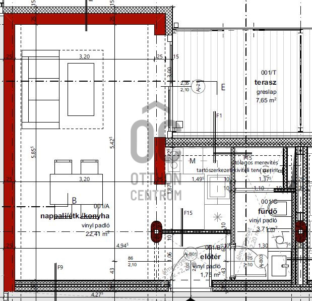
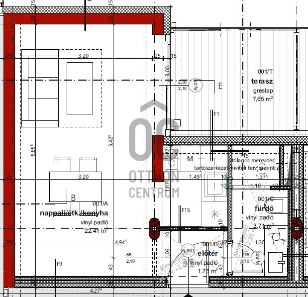
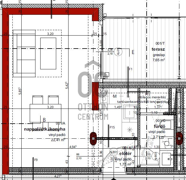
Rooms
open-plan kitchen and living room
22.41 m²
entryway
1.75 m²
bathroom-toilet
3.71 m²