159,000,000 Ft
408,000 €
- 55m²
- 3 Rooms
















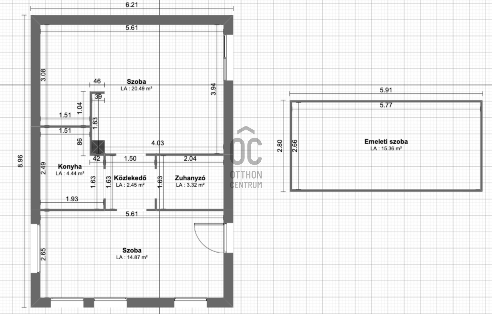
II/A. kerület Széphalom városrészében eladó 894nm -es telek kis 55nm alapterületű ház. A telken jelenleg bontás alatt van egy nagyobb épület de a képen látható 8,9x6,2m alapterületű épület marad, nem kerül elbontásra.
KÖRNYÉK és közlekedés:
- II. kerület, Széphalom városrész, Kőrózsa utca.
- Budapest egyik legzöldebb területe körbevéve természetvédelmi területekkel.
- Jó infrastruktúrával rendelkező elegáns, kertvárosias környezet.
- Több buszjárat, éjszakai busz és a belváros irányába az 56, 56/A, 59 és 61-es villamosok segítik a közlekedést.
- Közelben a Széphalom bevásárlóközpont, ahol beszerezhető minden a hétköznapokhoz.
- Több óvoda, általános iskola és művészeti iskola is várja az ott lakó gyermekeket.
Amit a kis HÁZRÓL érdemes tudni:
- 2000 körül épült, 2 szintes.
- A kertben található külön egy 1 autó számára garázs + műhely
- A kert kialakítását és parkosítását már az új tulajdonos végezheti el saját elképzelése szerint.
FINANSZÍROZÁSBAN ONLINE ÜGYINTÉZÉSSEL IS SEGÍTÜNK:
- Bank-független hitelcenterünk díjmentesen versenyezteti minden bank és hitelintézet ajánlatát.
- Nincs más dolga, mint beszélgetni munkatársunkkal, majd a megversenyeztetett ajánlatokból kiválasztani a hosszútávon is a legmegfelelőbb konstrukciót.
- Szakértőink 20 éves szakmai tapasztalattal és egyedi igényekre szabott, fogyasztóbarát lakáshitelekkel, babaváró hitellel, teljes körű CSOK PLUSZ ügyintézéssel várják.
- Előre egyeztetve akár a normál munkaidő után is.
KÖRNYÉK és közlekedés:
- II. kerület, Széphalom városrész, Kőrózsa utca.
- Budapest egyik legzöldebb területe körbevéve természetvédelmi területekkel.
- Jó infrastruktúrával rendelkező elegáns, kertvárosias környezet.
- Több buszjárat, éjszakai busz és a belváros irányába az 56, 56/A, 59 és 61-es villamosok segítik a közlekedést.
- Közelben a Széphalom bevásárlóközpont, ahol beszerezhető minden a hétköznapokhoz.
- Több óvoda, általános iskola és művészeti iskola is várja az ott lakó gyermekeket.
Amit a kis HÁZRÓL érdemes tudni:
- 2000 körül épült, 2 szintes.
- A kertben található külön egy 1 autó számára garázs + műhely
- A kert kialakítását és parkosítását már az új tulajdonos végezheti el saját elképzelése szerint.
FINANSZÍROZÁSBAN ONLINE ÜGYINTÉZÉSSEL IS SEGÍTÜNK:
- Bank-független hitelcenterünk díjmentesen versenyezteti minden bank és hitelintézet ajánlatát.
- Nincs más dolga, mint beszélgetni munkatársunkkal, majd a megversenyeztetett ajánlatokból kiválasztani a hosszútávon is a legmegfelelőbb konstrukciót.
- Szakértőink 20 éves szakmai tapasztalattal és egyedi igényekre szabott, fogyasztóbarát lakáshitelekkel, babaváró hitellel, teljes körű CSOK PLUSZ ügyintézéssel várják.
- Előre egyeztetve akár a normál munkaidő után is.
Registration Number
H491126
Property Details
Sales
for sale
Legal Status
used
Character
house
Construction Method
brick
Net Size
55 m²
Gross Size
60 m²
Plot Size
894 m²
Heating
Gas circulator
Ceiling Height
258 cm
Number of Levels Within the Property
2
Orientation
South
Condition
Average
Condition of Facade
Average
Year of Construction
2000
Number of Bathrooms
1
Garage
Included in the price
Water
Available
Gas
Available
Electricity
Available
Sewer
Available
Rooms
open-plan living and dining room
20.49 m²
room
14.87 m²
kitchen
4.44 m²
shower
3.32 m²
corridor
2.45 m²
room
15.36 m²

Ruczek Krisztina
Credit Expert